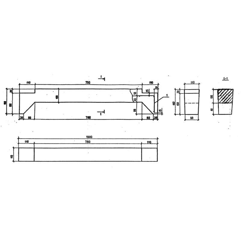
Элементы железобетонных решетчатых конструкций РК Серия 3.503.9-78