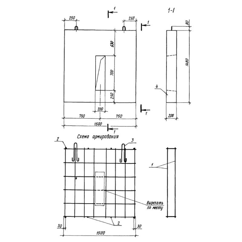
Балки подкладочные Серия 1.100.1-7