ЭЛЕМЕНТСТРОЙ
О НАСКОНТАКТЫ
    Балки (инд.) Балки подстропильные Серия ПП 01-03/68 Балки Альбом ПС 103 Балки Альбом ПС 192 Балки Альбом РК 1101-87 Балки Альбом СК Балки ГОСТ 20372-86 Балки СТ 02-01 Балки Серия 1.125 КЛ-3 Балки Серия 1.126 КР-1 Балки Б Серия ИС 01-04 Балки Серия 1.126.1 КЛ-1 Балки Серия 1.149 КР-1 Балки Серия 1.232.1-10 Балки Серия 1.232.1-8 Балки Серия 1.266.1-2 Балки Серия 1.426.1-8 Балки Серия 1.462-10 Балки Серия 1.462.1-10/80 ( 1.462-10, 1.862-1 ) Балки Серия 1.849.1-2 Балки Серия 1.849.1-5.93 Балки Серия 1.862-1 Балки Серия 1.862.1-2/88 Балки Серия 1.862-2 Балки Серия 1.862.1-2/88 ( 1.862.1-8.94 ) Балки Серия 1.862.1-7 Балки Серия 3.006-1 Балки Серия 3.015-16.94 ( 3.015-2/82, 3.015-2/77 ) Балки Серия 3.015-2 Балки Серия 3.015-2/77 Балки Серия 3.016.1-17.93 Балки Серия 3.016.1-9 Балки Серия 3.407.1-157 ( серия 3.407-102, 3.407-40/70 ) Балки Серия 3.505-14 Балки Серия 3.702.1-4 Балки Серия 3.903 КЛ-13 Балки Серия 86 и 85 Балки Серия ИИ 29-3 Балки Серия ИИ 27-1 Балки Серия ИИ 29-3/70 Балки Серия У 01-01/80 Балки ТУ 67-1003-88 Балки Серия У 01-01 Балки Серия КБК Балки Серия КУБ 2,5 Балки анкерные Серия 3.407.9-158 Балки Серия ПК 01-05 Балки Серия ПК 01-06 Балки ТП 901-6-61 Балки Серия ИС 01-09 Балки двутавровые Серия 1.462.1-16 Балки Шифр 789-04 Балки Шифр А22-94 Балки двускатные Серия ИИ 03-02 Балки двухскатные решетчатые Серия 1.462-3 Балки ТП 901-6-43 Балки двускатные решетчатые Серия 1.462.1-3/80 Балки Серия ИС 01-05 ( НК 029-23:39 ) Балки двухскатные решетчатые ГОСТ 20372-90 Балки днища Серия 3.702.1-4 Балки двускатные решетчатые Серия 1.462.1-3/89 (1.462.1-3/80 и 1.462-3) Балки днища Серия 3.702-1/79 Балки днища Серия 3.012-3 Балки железобетонные ГОСТ 20372-86 Балки железобетонные Серия 1.462.1-1/88 и 1.462-1 Балки железобетонные Серия 1.462.1-1/81 Балки лестничные (1.22-03, инд) Балки кольцевые Серия ИС 01-09 Балки обвязочные Серия 1.020.1-3пв Балки крылец Серия 1.100.1-7 Балки обвязочные (31-07 КЖ.И-3) Балки навеса Серия 3.019.1-1 Балки лестничные Серия 1.020.1-2с/89 Балки обвязочные ГОСТ 24893-2016 Балки монолитного пояса (Гипромезовские рабочие чертежи) Балки обвязочные Серия 1.220.1-2 Балки обвязочные Серия КЭ 01-14 Балки окаймляющие Серия 1.020.1-2с/89 Балки обвязочные Серия КЭ 01-58 Балки односкатные Серия ПК 01-116 Балки опорные Серия 3.505-14 Балки перекрытий каналов Серия 3.818.9-2 Балки перекрытия Серия ТС 01-01 Балки перекрытия каналов Б серия 3.006.1-8 Балки под цокольные экраны Серия 1.220.1-3м Балки подкладочные Серия 1.100.1-7 Балки подкосоурные Серия 27.96.1 АЛ-1 (1) Балки подкосоурные Серия ИИ 01-02 Балки подкосоурные Серия ИИ 03-02 Балки подкрановые (инд.) Балки подкрановые Серия 1.426.1-4 Балки подкрановые Серия 3.504.9-19 Балки подкрановые Серия 3.505-9 Балки подкрановые Серия КЭ 01-03 Балки подкрановые Серия КЭ 01-04 Балки подкрановые Серия КЭ 01-13 Балки подкрановые Серия КЭ 01-50 Балки подкрановые ТПР 709-09-29.84 Балки подстропильные Серия 1.462.1-18 Балки подстропильные Серия ПП 01-03/64 Балки подтротуарные Серия 3.503-14 Балки покрытия Серия 3.012-3 Балки пролетного строения ИНВ 42055м Балки прямоугольного сечения ГОСТ 24893.1-81 Балки растверков Серия 1.111.1-5 Балки рельсового пути Проект 1977.10.100 Балки решетчатые Шифр VI.896.1 Балки решетчатые Шифр VI.896.2 Балки с консольным выступом ГОСТ 24893.1-81 Балки стропильные Серия 1.462.1-10/89 Балки стропильные двухскатные Серия 1.462.1-16/88 Балки стропильные двухскатные Серия 1.462.1-23 Балки стропильные двухскатные Серия 1.462.1-24 Балки стропильные с параллельными поясами Серия 1.462.1-10/93 Балки таврового сечения Серия ПК 01-115 Балки таврового сечения с нижней полкой Серия ИИ 01-02 Балки тавровые Серия ИИ 03-02 Альбом 16 Балки тавровые Серия ИИ 10Ж-1 Балки тоннелей Серия 3.006.1-3/83 Балки фризовые Альбом 3РС 41-24 Балки цокольные Серия 1.020-1 Балки цокольные Шифр м25.13/98 Балки цокольные Серия 1.220.1-2 Складки Серия 1.266.1-3 Балки цокольные Серия 1.030.1-1 Балки цокольные Серия 1.030.1-1/88 Элементы свода Серия 1.266.1-2 Бруски кабельных каналов Серия 4.407-267 Распорки ТП 503-49 Плиты опорные Рабочие чертежи 41882и Распорки Серия 3.402-24 Брус железобетонный ТПР 503-0-17 Блоки тоннелей (инд.) Балки железобетонные ГОСТ 20372-90 Опорные подушки для скользящих опор Серия ТС 01-01 Распорки Серия ПК 01-27 Доски железобетонные Альбом 750 Опорные подушки Серия 1.862-1 Брус ограждения ТП 320-55 Плиты опорные Серия 1.869.1-1 Доски железобетонные Серия 3.501.1-159 Плиты опорные Серия ИИ 03-02 Шпунты Альбом РК 7101-01 Шпунты (инд.) Опорные подушки для теплопроводов Альбом ПС 192 Элементы железобетонных решетчатых конструкций РК Серия 3.503.9-78 Секции балок Серия 3.503.1-89

    Балки тавровые Серия ИИ 03-02 Альбом 16

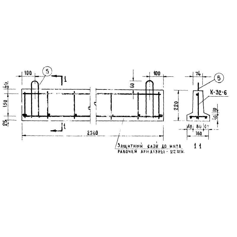
    БТ 24
    160x220x2380БТ 24
    Цена по запросу
    БТ 26
    160x220x2580БТ 26
    Цена по запросу
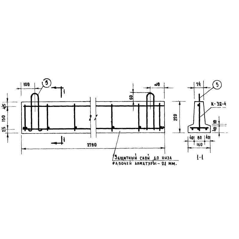
    БТ 28
    160x220x2780БТ 28
    Цена по запросу
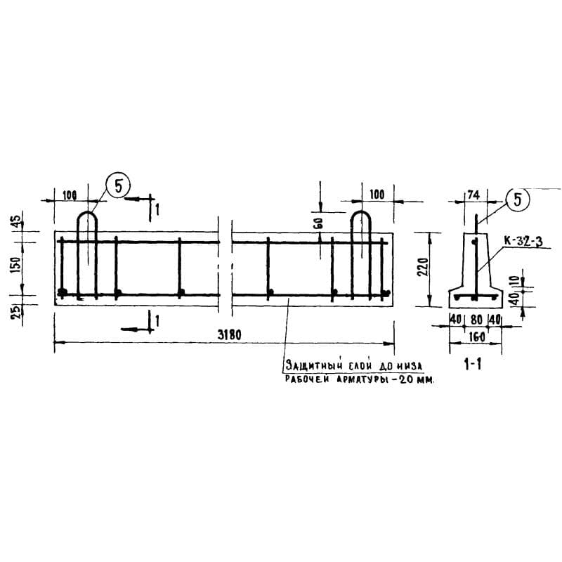
    БТ 32
    160x220x3180БТ 32
    Цена по запросу
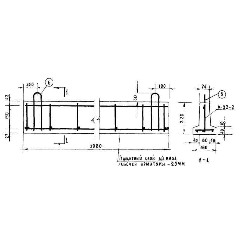
    БТ 40
    160x220x3980БТ 40
    Цена по запросу
    БТ 48
    160x260x4780БТ 48
    Цена по запросу
    БТ 60
    160x260x5980БТ 60
    Цена по запросу

    ЭЛЕМЕНТСТРОЙ

    +7 (4212) 62-32-31elementstroy27@mail.ru
    ООО “Элементстрой”ИНН 2722138026
    О насКонтакты
    Каталог по группамКаталог по Сериям
    ПОЛИТИКА КОНФИДЕНЦИАЛЬНОСТИ
    +7 (4212) 62-32-31elementstroy27@mail.ru
    О насКонтакты
    Каталог по группамКаталог по Сериям
    ПОЛИТИКА КОНФИДЕНЦИАЛЬНОСТИ
    +7 (4212) 62-32-31elementstroy27@mail.ru
    ООО “Элементстрой”ИНН 2722138026
    Разработано в