ЭЛЕМЕНТСТРОЙ
О НАСКОНТАКТЫ
    Ригели Серия 1.220.1-2 Ригели Серия 1.400.1-22 Ригели Серия 1.435-3 Ригели Серия ИИ 23-3 Ригели Серия ИИ 23-5 Ригели Серия ИИ 23-6 Ригели Серия ИИС 23-2 Ригели ТП 901-6-43 Ригели Серия ИИ 63 Ригели Серия ИИ 23-7 Ригели Серия ИИЭ 23-3 Ригели высотой 450 мм для опирания многопустотных плит перекрытия серия 1.020-1/87 ( 1.020.1-7, 1.020-1/83, ИИ 04-1, 1.020.1-3пв ) Ригели ТПР 501-07-3.83 Ригели Серия ПК 01-80 Ригели Серия ИС 01-19 Ригели ТПР 709-09-29.84 Ригели ТП 20008тм-т4 Ригели Серия ИИС 23-1 Ригели для закрепления железобетонных опор Серия 3.407.9-158 Ригели Серия ИИС 23-4 Ригели ТП 901-4-63.83 Ригели для подножников под промежуточные опоры Серия 3.407.9-158 Ригели высотой 600 мм для опирания многопустотных плит перекрытия серия 1.020-1/87 ( 1.020.1-7, 1.020-1/83, ИИ 04-1, 1.020.1-3пв ) Ригели Серия ИИ 23-9 Ригели для опирания ребристых плит перекрытия и плит типа ТТ Серия 1.020.1-4 Ригели высотой 600 мм для опирания многопустотных плит перекрытия Серия 1.020.1-4 Ригели для опирания многопустотных плит на две полки (РМД) (ш. 346.3-07-31 кжи 2) Ригели Серия ИИ 41 Ригели для опирания многопустотных плит перекрытий Серия 1.020.1-2с/89 Ригели для опирания ребристых плит перекрытий высотой 400 мм и плит типа ТТ Серия 1.020.1-2с/89 Ригели для опирания ребристых плит перекрытия и плит типа ТТ ГОСТ 18980-90 Ригели для опирания ребристых плит перекрытия и плит типа ТТ серия 1.020-1/87 ( 1.020.1-7, 1.020-1/83, ИИ 04-1, 1.020.1-3пв ) Ригели для закрепления железобетонных опор Серия 3.407-115 Ригели Серия ИИЭ 23-3/73 Ригели ТП 901-6-61 Ригели Серия ИИС 23-3 Ригели Серия ИИ 23-8 Ригели для фундаментов под металлические опоры Серия 3.407.1-115 Ригели Серия ИИС 63 Ригели пролета ворот Серия ПР 05-05.2 Ригели консольные Серия 1.020.1-2с/89 Ригели монолитные Серия Б1.020.1-7 Ригели железобетонные с полками для опирания плит пролетом 6,0 м серия 1.420-35.95 ( 1.420-12, ИИ 23-3/70, ИИ 23-2/70, ИИ 23-1/70 ) Ригели для опирания многопустотных плит на одну полку (РМО) (ш. 346.3-07-31 кжи 2) Ригели ТП 1042тм Ригели лестничных клеток Серия 1.420.1-20с Ригели железобетонные с полками для опирания плит пролетом 9,0 м серия 1.420-35.95 ( 1.420-12, ИИ 23-3/70, ИИ 23-2/70, ИИ 23-1/70 ) Ригели пролетом 6,0 м Серия 1.420.1-20с Ригели фасадные Альбом РС 2374-98 Ригели связного каркаса с сечением колонн 30х30 см Серия ИИ 04-3 Ригели (ДР) Альбом 343/11-4 Ригели пролета ворот Серия ПР 05-36.1 Ригели Серия 1.220-1 Ригели лестничных клеток Серия 1.420.1-19 Ригели Альбом РС 2392-77 Ригели Серия 1.420-6 Ригели Серия 1.420-13 Ригели Серия ИИ 23-12 Ригели ГОСТ 24155-2016 Ригели Серия ИИ 03-02 Ригели Серия Б1.125.1-1 Ригели Серия 1.420-8/81 Ригели ГОСТ 24155-80 Ригели Серия 1.420.1-32 Ригели Серия 1.421.1-1.93 Ригели Серия ЖУК 99 Ригели Серия 1.125 КР-1 Ригели Серия 1.440-3м/92 Ригели пролетом 12,0 м Серия 1.420.1-20с Ригели Серия ИИ 23-11 Ригели Серия ИИ 23-2 Ригели Серия 1.220.1-3м Ригели Серия 3.507-1 Ригели пролета ворот Серия ПР 05-36.4 Ригели Серия 1.020-1 Ригели Альбом РС 2352-89 Ригели Серия 1-82 Ригели Серия 3.407-123 Ригели Серия ИИ 23-4 Ригели Серия 1.225.1 КЛ-3 Ригели Серия 1.425.1-1 Ригели Серия 3.407-85 Ригели Серия 7075м Ригели Серия 3.503-28 Ригели пролета ворот Серия ПР 05-36.3 Ригели пролетом 12,0 м Серия 1.420.1-19 Ригели пролетом 9,0 м Серия 1.420.1-20с Ригели связного каркаса с сечением колонн 40х40 см Серия ИИ 04-3

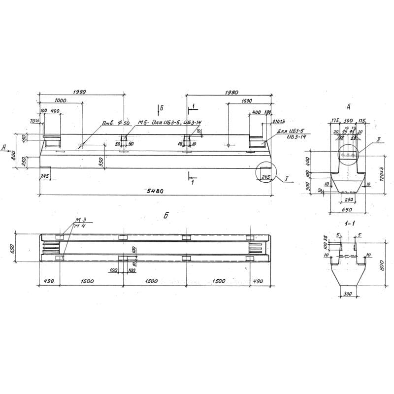
    Ригели Серия ИИ 23-11

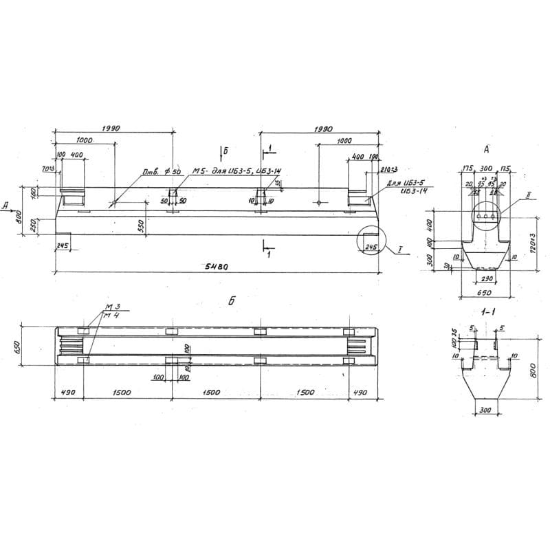
    БЛ 3-17 (ИИ 23-11)
    650x800x5480БЛ 3-17 (ИИ 23-11)
    Цена по запросу
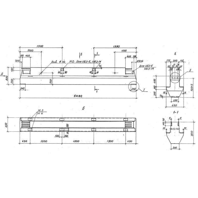
    БЛ 3-2 (ИИ 23-11)
    650x800x5480БЛ 3-2 (ИИ 23-11)
    Цена по запросу
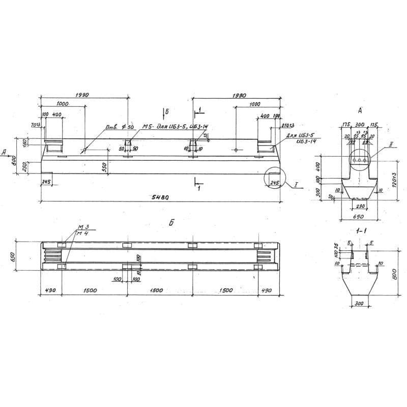
    БЛ 3-3 (ИИ 23-11)
    650x800x5480БЛ 3-3 (ИИ 23-11)
    Цена по запросу
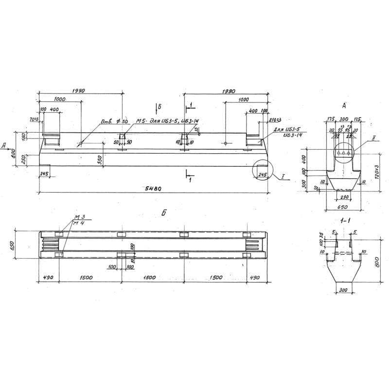
    БЛ 3-4 (ИИ 23-11)
    650x800x5480БЛ 3-4 (ИИ 23-11)
    Цена по запросу
    БЛ 3-5 (ИИ 23-11)
    650x800x5480БЛ 3-5 (ИИ 23-11)
    Цена по запросу
    • Назад
    • 1
    • 2
    • 3
    • Вперед
    5 из 29 (3 страниц)

    ЭЛЕМЕНТСТРОЙ

    +7 (4212) 62-32-31elementstroy27@mail.ru
    ООО “Элементстрой”ИНН 2722138026
    О насКонтакты
    Каталог по группамКаталог по Сериям
    ПОЛИТИКА КОНФИДЕНЦИАЛЬНОСТИ
    +7 (4212) 62-32-31elementstroy27@mail.ru
    О насКонтакты
    Каталог по группамКаталог по Сериям
    ПОЛИТИКА КОНФИДЕНЦИАЛЬНОСТИ
    +7 (4212) 62-32-31elementstroy27@mail.ru
    ООО “Элементстрой”ИНН 2722138026
    Разработано в