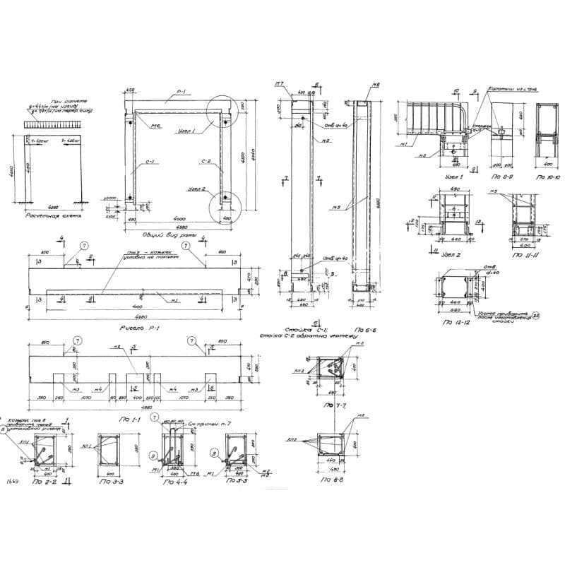
Ригели пролета ворот Серия ПР 05-05.2