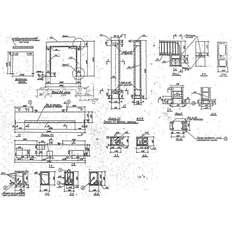
Ригели пролета ворот Серия ПР 05-36.4