Накладные проступи Серия 1.151-1
Накладные проступи Серия 1.251-3
Накладные проступи для укладки на нижние и рядовые ступени маршей (1ЛН)
Накладные проступи Серия ИИС 04-7
Накладные проступи для укладки на нижние и рядовые ступени маршей 1ЛН Серия 1.050.1-3
Накладные проступи для укладки на нижние и рядовые ступени маршей 1ЛН серия 1.050.1-2
Накладные проступи для укладки на нижние и рядовые ступени маршей 1ЛН серия 1.251.1-4 ( 1.251-3, 1.250-1 )
Накладные проступи для укладки на нижние и рядовые ступени маршей 1ЛН ГОСТ 9818-2015
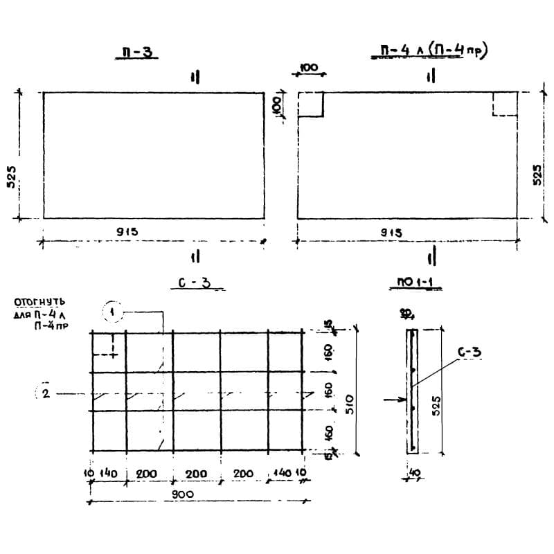
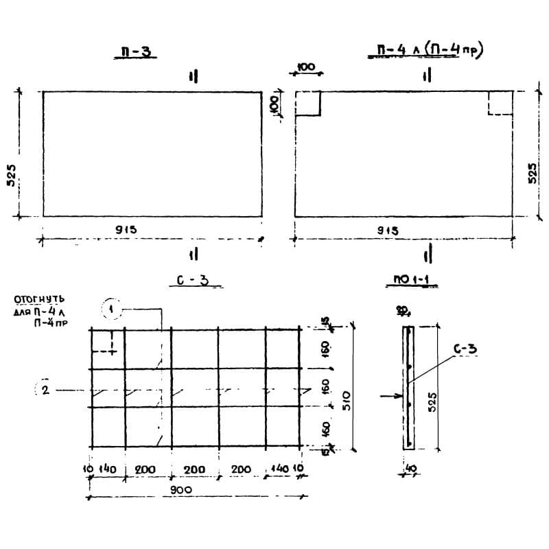
Накладные проступи для укладки на площадки и верхние ступени маршей (2ЛН)
Накладные проступи для укладки на площадки и верхние ступени маршей 2ЛН ГОСТ 9818-2015
Накладные проступи для укладки на площадки и верхние ступени маршей 2ЛН Серия 1.050.1-3
Накладные проступи и плитки Серия ИИ 04-7
Накладные проступи для укладки на площадки и верхние ступени маршей 2ЛН серия 1.050.1-2
Проступи Серия 1.020-1
Проступи мозаичные Альбом НК 33-07
Фризовый камень Серия ИИ 04-4
Проступи мозаичные Серия ИИ 03-02 Альбом 30А
Накладные проступи для укладки на площадки и верхние ступени маршей 2ЛН серия 1.251.1-4 ( 1.251-3, 1.250-1 )
Проступи Серия ИИ 01-02
Проступи Серия ИИ 41





