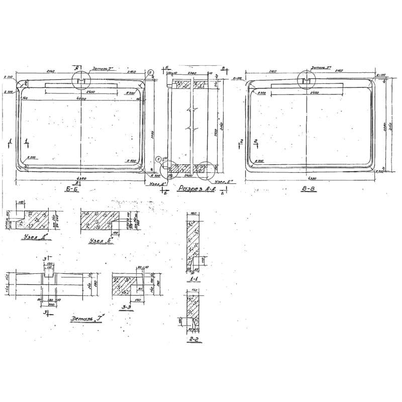
Блоки объемные Серия 3.507-1