Диафрагмы жесткости железобетонные

345x1970x11801Д 12-20-5 пв
Цена по запросу

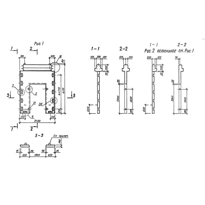
550x4170x31602ДП 32-42-2 пв
Цена по запросу

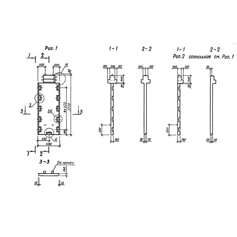
345x3570x11801Д 12-36-3 пв
Цена по запросу

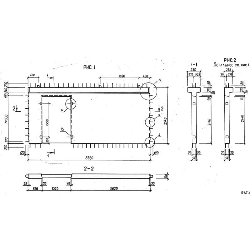
345x3270x55601ДПК 56-33л-3 пв
Цена по запросу

140x1970x29802Д 30-20
Цена по запросу

550x3570x11802Д 12-36-1 пв
Цена по запросу

480x1770x33701Д 34-17-2 сп (1.020.1-6сп)
Цена по запросу

550x2540x55602ДПК 56-25 пв
Цена по запросу

550x4170x25602Д 26-42
Цена по запросу

550x4170x31602ДП 32-42-4 пв
Цена по запросу

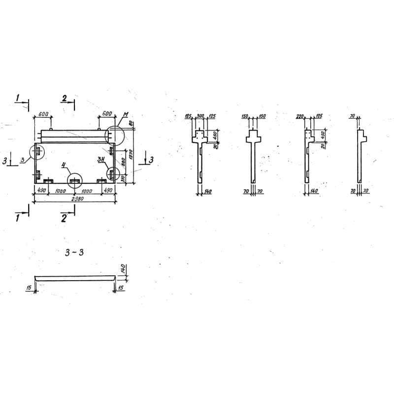
550x3570x29802Д 30-36 (1.020-1)
Цена по запросу

345x4170x25601ДП 26-42-4 пв
Цена по запросу