Лестничные площадки железобетонные

1600x320x27802ЛП 25-16в-4 лкш
Цена по запросу

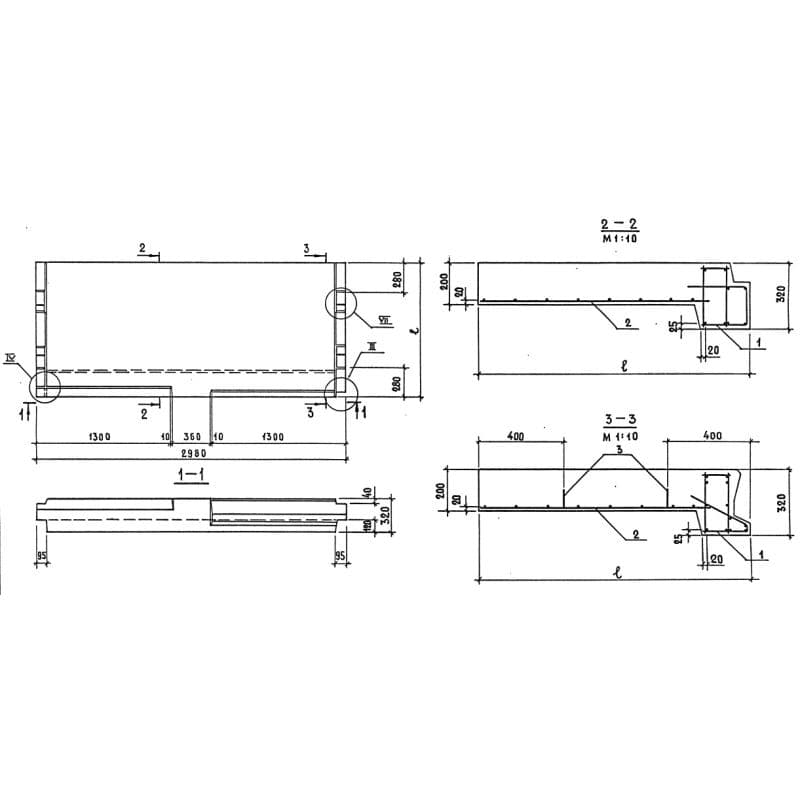
1300x320x28202ЛП 23-13в-4 кшс-1
Цена по запросу

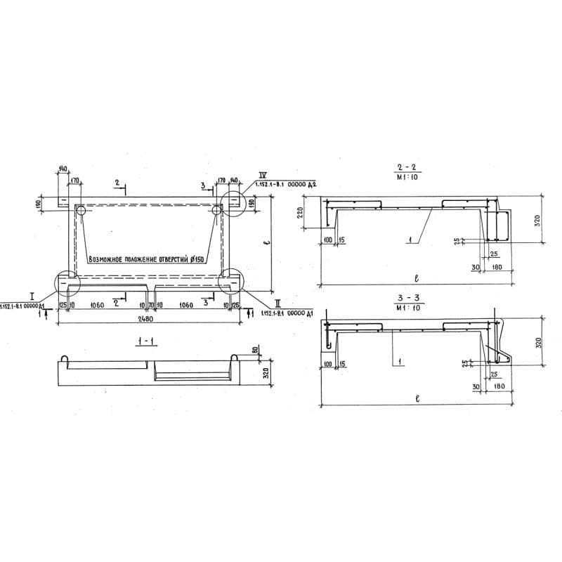
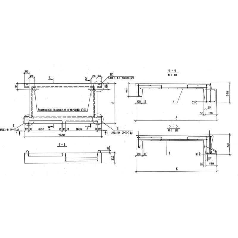
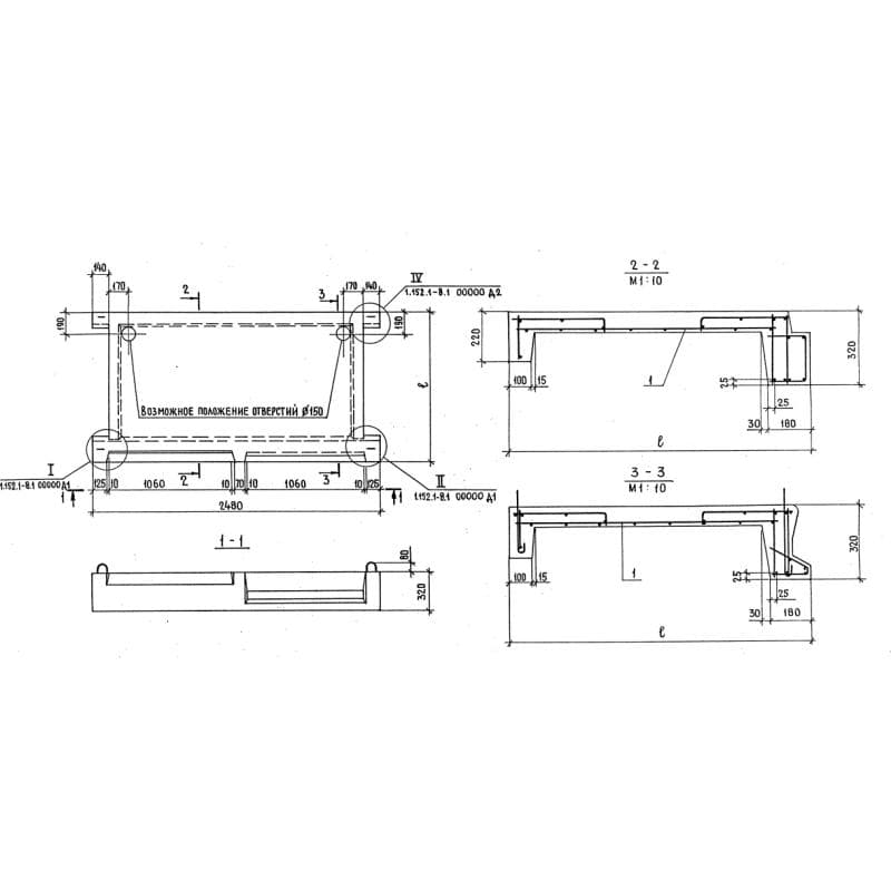
1900x320x24802ЛП 22-18
Цена по запросу

1580x320x31201ЛП 26-15в-4
Цена по запросу

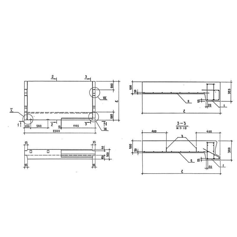
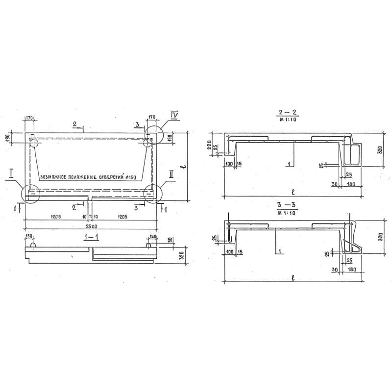
2200x320x23801ЛП 24-22в-4 К (ГОСТ 9818-2015)
Цена по запросу

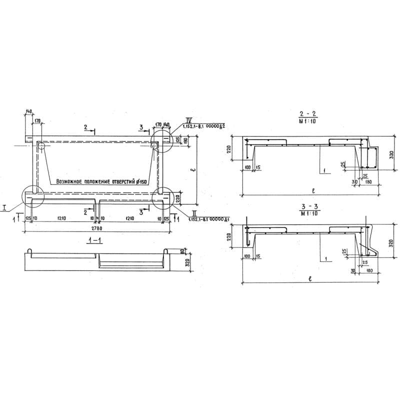
1300x320x27802ЛП 25-13в-4 кк
Цена по запросу

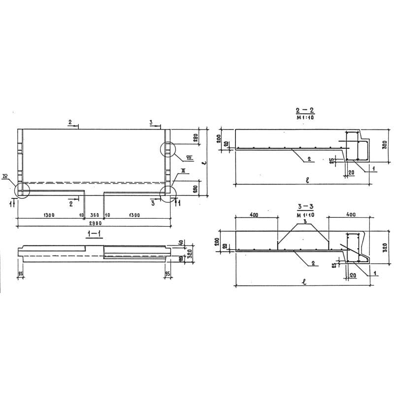
2200x320x29801ЛП 30-22в-4 ш (ГОСТ 9818-85)
Цена по запросу

1800x320x22002ЛП 22-18-4 Кв
Цена по запросу

1900x320x24802ЛП 22-19-4 к
Цена по запросу

1300x320x29801ЛП 30-13в-4 ш (ГОСТ 9818-85)
Цена по запросу

1900x320x27802ЛП 25-19-4 кш
Цена по запросу

1800x320x22002ЛП 22-18-4 к
Цена по запросу