Лестничные площадки железобетонные

2200x320x23801ЛП 24-21в-4
Цена по запросу

1600x320x23801ЛП 24-16-4 к (ГОСТ 9818-85)
Цена по запросу

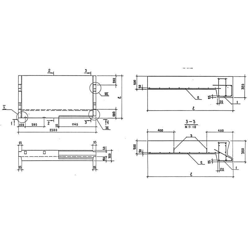
1600x320x29801ЛП 30-15в-4 п
Цена по запросу

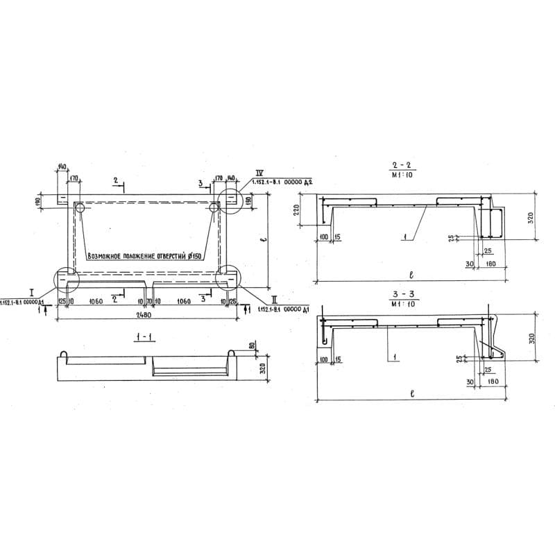
1900x320x28001ЛП 28-19-4 (ГОСТ 9818-85)
Цена по запросу

1300x320x22002ЛП 22-12-4 п
Цена по запросу

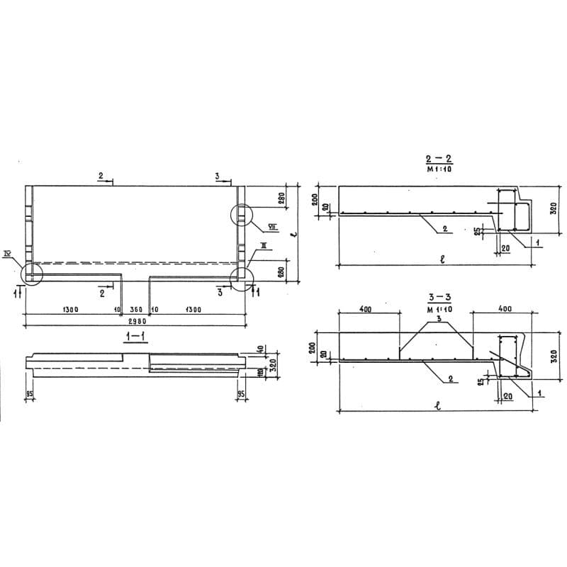
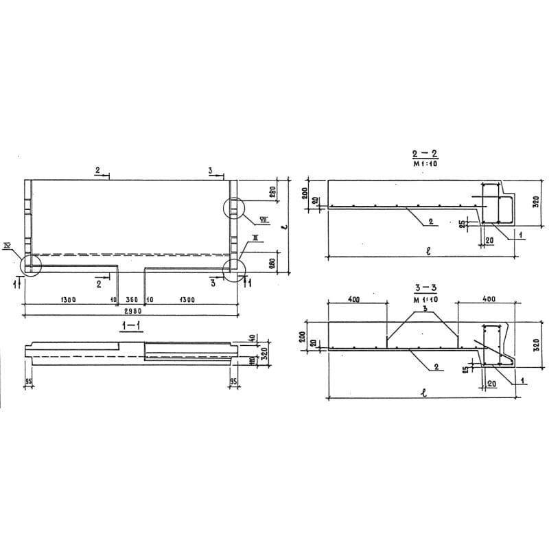
2200x320x29801ЛП 30-22в-4 (ГОСТ 9818-85)
Цена по запросу

1900x320x25002ЛП 25-19-4 Лм (ГОСТ 9818-2015)
Цена по запросу

1900x320x27802ЛП 25-19в-4 Лк (ГОСТ 9818-2015)
Цена по запросу

1600x320x25002ЛП 25-16-4 ш
Цена по запросу

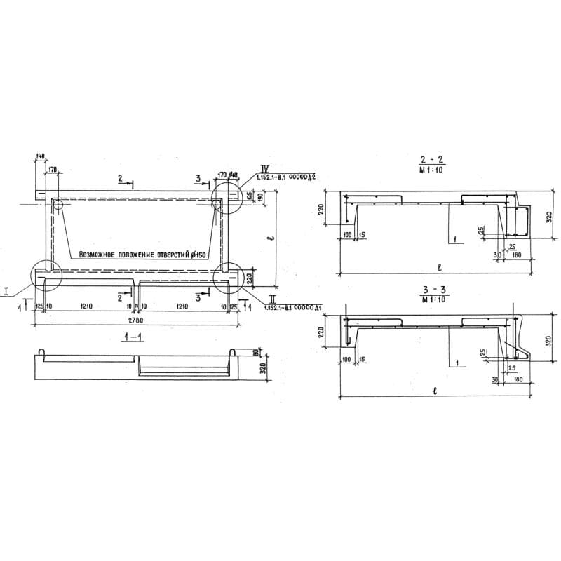
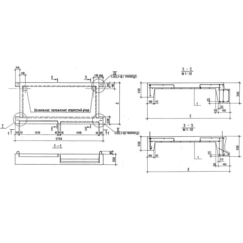
1900x320x27802ЛП 25-19-4 Лк (ГОСТ 9818-2015)
Цена по запросу

1900x320x22001ЛП 22-19-4 л (ГОСТ 9818-85)
Цена по запросу

1300x320x25002ЛП 25-12-4 п
Цена по запросу