Лестничные площадки железобетонные

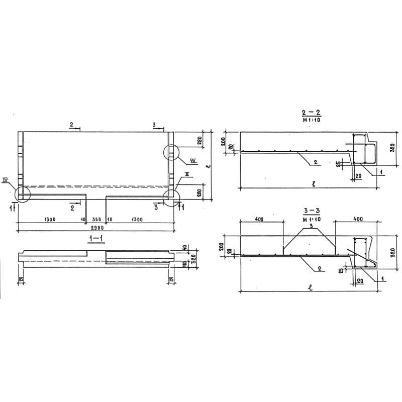
1300x320x29801ЛП 30-12-4
Цена по запросу

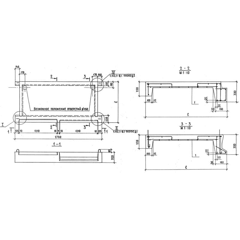
1600x320x27802ЛП 25-16в-4 к (ГОСТ 9818-2015)
Цена по запросу

1300x320x2480ЛПР 22-12 к
Цена по запросу

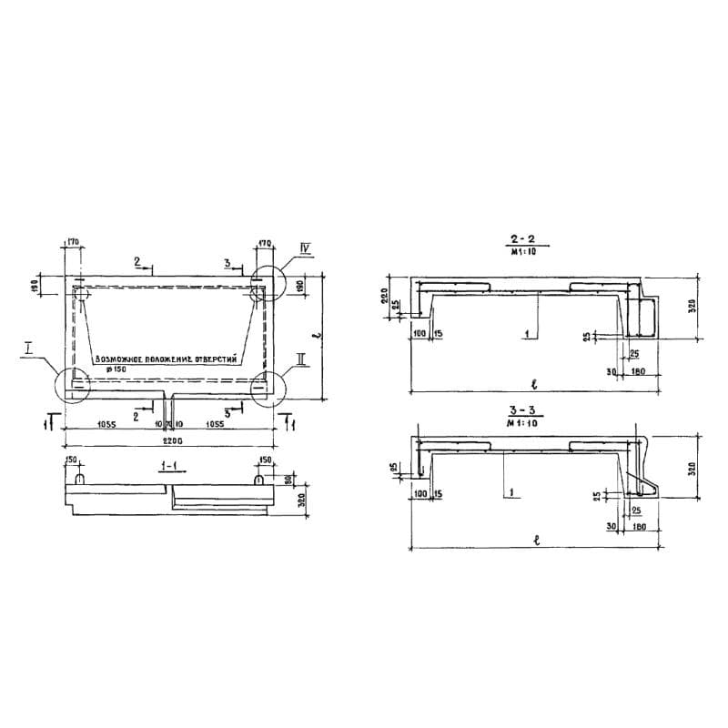
2200x320x29801ЛП 30-22в-4 (ГОСТ 9818-85)
Цена по запросу

1900x320x31202ЛП 26-19-4 кшс
Цена по запросу

1290x350x3080ЛПФ 28-13в-5 п
Цена по запросу

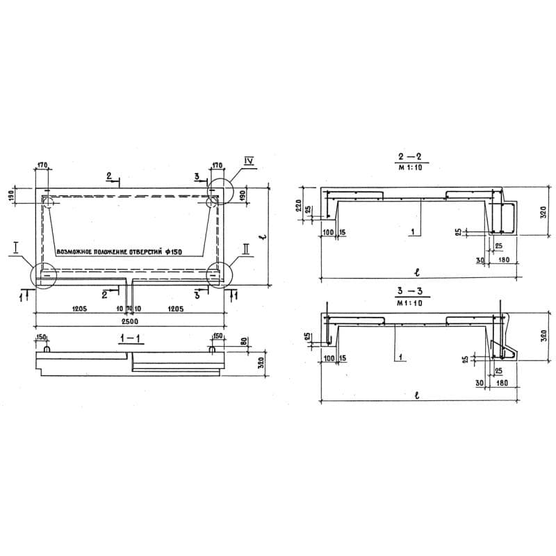
1600x320x22001ЛП 22-15-4
Цена по запросу

1900x320x22002ЛП 22-19в-4 К (ГОСТ 9818-2015)
Цена по запросу

1600x320x22001ЛП 22-16-4 л (ГОСТ 9818-85)
Цена по запросу

1600x320x22002ЛП 22-16в-4 (ГОСТ 9818-2015)
Цена по запросу

1600x320x25002ЛП 25-15в-4 кш
Цена по запросу

1900x320x27802ЛП 25-19в-4 Лк (ГОСТ 9818-2015)
Цена по запросу