Лестничные площадки железобетонные

2200x320x29801ЛП 30-22-4 Л (ГОСТ 9818-2015)
Цена по запросу

1900x320x22002ЛП 22-19в-4
Цена по запросу

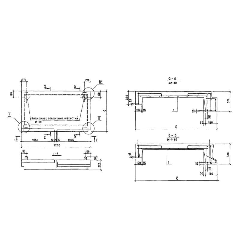
1300x320x22001ЛП 22-13-4 Ш (ГОСТ 9818-2015)
Цена по запросу

1900x320x22002ЛП 22-19-4 мл
Цена по запросу

1600x320x24802ЛП 22-16-4 к
Цена по запросу

375x70x1215ЛПС 12-4
Цена по запросу

1600x320x22002ЛП 22-16в-4 Л (ГОСТ 9818-2015)
Цена по запросу

1300x320x24802ЛП 22-13в-4 кК (ГОСТ 9818-2015)
Цена по запросу

1900x320x22002ЛП 22-19-4 Ш (ГОСТ 9818-2015)
Цена по запросу

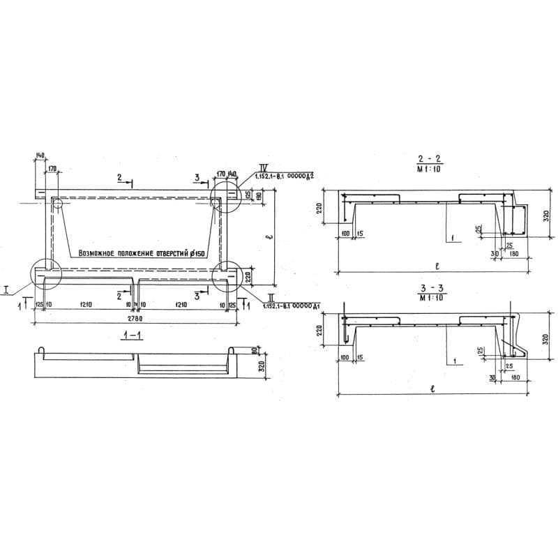
1900x320x27802ЛП 25-19в-4 лк
Цена по запросу

1600x320x23801ЛП 24-16-4 лк (ГОСТ 9818-85)
Цена по запросу

1300x320x28001ЛП 28-13-4 ЛК (ГОСТ 9818-2015)
Цена по запросу