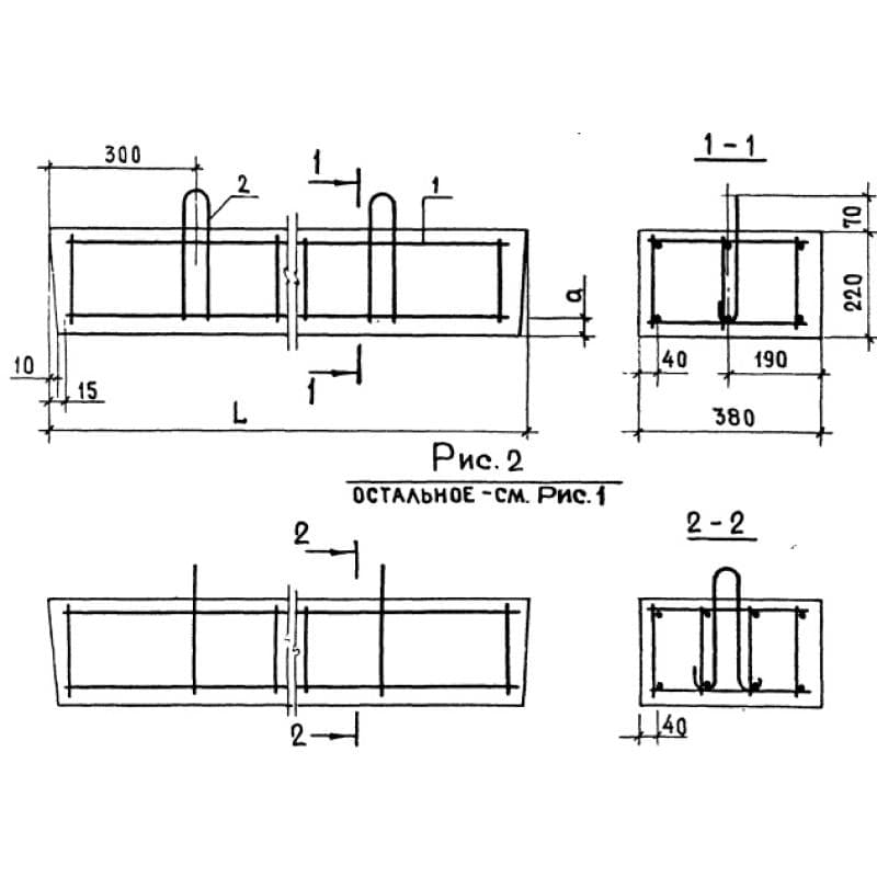
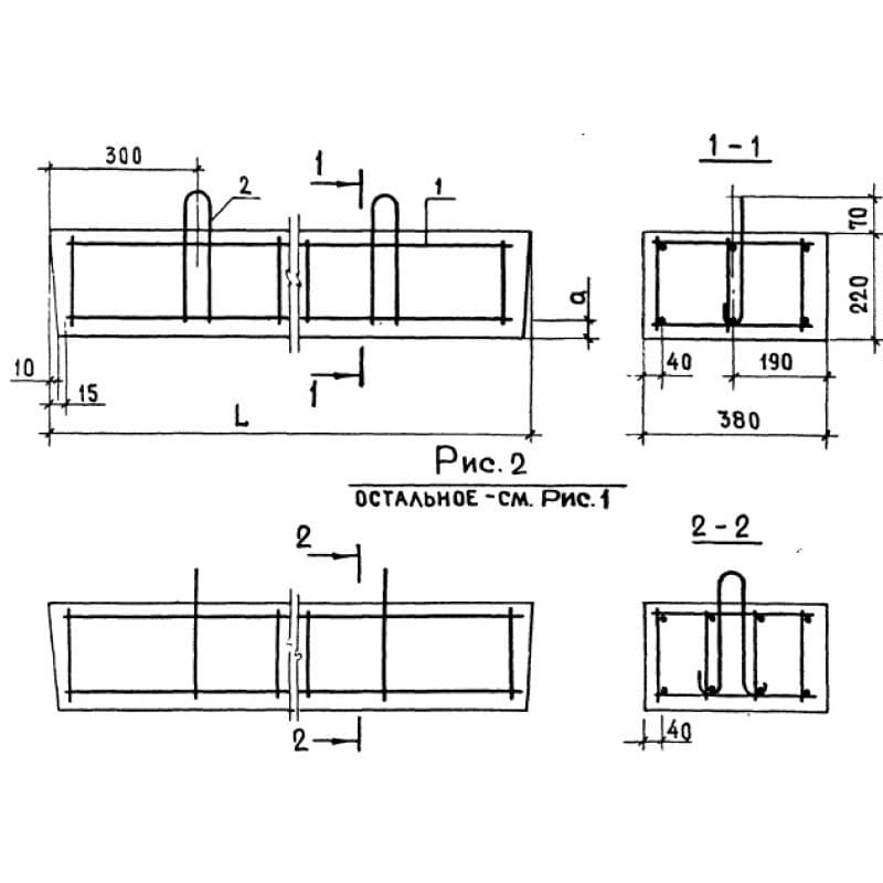
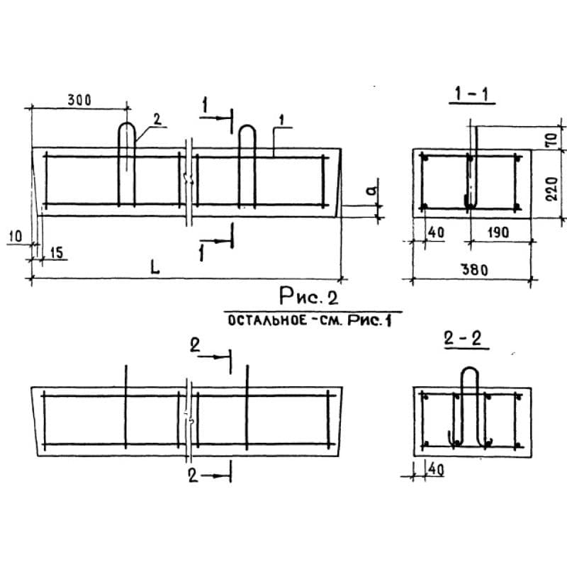
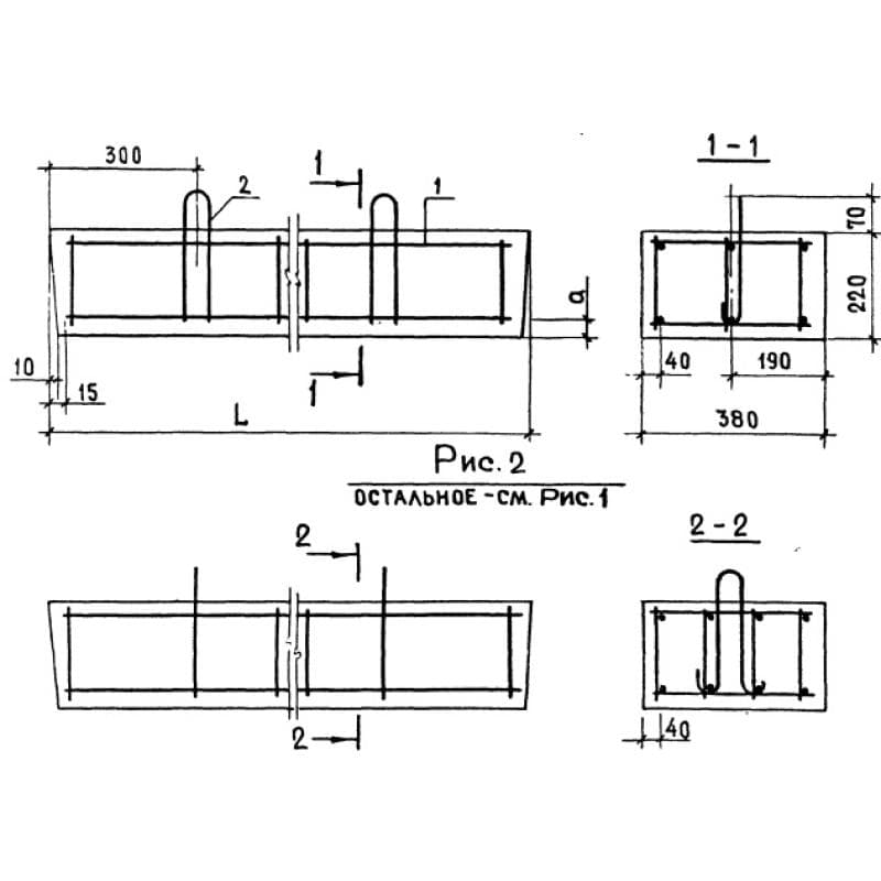
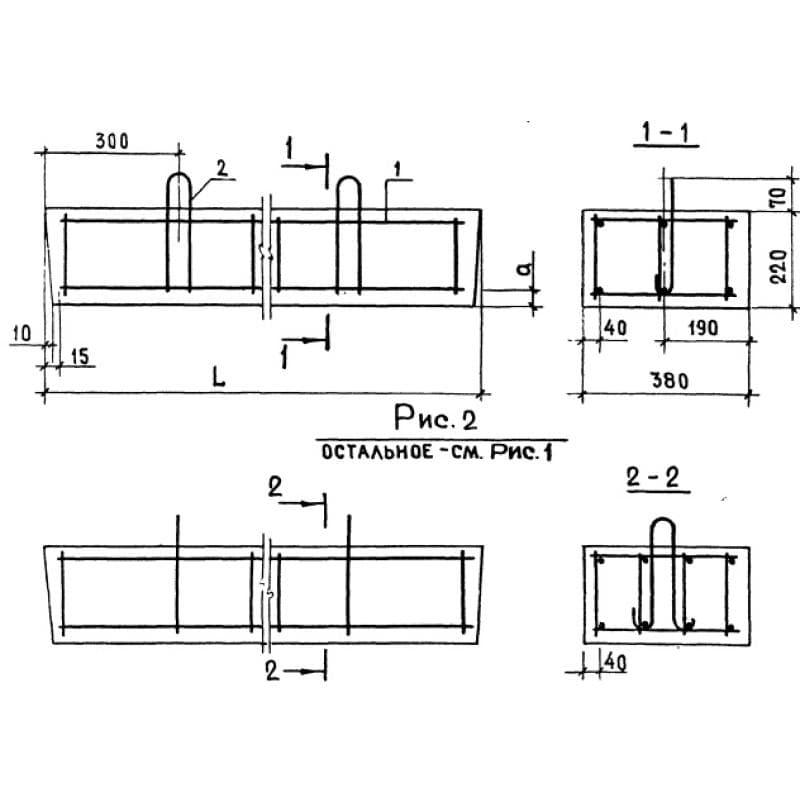
Перемычки плитные ПП ГОСТ 948-84

380x220x18103ПП 18 АтV (ГОСТ 948-84)
Цена по запросу

380x220x18103ПП 18-71 (ГОСТ 948-84)
Цена по запросу

380x220x20703ПП 21-21 (ГОСТ 948-84)
Цена по запросу

380x220x20703ПП 21-71 АтIVс (ГОСТ 948-84)
Цена по запросу

380x220x20703ПП 21-71 АтV (ГОСТ 948-84)
Цена по запросу

380x220x27203ПП 27-71 (ГОСТ 948-84)
Цена по запросу

380x220x27203ПП 27-71 АтIVс (ГОСТ 948-84)
Цена по запросу

380x220x27203ПП 27-71 АтV (ГОСТ 948-84)
Цена по запросу

380x220x29803ПП 30-10 (ГОСТ 948-84)
Цена по запросу

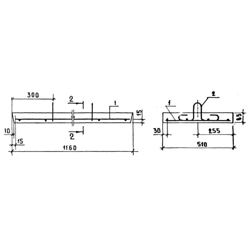
510x65x11604ПП 12-4 (ГОСТ 948-84)
Цена по запросу

510x140x14205ПП 14-5 (ГОСТ 948-84)
Цена по запросу

510x140x16505ПП 17-6 (ГОСТ 948-84)
Цена по запросу