Балки Серия 3.501-112
Балки Серия 3.501-180.95
Балки Серия 3.501.1-165
Балки Серия 3.501.1-175.93
Балки Серия 3.503-27
Балки внутренние пролетного строения с пониженной строительной высотой (плитные) Серия 3.501.1-146
Балки Серия 3.503-14
Балки внутренние ребристые пролетного строения Серия 3.501.1-146
Балки плитные пролетного строения Серия 3.501-108
Балки плитно-шпренгельные ИНВ 32255м
Балки под косоуры ТП 501-166
Балки подтротуарные Серия 3.503-29
Балки подтротуарные Серия 3.503.1-55
Балки подтротуарные Серия 3.820-13
Балки пролетного строения ИНВ 32105м
Балки пролетного строения ИНВ 32298м
Балки пролетного строения ИНВ 34750м
Балки пролетного строения ИНВ 35324м
Балки пролетного строения ИНВ 42012м
Балки пролетного строения ИНВ 42015м
Балки пролетного строения ИНВ 34701м
Балки пролетного строения ИНВ 34751-м
Балки пролетного строения ИНВ 42029м
Балки пролетного строения ИНВ 42042м
Балки пролетного строения ИНВ 54020-м
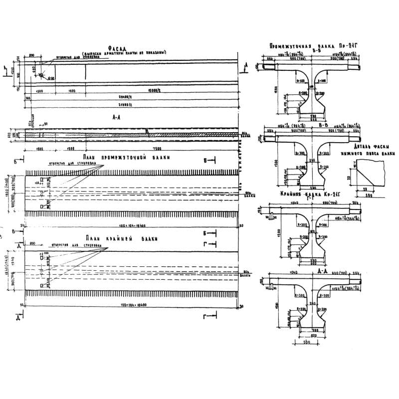
Балки пролетного строения Серия 3.503-12
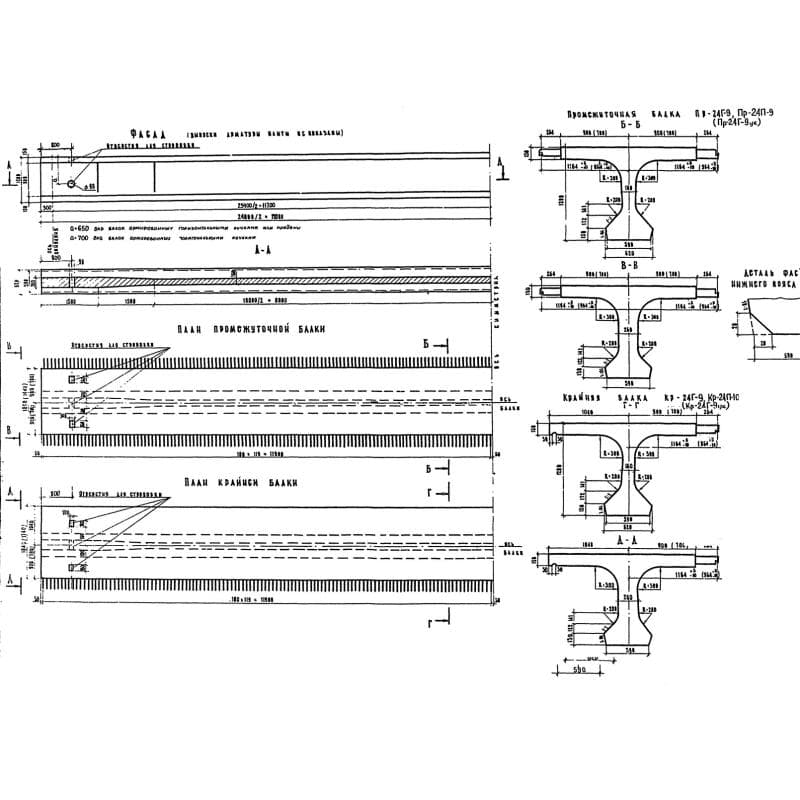
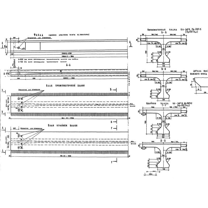
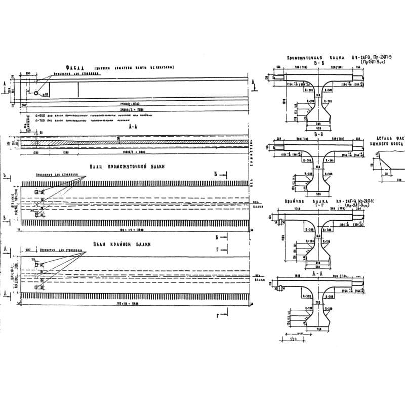
Балки пролетного строения Серия 3.503.1-73
Балки пролетного строения ТУ 5851-008-01388383-2002
Балки промежуточные Серия 3.503-44
Балки промежуточные Серия 3.503.1-63
Балки ребристые пролетного строения Серия 3.501.1-146
Балки с пониженной строительной высотой Серия 3.501.1-146
Балки пролетного строения Серия 3.503-12
7 из 43 (4 страниц)






