Балки пролетного строения Серия 3.503.1-73

1100x950x9000Б 900-110-95 Т28AII в-2
Цена по запросу

1440x1080x18000Бкр 1800-144-108-5-28 AIIIв
Цена по запросу

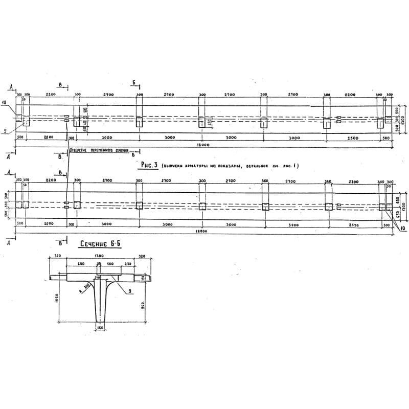
1750x1080x18000Бкр 1800-175-108-5-28 AIIIв-2 и т
Цена по запросу

1750x1080x18000Бкр 1800-175-108т-4-28 AIIIв т
Цена по запросу

1820x1080x18000Бкр 1800-182-108-5-28 AIIIв-2 и т/н
Цена по запросу

1300x1080x18000Бср 1800-130-93-108 т-4-28AIIIв
Цена по запросу

1300x1080x18000Бср 1800-130-93-108-5-28AIIIв-1 и
Цена по запросу