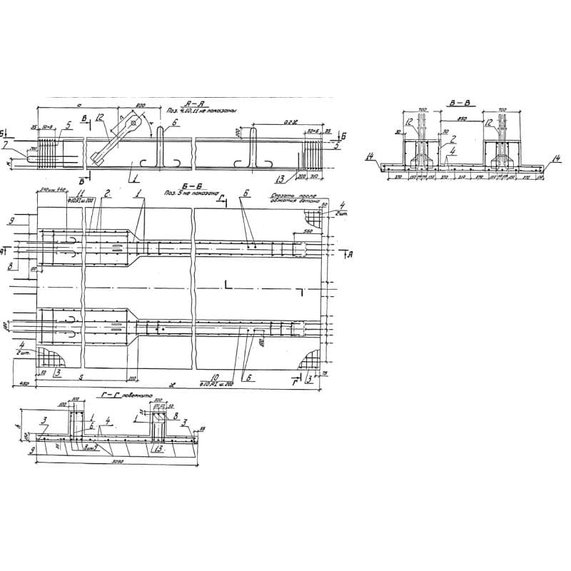
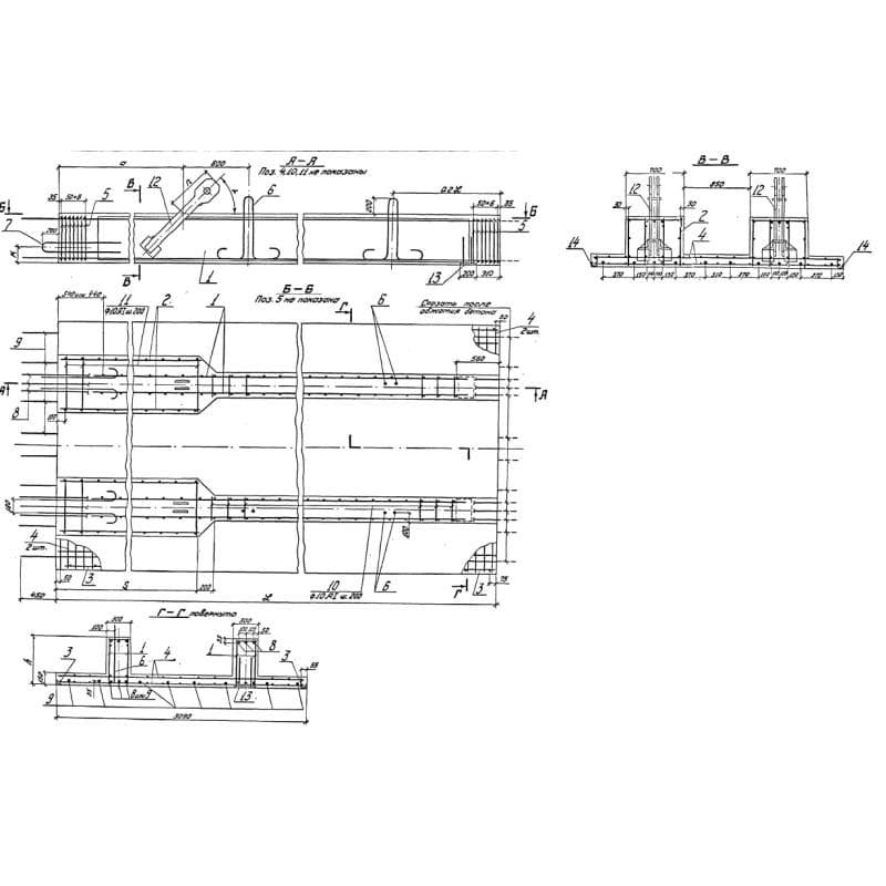
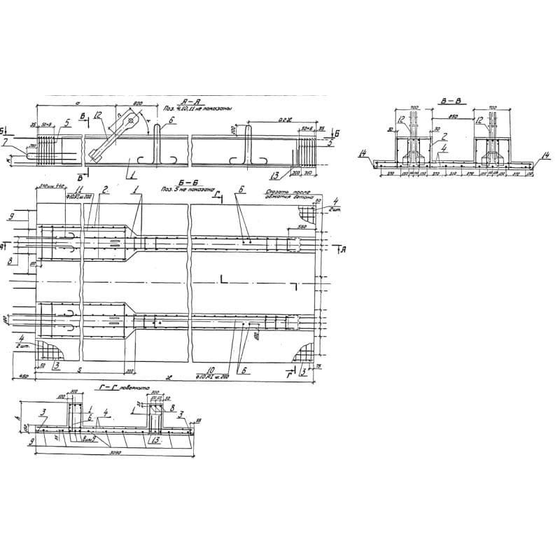
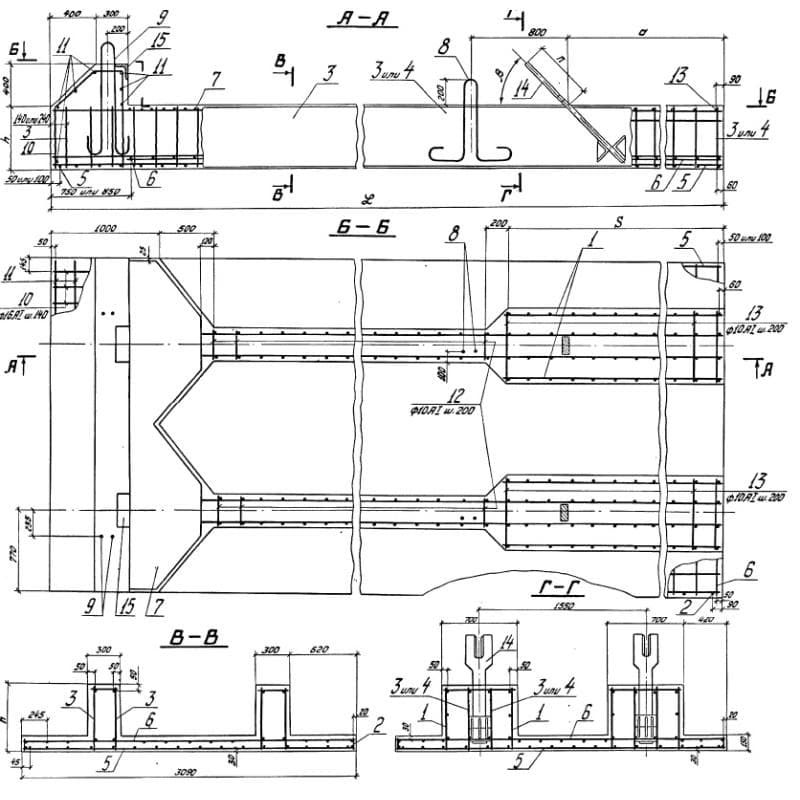
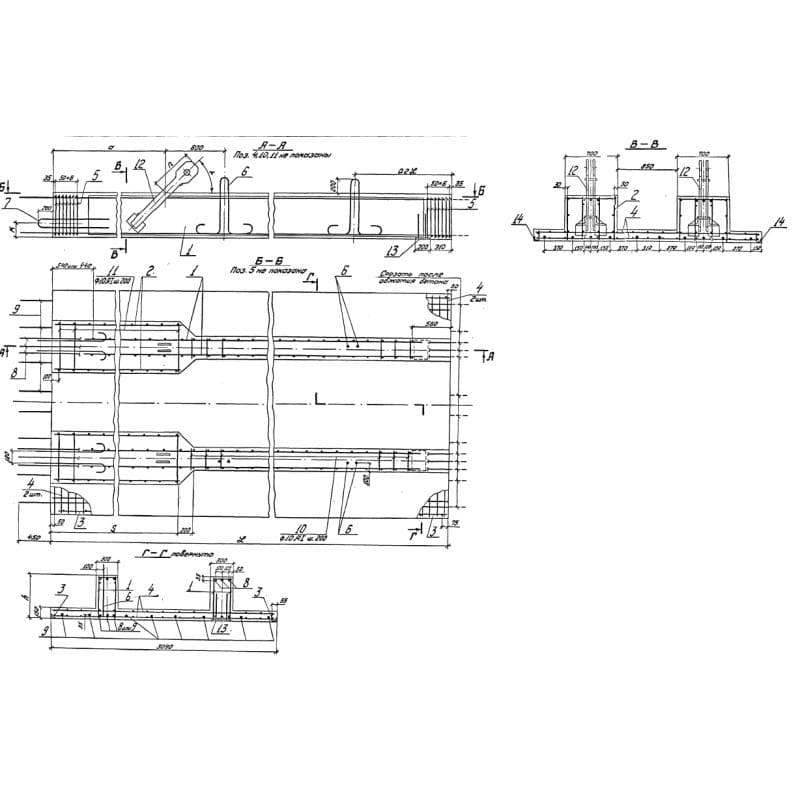
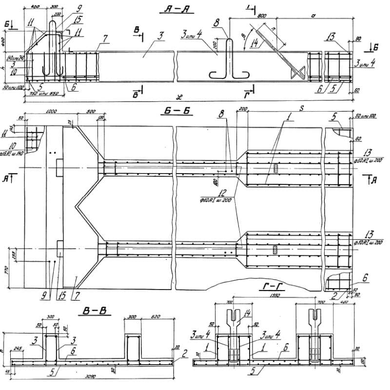
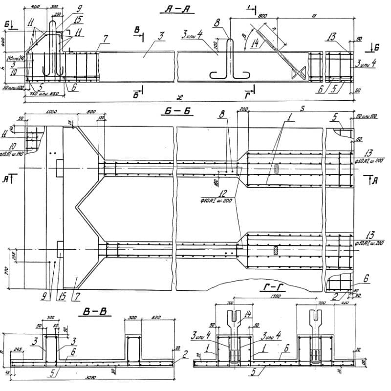
Фундаментные блоки, Лежни, Фундаменты

3090x500x60002ВЭН 60-5 АIIIв
Цена по запросу

3090x400x65002ВЭН 65-4
Цена по запросу

3090x500x65002ВЭН 65-5 АIIIв
Цена по запросу

3090x600x105002ВЭО 105-6 АIIIв
Цена по запросу

1540x700x100001ВЭБ 100-7 АIIIв
Цена по запросу

3090x500x90002ФПН 90-5
Цена по запросу

650x450x6501ОСП 30-1
Цена по запросу

3090x500x85002ВЭБ 85-5 АIIIв
Цена по запросу

3090x700x120002ФПН 120-7
Цена по запросу

3090x500x90002ВЭО 95-5
Цена по запросу

3090x700x125002ФПО 125-7
Цена по запросу

650x450x18002ОСП 40-2
Цена по запросу