Оголовки Альбом ПП 16-12
Оголовки ГОСТ Р 54272-2010
Оголовки ГОСТ 32209-2013
Оголовки свай Серия 1.100.1-7
Оголовники с платформенным опиранием на сваю Серия 1.111.1-4
Оголовки Серия 3.501.1-149
Подколонники Серия 1.220.1-3м
Подколонники Серия 1.411.1-3
Оголовники свай типа "колокол" Серия 1.111.1-4
Подножники Серия 3.407-96
Подколонники Серия 3.015-8/84
Подножники Серия 3.407.9-180
Подножники под анкерно-угловые опоры с моденизированным оголовником Серия 3.407.1-115
Ростверки Серия 3.407-40/70
Оголовки Серия 3.501.1-130
Подпятники ТП 1042тм
Ростверки Серия 1.220.1-3м
Башмаки сборных колонн Серия РМ 2-77
Ростверки Серия 3.015-5/86
Ростверки Серия 1.411.1-7
Башмаки фундаментные Серия 3.507-1
Контрфорсы ТП 811-29
Ростверки Серия 3.501.1-131
Подпятники Серия 3.407.1-175
Подстаканники Серия 1.269.1-4
Башмаки Серия 1.411.1-4
Ростверки Серия 3.501.1-153
Ростверки Серия 1.411.1-4
Подферменники ТПР 709-09-29.84
Контрфорсы Серия 1.169.1-1
Стаканы фундаментные Серия 3.501.1-135
Фундаменты (подножники) Серия 3.407-40/70
Стаканы опорные Серия ИИ 01-02
Подстаканники Серия 1.269-2
Фундаменты (подножники) Серия 3.407-98
Стаканы бетонные Серия 1.465-7
Стенки бортовые ТПР 501-07-5.84
Малозаглубленные фундаменты Серия 3.407.1-159
Ростверки Серия 1.411.1-6
Фундаментные секции Серия 3.407-123
Ростверки Серия РМ 2-77
Фундаменты Альбом РК 1101-87
Стаканы бетонные Серия 1.494-24
Стенки бортовые ТПР 501-07-014.91
Фундаменты Альбом СК
Фундаменты (подножники) серия 3.407.1-157 ( серия 3.407-102, 3.407-40/70 )
Стаканы Серия 1.269-2
Стаканы Серия 1.269.1-4
Стаканы бетонные Серия 1.865.1-4/84
Фундаменты ГОСТ 24155-80
Фундаменты Серия 1.020-1
Фундаменты ГОСТ 24155-2016
Фундаменты Рабочие чертежи 5255
Фундаменты Серия 1.113 КР-1
Фундаменты Серия 1.090.1-1
Фундаменты Серия 1.812.1-3
Фундаменты Серия 1.220.1-2
Фундаменты Серия 1.812.1-1
Фундаменты Серия 1.412-3/79
Фундаменты Серия 1.812.1-2
Фундаменты Серия 1.412.1-6
Фундаменты Серия 3.004.1-14
Фундаменты Серия 1.820.9-1
Фундаменты Серия 3.015.2-15
Фундаменты Серия 1.812.1-6с
Фундаменты Серия 1.812.1-8.93
Фундаменты Серия 3.004.1-10
Фундаменты Серия 3.016.1-9
Фундаменты Серия 3.300.9-3
Фундаменты Серия 3.019.1-2
Фундаменты Серия 3.016.2-12
Фундаменты Серия 3.300.9-2
Фундаменты Серия 3.402-24
Фундаменты Серия 3.407-123
Фундаменты Серия 3.407.9-153
Фундаменты Серия 3.501.1-153
Фундаменты Серия 3.501.1-155
Фундаменты Серия 3.503-8/74
Фундаменты Серия 3.503.1-96
Фундаменты Серия 3.503.9-59
Фундаменты Серия 3.505-11
Фундаменты Серия 3.507 КЛ-10
Фундаменты Серия 3.900-3
Фундаменты Серия 3.900.1-10
Фундаменты Серия 3.903 КЛ-13
Фундаменты под колонны ТП 901-4-63.83
Фундаменты железобетонные сборные под колонны сельскохозяйственных зданий ГОСТ 24022-80
Фундаменты под анкерно-угловые опоры серия 3.407.1-144, 3.407-115
Фундаменты блочные с анкерным креплением стоек для скальных грунтов ГОСТ 32209-2013
Фундаменты железобетонные сборные под колонны сельскохозяйственных зданий Серия 1.812.1-5с
Фундаменты трехлучевые с анкерным креплением стоек ГОСТ Р 54272-2010
Фундаменты цельные под колонны Серия 1.020.1-7
Фундаменты монолитные Серия 1.412.1-4
Фундаменты Серия ИИ 41
Фундаменты под промежуточные опоры укороченные Серия 3.407.1-115, 3.407.1-159
Фундаменты цельные под колонны (Ф) Серия 1.020-1/87 ( 1.020.1-7, 1.020-1/83, ИИ 04-1, 1.020.1-3пв )
Фундаменты ТП 20008тм-т4
Фундаменты с уширенной полкой ГОСТ Р 54272-2010
Фундаменты трехлучевые с анкерным креплением консольных опор контактной сети ТСА Рабочие чертежи 4182и
Фундаменты трехлучевые стаканные ГОСТ Р 54272-2010
Фундаменты блочные с анкерным креплением стоек для скальных грунтов ГОСТ Р 54272-2010
Фундаменты Ф Серия 3.503.9-80
Фундаменты трехлучевые стаканные с заострением подземной части для опор контактной сети ТСС ГОСТ 32209-2013
Фундаменты трехлучевые стаканные с заострением подземной части для опор контактной сети ТСС Рабочие чертежи 4182и
Фундаменты опор Серия 3.820-13
Фундаменты монолитные ФМ Серия 3.503.9-80
Фундаменты под анкерно-угловые опоры составные и составные со сварным и болтовым присоединением Серия 3.407-115
Фундаменты под железобетонные колонны Серия 3.015.1-17.94
Фундаменты сборные железобетонные для колонн серия 1.020-1/87 ( 1.020.1-7, 1.020-1/83, ИИ 04-1, 1.020.1-3пв )
Фундаменты с уширенной полкой ГОСТ 32209-2013
Фундаменты для плит забора Серия ИЖ 31-77
Фундаменты под панели оград Серия 3.818.9-2
Фундаменты трехлучевые северные Серия 3.501.1-130
Фундаменты под стальные опоры Серия 3.015.1-17.94
Фундаменты колонн стаканного типа ФЖ Серия 71159с
Фундаменты цельные под колонны Серия 1.812.1-5с
Фундаменты ограждения Серия БТ 01-01
Фундаменты под промежуточные опоры Серия 3.407.1-144, 3.407.1-115, 3.407.1-159
Фундаменты анкерные ИНВ 12981тм-1
Фундаменты цельные под колонны Серия 1.020.1-2с/89
Фундаменты свайные под стальные анкерные опоры Серия 3.015.1-17.94
Фундаменты трехлучевые с анкерным креплением консольных опор контактной сети ТСА ГОСТ 32209-2013
Фундаменты для параболических лотков стаканного типа (Ф) ГОСТ 23972-80
Фундаменты сборные железобетонные для колонн Серия СТД 07
Фундаменты Серия ИИ 04-0
Фундаменты ТП 320-55
Фундаменты под промежуточные и промежуточно-угловые опоры на оттяжках укороченные Серия 3.407-115, 3.407.1-159
Фундаменты Серия Б 3.017.1-4.03
Фундаменты цилиндрические серия 3.407.1-157 ( серия 3.407-102, 3.407-40/70 )
Фундаменты ТПР 501-07-3.83
Фундаменты трехлучевые с анкерным креплением стоек для скальных грунтов ГОСТ Р 54272-2010
Фундаменты под промежуточные опоры составные и составные со сварным и болтовым присоединением Серия 3.407.1-115
Фундаменты ТПР 320-069.86
Фундаменты трехлучевые стаканные Серия 3.501.1-149
Фундаменты оград Серия 3.017-1
Фундаменты Серия ОФ 01-01
Фундаменты опор Серия 3.820-3
Фундаменты Серия 7.501-2
Фундаменты с анкерным креплением стоек для скальных грунтов ГОСТ 32209-2013
Фундаменты ТП 310-4-1
Шпунты Серия 3.505.1-15
Фундаменты под промежуточные и промежуточно-угловые опоры на оттяжках Серия 3.407-115, 3.407.1-159
Фундаменты монолитные Шифр 27Н-83
Фундаменты Серия Б3.507.1-3.04
Фундаменты железобетонные сборные под колонны сельскохозяйственных зданий Серия 1.812.1-1/92
Элементы Серия 3.505.1-15
Фундаменты под промежуточные опоры повышенные Серия 3.407.1-115, 3.407.1-144
Фундаменты сборные железобетонные для колонн ГОСТ 24476-80
Фундаменты опор Серия 3.820.1-34с
Фундаменты плитного типа ГОСТ 23972-80
Фундаменты оград Ф серия 3.017-3 ( 3.017-1 )
Фундаменты под анкерно-угловые опоры повышенные Серия 3.407.1-144 и 3.407-115
Фундаменты цилиндрические Серия 3.407-40/70
Фундаменты трехлучевые с анкерным креплением стоек жестких поперечин Рабочие чертежи 4182и
Элементы Серия 3.505.1-15

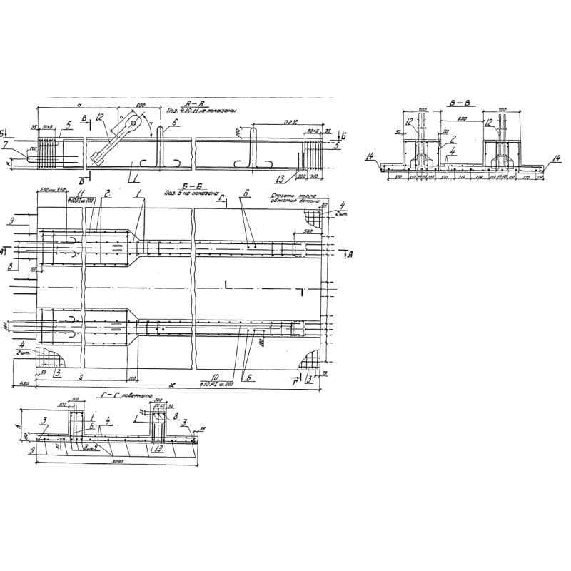
3090x800x115002ВЭО 115-7 АIIIв
Цена по запросу

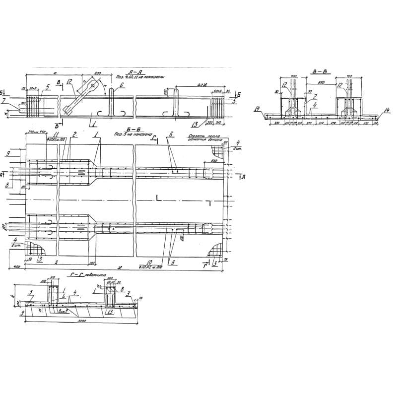
3090x800x115002ВЭО 115-7 АIIIв
Цена по запросу

3090x800x115002ВЭО 115-7 АIIIв
Цена по запросу

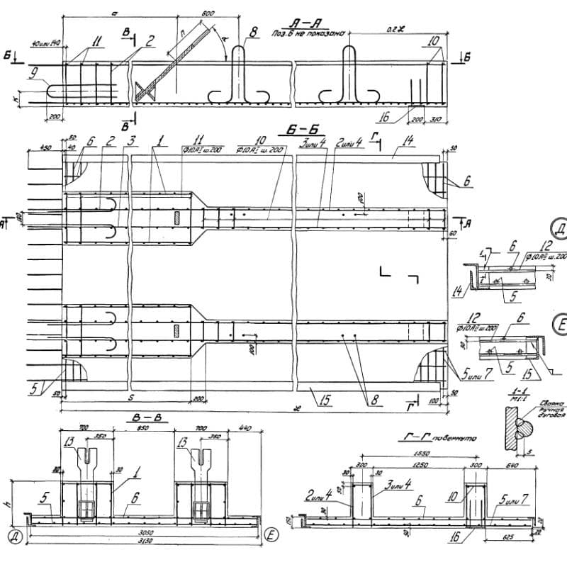
3090x800x115002ВЭО 115-8
Цена по запросу

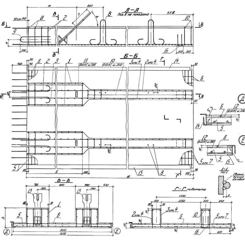
3090x800x115002ВЭО 115-8
Цена по запросу

3090x800x115002ВЭО 115-8
Цена по запросу

3090x800x115002ВЭО 115-8
Цена по запросу

3090x800x115002ВЭО 115-8
Цена по запросу

3090x800x115002ВЭО 115-8
Цена по запросу

3090x800x115002ВЭО 115-8
Цена по запросу

3090x800x115002ВЭО 115-8
Цена по запросу

3090x800x115002ВЭО 115-8
Цена по запросу
12 из 3780 (315 страниц)