Звенья железобетонные прямоугольные сборные водопропускных труб для железных и автомобильных дорог серия 3.501.1-177.93 (3.501-104, 3.501.1-126)

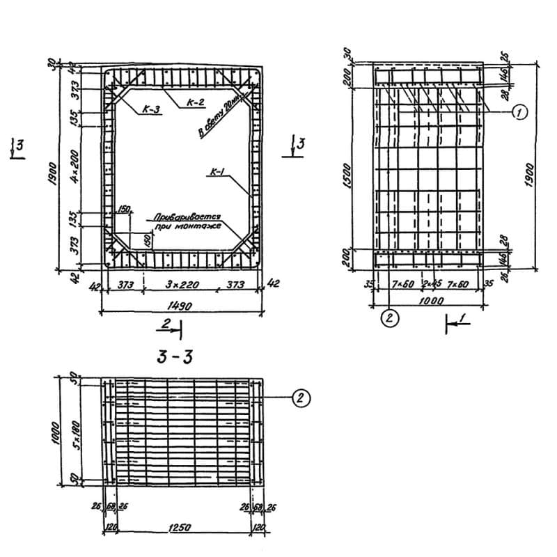
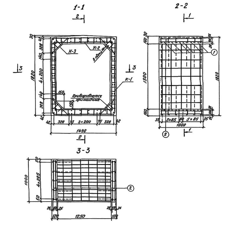
1490x1850x1000Блок 84
Цена по запросу

1490x1930x1000Блок 85
Цена по запросу

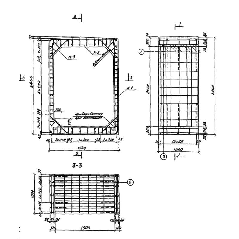
1740x2330x1000Блок 86
Цена по запросу

1740x2430x1000Блок 87
Цена по запросу

1800x2530x1000Блок 88
Цена по запросу

2680x2320x1000Блок 89
Цена по запросу

2900x2780x1000Блок 90
Цена по запросу

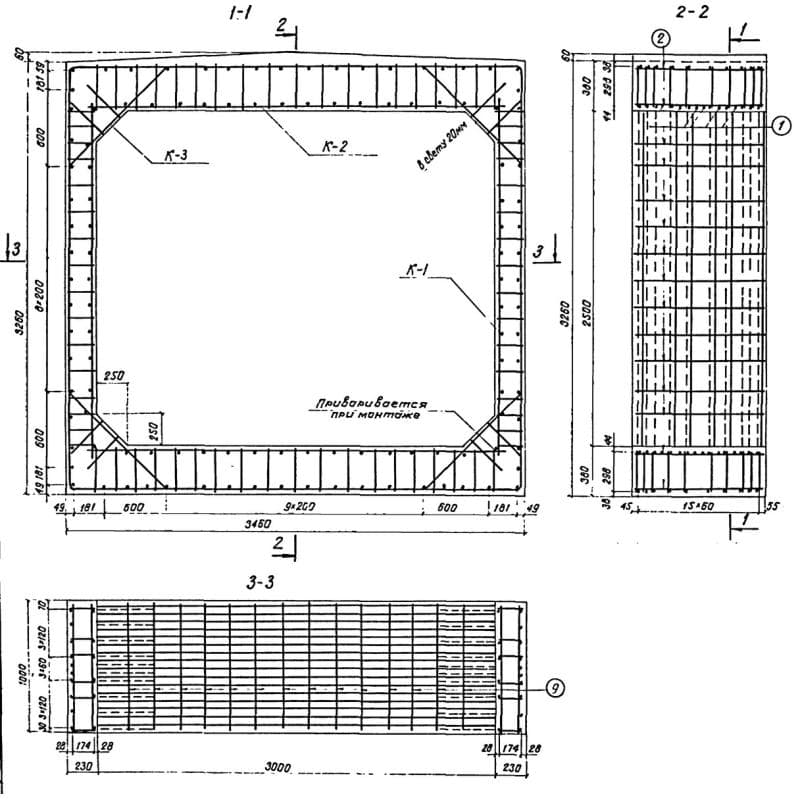
3320x3000x1000Блок 91
Цена по запросу

3400x3140x1000Блок 92
Цена по запросу

3400x3320x1000Блок 93
Цена по запросу

4360x3130x1000Блок 94
Цена по запросу

4420x3100x1000Блок 95
Цена по запросу