Балки , Ригели, Фермы, Траверсы железобетонные

600x800x5950БК 6-3 АVт (1.426.1-8)
Цена по запросу

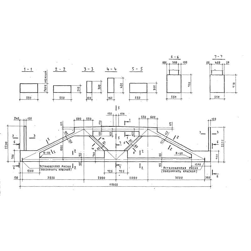
550x2200x118602ФПС 12-2 АIV с8
Цена по запросу

400x450x55602Р 56-4,5-9 т
Цена по запросу

240x1640x179602БДР 18-8 АIIIв н
Цена по запросу

550x450x46202БР 46-5-4-2 т
Цена по запросу

300x300x50502БФ 6-14 АIIIв
Цена по запросу

300x300x40002БФ 40-4
Цена по запросу

250x3240x239402ФС 24-3 к7 па
Цена по запросу

200x1390x119601БДР 12-7 АIIIв н
Цена по запросу

250x2725x179403ФС 18-7 АIIIв н (ПК 01-129/78)
Цена по запросу

400x500x7800ТВ 6-1
Цена по запросу

200x1390x119601БДР 12-1 к7 т (1.462.1-3/80)
Цена по запросу