Балки , Ригели, Фермы, Траверсы железобетонные

4975x600x55601РОП 6-56-30 АIV
Цена по запросу

375x450x61202РО 4-62-30 АIV-1 л (1.020-1)
Цена по запросу

300x450x3880БФ 39-3,0-4,5-18 т
Цена по запросу

280x2830x239601,2ФСП 24-05,40 АV
Цена по запросу

650x1000x107801РЖ 10-108-85 АIIIв д
Цена по запросу

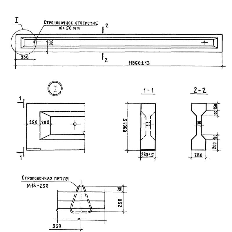
280x890x119604БСО 12-3 АтV (1.462.1-1/81)
Цена по запросу

280x890x119602БСП 12-7 АтVск п (1.462.1-1/81)
Цена по запросу

150x300x2400Т 6-1 (3.015-1/82)
Цена по запросу

280x1640x179603БДР 18-6 п*
Цена по запросу

280x890x119602БСО 12-4 АIV п
Цена по запросу

280x1640x179603БДР 18-7 AIIIв-т 1,5
Цена по запросу

650x1000x107801РЖ 10-108-145 АтVт
Цена по запросу