Фермы железобетонные

250x2640x179402ФС 18-6 АIIIв на (ПК 01-129/78)
Цена по запросу

280x2830x239602,3ФСП 24-12,55 АIV
Цена по запросу

200x2630x179401ФС 18-4/5 АIIIв в
Цена по запросу

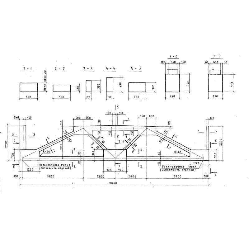
550x2200x118602ФПС 12-1 АIIIв с8
Цена по запросу

320x2785x179603,3ФСП 18-10,35 АIV
Цена по запросу

320x2830x239603,3ФСП 24-15,55 АIV
Цена по запросу

240x3000x179402ФБС 18
Цена по запросу

250x2640x179402ФС 18-6/7 АIV в
Цена по запросу

200x1945x119601ФТ 12-3 АIVт (1.063.1-1)
Цена по запросу

250x3160x239401ФС 24-5 АтпV вна (ПК 01-129/78)
Цена по запросу

280x2785x179603,1ФСП 18-09,35 АV
Цена по запросу

250x3160x239401ФС 24-4 АIIIв в
Цена по запросу