Плиты, Блоки, Столбы, Стойки различного назначения

180x900x1980НБПУ 20-9-2 ла (1.133-2)
Цена по запросу

400x250x41801ПП 42-4-2,5-6 я (Б1.043.1-2.08)
Цена по запросу

550x1480x1650СБ 7,2-17-15-55 т-3 (1.116.1-6)
Цена по запросу

600x2380x1215СБ 5-1-12-24-6 п-1,1
Цена по запросу

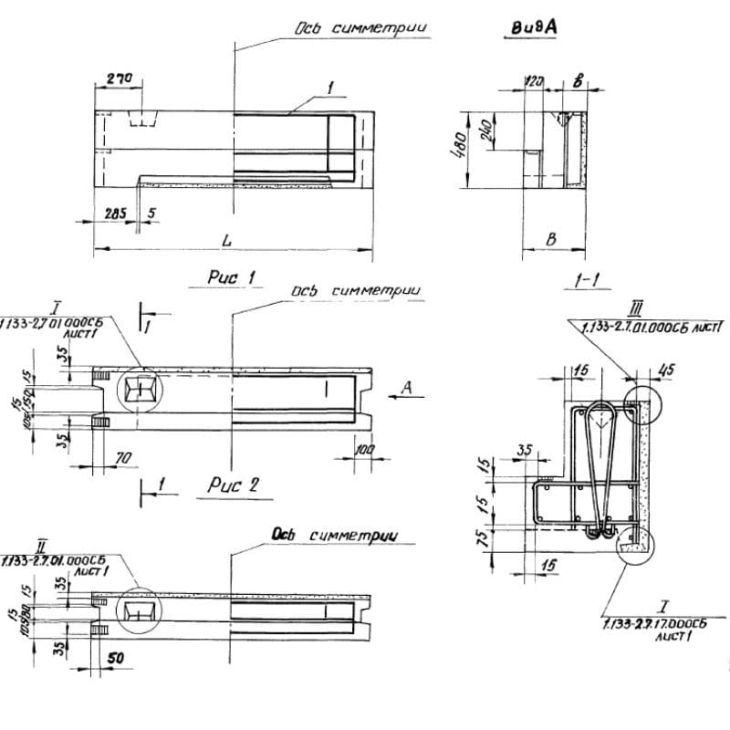
400x480x2380СБ 24-5-4 п (1.133-2)
Цена по запросу

1400x1100x441033Р 50
Цена по запросу

480x900x1980СБП 20-9-5 п-2 (1.133-2)
Цена по запросу

300x1180x1450СБЦ 14-12-3 п-2 (1.133-2)
Цена по запросу

240x1785x2230БР 24-1,8-2,25
Цена по запросу

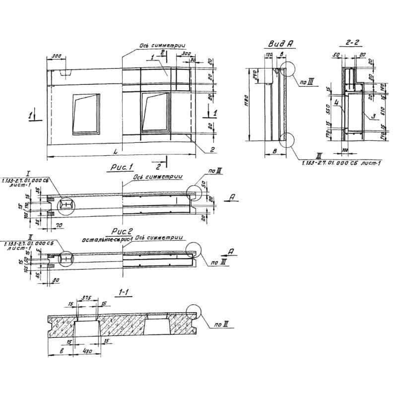
450x1180x2390НЦ 24-12-4-1 а (1.133-2)
Цена по запросу

420x760x1245НБД 12-8-4
Цена по запросу

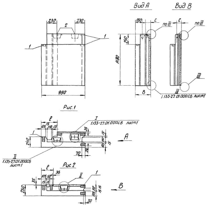
550x1180x990НЦЛ 10-12-5 ла (1.133-2)
Цена по запросу