Панели оград железобетонные

45x500x20001-3П 200-60-5 м
Цена по запросу

160x2000x30001ПБ 30-20
Цена по запросу

45x500x20001-3П 200-50-5 м
Цена по запросу

120x1600x30002ПБ 30-16
Цена по запросу

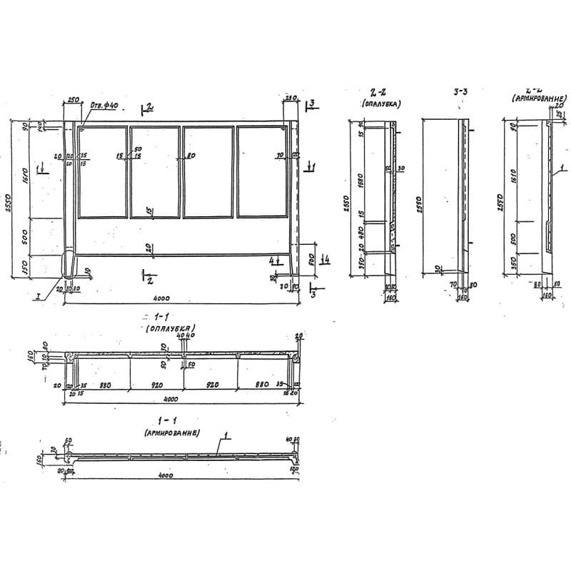
160x2000x40001ПБ 40-20 рв
Цена по запросу

120x1600x30002ПБ 30-16
Цена по запросу

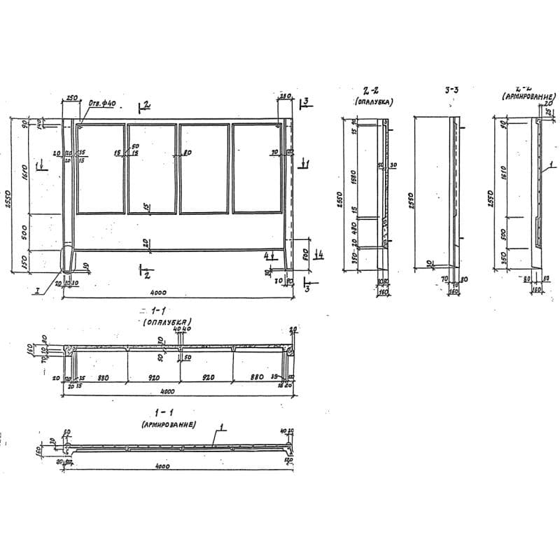
160x2000x40001ПБ 40-20 р
Цена по запросу

45x500x20001-3П 200-50-5 м
Цена по запросу

45x500x20001-2П 200-50-5 м
Цена по запросу

45x500x20001-3П 200-50-5 м
Цена по запросу

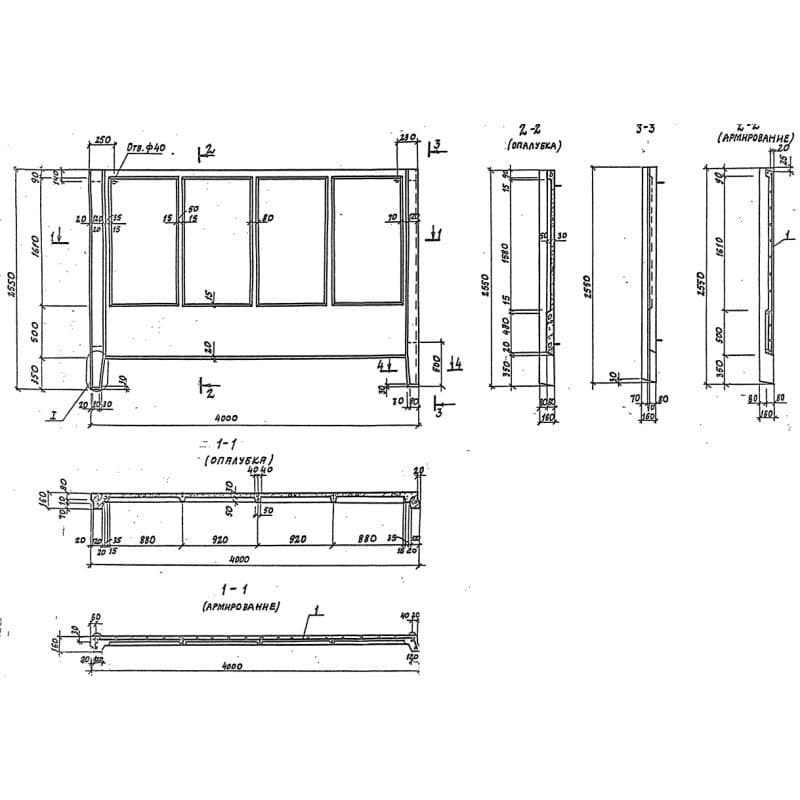
160x2000x40001ПБ 40-20
Цена по запросу

45x500x20001-3П 200-50-5 м
Цена по запросу