Колонны, диафрагмы железобетонные

400x400x59501КНД 4-42-3,6
Цена по запросу

400x400x77702КН2 4-42(20)-35 (Б1.020.1-7)
Цена по запросу

400x500x75003К 66-5 м2
Цена по запросу

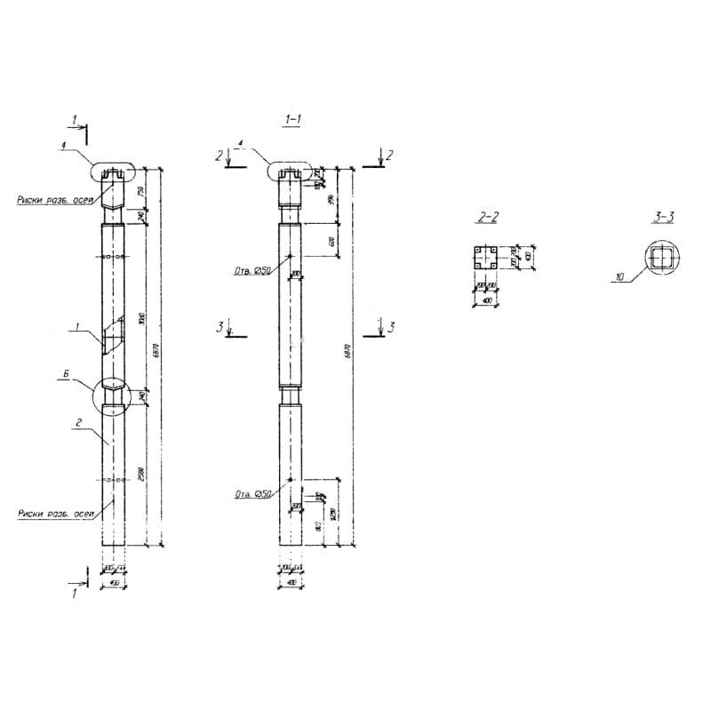
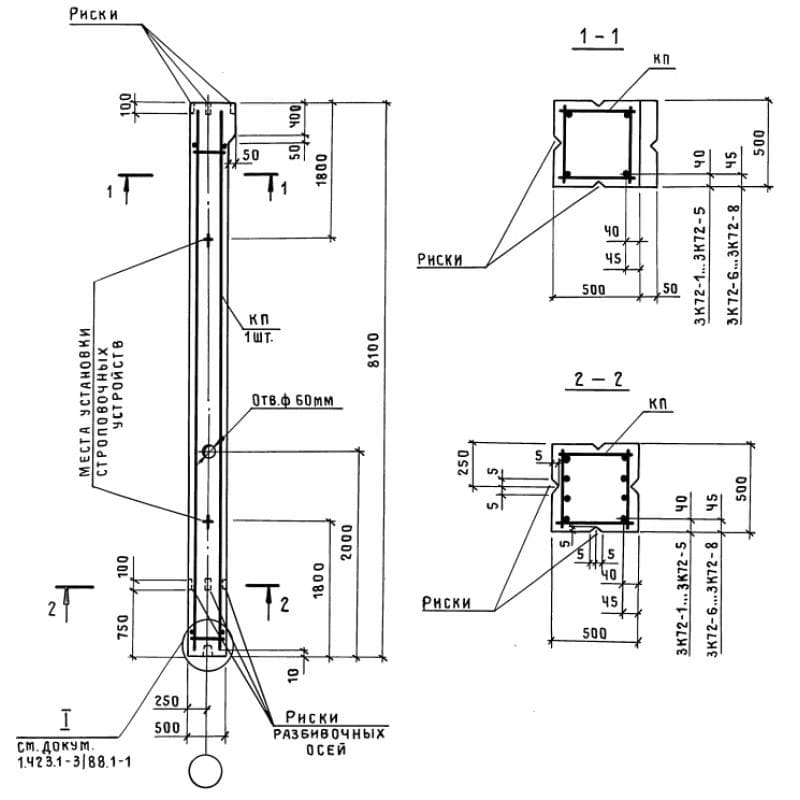
500x500x81003К 72-4 м3
Цена по запросу

500x400x129002КО 5-48(72)-2
Цена по запросу

400x400x103202КБ 48-103-13
Цена по запросу

400x400x111503КНД 33-1-35/42-4
Цена по запросу

400x400x96502КНО 36-48-2-28/31
Цена по запросу

600x500x169003КД 156-6,4
Цена по запросу

400x400x146002КНО 4,60(72)-4,24 (1.020-1)
Цена по запросу

400x400x108002КВД 4,60-1,26 (1.020-1)
Цена по запросу

400x400x115503КНО 4-36-1-24 пв
Цена по запросу