Колонны Серия 1.020-1
Колонны ГОСТ 23899-79
Колонны Серия 1.220-1
Колонны Серия 1-82
Колонны Альбом РК 1101-87
Колонны Серия 1.030.9-2
Колонны Серия 1.022 КЛ-2
Колонны Серия 1.400.1-22
Колонны Серия 1.420-4
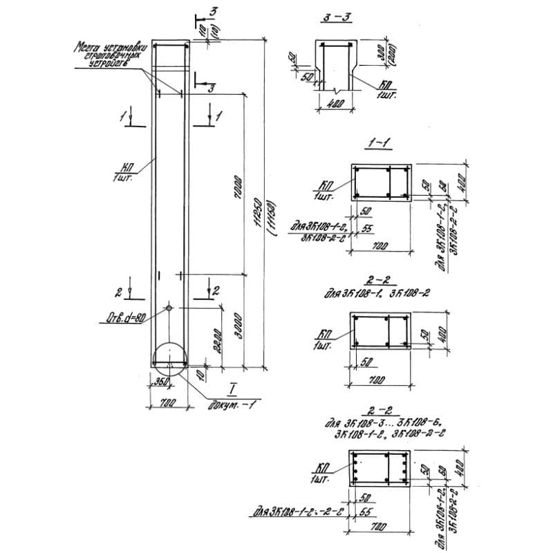
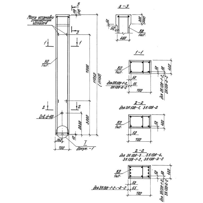
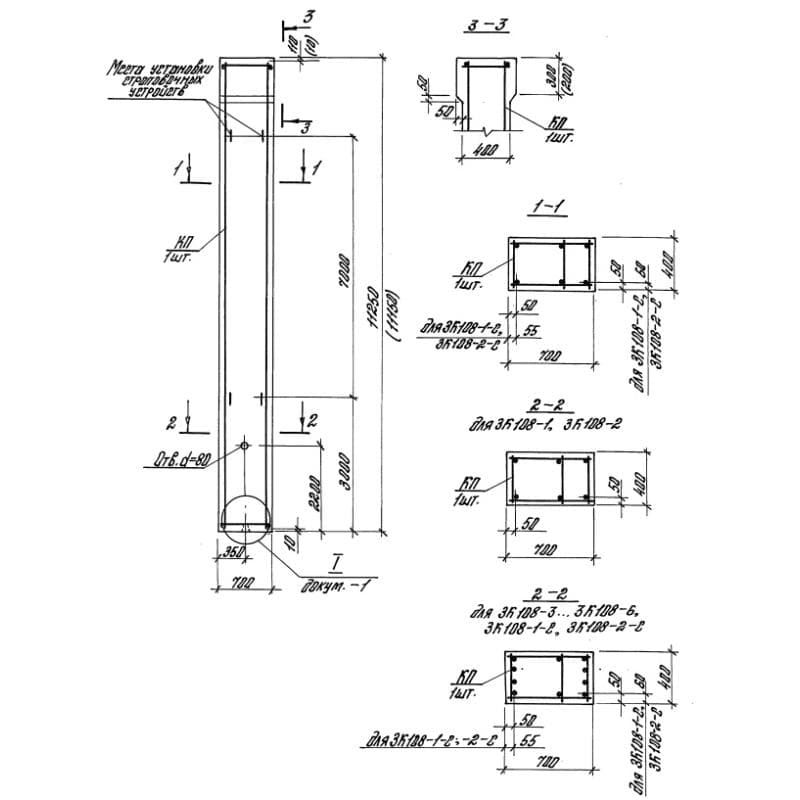
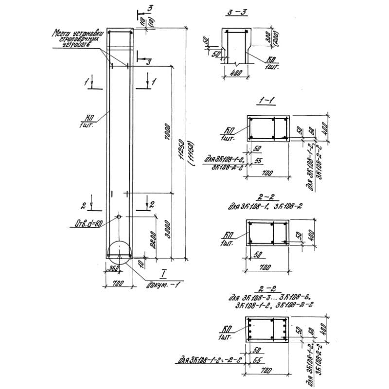
Колонны ГОСТ 27108-86
Колонны Серия 1.335 ОМ
Колонны Серия 1.420-13
Колонны Серия 1.220.1-2
Колонны Серия 1.020.1-6сп
Колонны Серия 1.423-2с
Колонны Серия 1.220.1-3м
Колонны Серия 1.420.1-25
Колонны Серия 1.421.1-1.93
Колонны Серия 1.420-6
Колонны Серия 1.420.1-24с
Колонны Серия 1.420.1-32
Колонны Серия 1.420-8/81
Колонны Серия 1.823.1-3с
Колонны Серия 3.013.9-1
Колонны Серия 1.466-3 с
Колонны Серия 1.823.1-2
Колонны Серия 3.012.1-4
Колонны Серия 1.427.1-8
Колонны Серия 3.012-3
Колонны Серия 1.424.1-13
Колонны Серия 1.424.1-12
Колонны Серия 1.423.1-7
Колонны Серия 1.427.1-7
Колонны Серия 3.015-3/82
Колонны Серия 3.016.1-11
Колонны Серия 3.015-3/92
Колонны Серия 3.016.1-17.93
Колонны Серия 3.015-3/77
Колонны Серия 1.020.1-4
Колонны Серия 1.020-1/87 ( 1.020.1-7, 1.020-1/83, ИИ 04-1, 1.020.1-3пв )
Колонны Серия 3.507-1
Колонны Серия 3.407-40/70
Колонны Серия 3.402-24
Колонны Серия КЭ 01-49
Колонны Серия 3.019.1-1
Колонны Серия 3.015-2/77
Колонны Серия 3.015-1/82
Колонны Серия КЭ 01-52
Колонны ТП 901-6-43
Колонны Серия 3.015-1
Колонны Серия МПЗ 01-01
Колонны ТП 901-5-41.87
Колонны Серия У 01-02/89
Колонны Серия 3.015-3
Колонны ТП 901-5-38.87
Колонны Серия КЭ 01-55
Колонны Серия У 01-01
Колонны Серия 3.015-2
Колонны Серия 3.015-1/77
Колонны ТП 901-5-47.90
Колонны Серия 3.015-2/82
Колонны ТП 901-5-44.87
Колонны ТП 901-5-48.90
Колонны ТП 901-4-63.83
Колонны Серия ИИ 22-2/70
Колонны Серия Б1.020.1-7
Колонны Серия 3.900-3
Колонны Серия 7018м
Колонны Серия 7075м
Колонны Серия ЖУК 99
Колонны Серия 3.702.1-4
Колонны Серия 3.702-1/79
Колонны Серия ИИ 41
Колонны Серия 3.900.1-10
Колонны Серия ИС 01-08/67
Колонны Серия ИИС 62
Колонны Серия ИИ 03-02
Колонны Серия ИИС 04-2
Колонны Серия КУБ 2,5
Колонны Серия КЭ 01-06
Колонны Серия ИС 01-19
Колонны Серия ИИ 22-1
Колонны Серия ИИ 22-3/70
Колонны Серия ИИЭ 22-1/73
Колонны Серия ИС 01-09
Колонны Серия ИИ 62
Колонны Серия ИИ 22-3
Колонны Шифр Э 1708/1
Колонны ТП 901-6-61
Колонны Шифр 2021-164
Колонны витринные Альбом 55 НТ
Колонны высотой 4,8; 6,0-4,8 м Серия 1.420.1-19
Колонны высотой 4,8; 6,0-4,8 м Серия 1.420.1-20с
Колонны высотой 6,0; 7,2 м Серия 1.420.1-20с
Колонны высотой 7,2 м Серия 1.420.1-19
Колонны высотой 5,4 м Серия 1.420.1-20с
Колонны высотой 5,4 м Серия 1.420.1-19
Колонны высотой 6,0; 7,2 м Серия 1.420.1-19
Колонны двухветвевые с проходами Серия 1.424.1-10
Колонны верхних этажей высотой 3,6; 4,8 и 6,0 м Серия 1.420-12 вып. 4
Колонны для зданий высотой 9,0; 10,2; 11,4; 12,6 и 13,8 м Серия 1.424.1-5
Колонны высотой 7,2 м Серия 1.420.1-20с
Колонны для зданий высотой 12,0; 13,2 и 14,4 м Серия 1.424.1-5
Колонны для зданий высотой 4,8; 6,0; 7,2 и 8,4 м
Колонны двухветвевые Серия 1.424.1-9
Колонны двухветвевые Серия КЭ 01-60
Колонны для зданий высотой 4,8; 6,0; 7,2 и 8,4 м Шифр 15-74
Колонны для зданий высотой 9,0; 10,2; 11,44 12,6; 13,8 м Серия 1.427.1-3
Колонны для зданий высотой 8,4; 9,6 и 10,8 м
Колонны для зданий высотой 8,4; 9,6 и 10,8 м Шифр 15-74
Колонны для зданий с высотой этажа 2,8 и 3,3 м серия 1.020-1/87 ( 1.020.1-7, 1.020-1/83, ИИ 04-1, 1.020.1-3пв )
Колонны для зданий с промежуточными высотами Серия 1.423.1-5/88
Колонны для зданий с высотой этажа 3,6 м серия 1.020-1/87 ( 1.020.1-7, 1.020-1/83, ИИ 04-1, 1.020.1-3пв )
Колонны железобетонные Серия 1.423-5
Колонны железобетонные для многоэтажных зданий поперечного сечения 400*600 Серия 1.020-1/87 ( 1.020.1-7, 1.020-1/83, ИИ 04-1, 1.020.1-3пв )
Колонны железобетонные для многоэтажных зданий поперечного сечения 400*400 Серия 1.020-1/87 ( 1.020.1-7, 1.020-1/83, ИИ 04-1, 1.020.1-3пв )
Колонны железобетонные (р.ч.346.3-07-31 КЖИ, инд.)
Колонны доборные Серия 1.123 КР-1
Колонны для зданий высотой 8,4; 9,6 и 10,8 м Серия 1.424.1-5
Колонны для зданий с высотой этажей 4,8 (6,0) и 3,6 (4,8) м серия 1.020-1/87 ( 1.020.1-7, 1.020-1/83, ИИ 04-1, 1.020.1-3пв )
Колонны для зданий с высотой этажей 5,4 и 6,0 (7,2) м серия 1.020-1/87 ( 1.020.1-7, 1.020-1/83, ИИ 04-1, 1.020.1-3пв )
Колонны железобетонные Серия 1.423.1-5/88
Колонны для зданий с высотой этажа 4,2 м серия 1.020-1/87 ( 1.020.1-7, 1.020-1/83, ИИ 04-1, 1.020.1-3пв )
Колонны железобетонные для многоэтажных производственных зданий на высоту этажа 6,0 м Серия 1.420-12 вып. 3
Колонны железобетонные для многоэтажных производственных зданий на высоту этажа 4,8 м Серия 1.420-12 вып. 2
Колонны железобетонные для многоэтажных производственных зданий на высоту этажа 3,6 м Серия 1.420-12 вып. 1
Колонны железобетонные для многоэтажных зданий рамного каркаса Серия 1.020-1/87 ( 1.020.1-7, 1.020-1/83, ИИ 04-1, 1.020.1-3пв )
Колонны сечением 300х300 Серия ИИ 04-2
Колонны сечением 300х300 Серия 1.020.1-7
Колонны сечением 300х300 серия 1.020-1/87 ( 1.020.1-7, 1.020-1/83, ИИ 04-1, 1.020.1-3пв )
Колонны сечением 400х400 мм для зданий с высотами этажей 3,3 м Серия 1.020.1-2с/89
Колонны сечением 400х400 Серия ИИ 04-2
Колонны серия 3.407.1-157 ( серия 3.407-102, 3.407-40/70 )
Колонны крановые с проходами Серия 1.424.1-6/89
Колонны крановые с проходами Серия 1.424.1-6
Колонны нулевого цикла Серия ИИ 60
Колонны сечением 400х400 мм для зданий с высотами этажей 4,8 и 4,8 (6,0) м Серия 1.020.1-2с/89
Колонны серия 3.015-1/92 ( 3.015-1/82 )
Колонны сечением 400х400 мм для зданий с высотами этажей 5,4-6,0 и 6,0 (7,2) м Серия 1.020.1-2с/89
Колонны серия 3.015-16.94 ( 3.015-2/82, 3.015-2/77 )
Колонны сечением 400х400 мм для зданий с высотами этажей 7,0 и 8,0 м Серия 1.020.1-2с/89
Колонны с консолями Серия 1.123 КР-1
Колонны железобетонные. Высота этажей 6,0 и 7,2 м серия 1.420-35.95 ( 1.420-12, ИИ 23-3/70, ИИ 23-2/70, ИИ 23-1/70 )
Колонны железобетонные. Высота этажей 4,8 и 6,0 м серия 1.420-35.95 ( 1.420-12, ИИ 23-3/70, ИИ 23-2/70, ИИ 23-1/70 )
Колонны железобетонные прямоугольного сечения для одноэтажных производственных зданий высотой до 9,6 м без мостовых опорных кранов (серия 1.423.1-3/88 вып. 1)
Колонны железобетонные для одноэтажных зданий предприятий типа (К) Серия 1.423.1-3/88 (1.423-3)
Колонны сечением 400х400 мм для зданий с высотами этажей 4,2 м Серия 1.020.1-2с/89
Колонны сечением 400х400 мм для зданий с высотами этажей 3,6 м Серия 1.020.1-2с/89
Колонны железобетонные Серия 1.423.1-3/88
Колонны железобетонные для зданий высотой 9,0 м Серия 1.423.1-3/88
Колонны типа (К) (инд.)
Колонны тоннелей Серия 3.006.1-3/83
Колонны фахверка Серия 1.427.1-3
Колонны фахверка Серия 1.427.1-5
Колонны фундаментные Серия 1.335 ОМ
Колонны фахверкков двухветвевого сечения Серия 1.427.1-6
Колонны-сваи ГОСТ 23899-79
Консоли Серия 1.421.1-1.93
Опорные подушки Серия 1.030.9-2
Связи Серия КУБ 2,5
Связи-распорки Серия 1.020.1-3пв
Стволы сборных колонн Серия РМ 2-77
Колонны Серия 1.423-2
Колонны железобетонные для многоэтажных зданий связевого каркаса Серия 1.020-1/87 ( 1.020.1-7, 1.020-1/83, 1.020.1-3пв )
Колонны железобетонные Серия 1.423.1-5/88

400x800x154502К 144-8 м5
Цена по запросу

400x800x154502К 144-8 м5
Цена по запросу

400x800x154502К 144-8 м5
Цена по запросу

400x700x111503К 108
Цена по запросу

400x700x111503К 108
Цена по запросу

400x700x111503К 108
Цена по запросу

400x700x112503К 108
Цена по запросу

400x700x112503К 108
Цена по запросу

400x700x112503К 108
Цена по запросу

400x700x112503К 108-1 м3
Цена по запросу

400x700x112503К 108-1 м3
Цена по запросу

400x700x112503К 108-1 м3
Цена по запросу
12 из 918 (77 страниц)