Диафрагмы жесткости железобетонные

550x4170x14802Д 15-42
Цена по запросу

550x4170x11802Д 12-42-1 пв
Цена по запросу

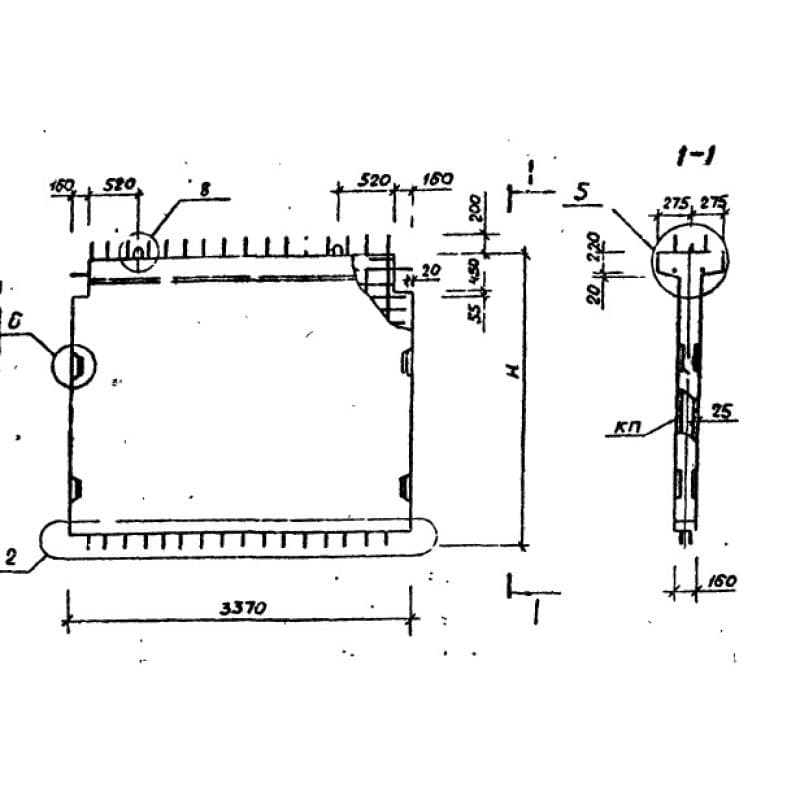
345x5970x31601ДП 32-60 (1.020-1)
Цена по запросу

550x1770x33702Д 34-17-1 сп (1.020.1-6сп)
Цена по запросу

550x2770x40602Д 41-28 (1.020-1)
Цена по запросу

345x3270x55601Д 56-33-2 пв
Цена по запросу

550x1770x33702Д 34-17-3 сп (1.020.1-6сп)
Цена по запросу

480x1770x25601Д 26-17-1-1 сп (1.020.1-6сп)
Цена по запросу

480x1770x55601Д 56-17-3-3 сп (1.020.1-6сп)
Цена по запросу

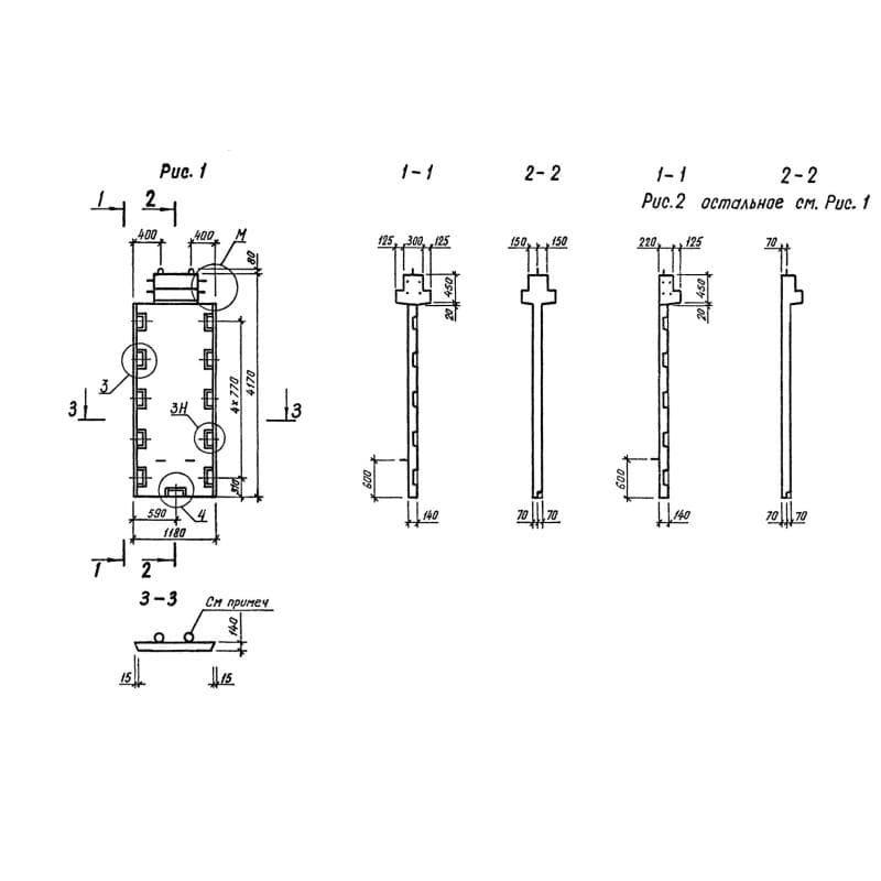
140x2770x55602Д 56-28 (1.020-1)
Цена по запросу

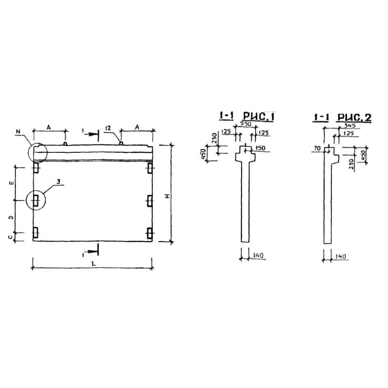
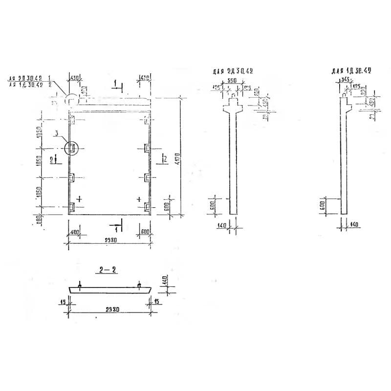
140x4170x29801Д 30-42 оц
Цена по запросу

480x1770x55601Д 56-17-3-1 сп (1.020.1-6сп)
Цена по запросу