Диафрагмы жесткости железобетонные

480x2800x55601Д 56-28-2-1 сп (1.020.1-6сп)
Цена по запросу

550x3270x11802Д 12-33-1 пв
Цена по запросу

550x3270x40602ДП 41-33 (1.020-1)
Цена по запросу

550x3300x55602Д 56-33-3-1 сп (1.020.1-6сп)
Цена по запросу

550x3270x25602ДП 26-33-4 пв
Цена по запросу

345x3570x11801Д 12-36-2 пв
Цена по запросу

345x3340x25601Д 26-33 пв
Цена по запросу

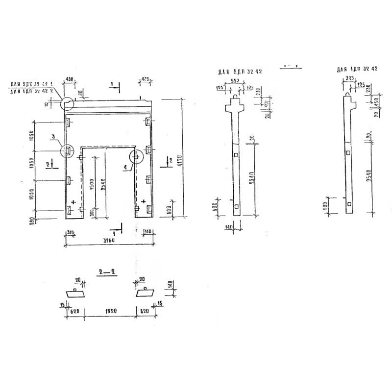
550x4170x31602ДП 32-42
Цена по запросу

345x4170x31601ДП 32-42
Цена по запросу

480x3600x33701Д 34-36-3-3 сп (1.020.1-6сп)
Цена по запросу

345x4170x11801Д 12-42-4 пв
Цена по запросу

550x3600x33702Д 34-36-2-3 сп (1.020.1-6пс)
Цена по запросу