Диафрагмы жесткости железобетонные

550x3300x55602Д 56-33-1 сп (1.020.1-6сп)
Цена по запросу

345x3270x55601ДПК 56-33л-5 пв
Цена по запросу

550x3570x25602ДП 26-36
Цена по запросу

550x3270x25602Д 26-33-4 пв
Цена по запросу

345x3270x55601ДПК 56-33п-4 пв
Цена по запросу

345x4170x25601ДП 26-42-1 пв
Цена по запросу

550x4170x23802Д 24-42-3 пв
Цена по запросу

345x1970x25601ДП 26-20-4 пв
Цена по запросу

550x2800x33702Д 34-28-3 сп (1.020.1-6сп)
Цена по запросу

345x1970x25601ДП 26-20-3 пв
Цена по запросу

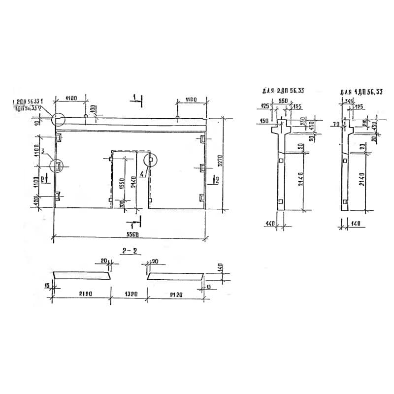
550x3270x55602ДП 56-33
Цена по запросу

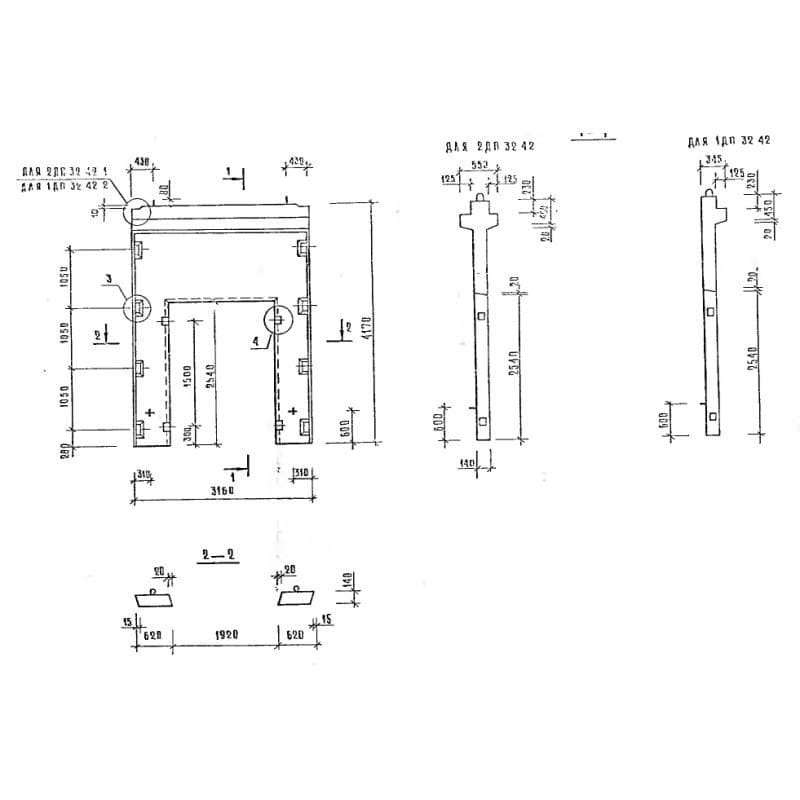
140x4170x31602Д 32-42
Цена по запросу