Диафрагмы жесткости серия 1.020-1/87 ( 1.020.1-7, 1.020-1/83, ИИ 04-1, 1.020.1-3пв )

345x4170x29801ДП 30-42
Цена по запросу

345x4170x29801ДП 30-42
Цена по запросу

345x4170x29801ДП 30-42
Цена по запросу

345x4170x29801ДП 30-42
Цена по запросу

345x4170x29801ДП 30-42
Цена по запросу

345x4170x29801ДП 30-42
Цена по запросу

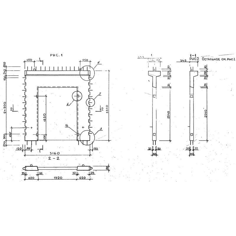
345x3340x31601ДП 32-33 пв
Цена по запросу

345x3340x31601ДП 32-33 пв
Цена по запросу

345x3340x31601ДП 32-33 пв
Цена по запросу

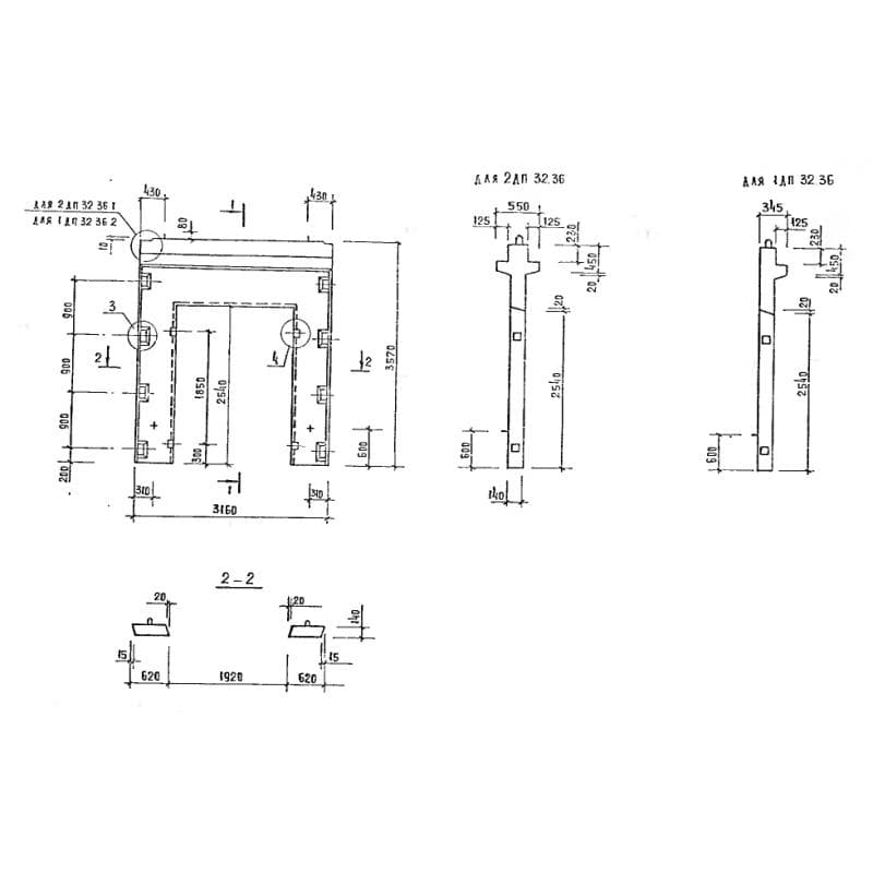
345x3570x31601ДП 32-36
Цена по запросу

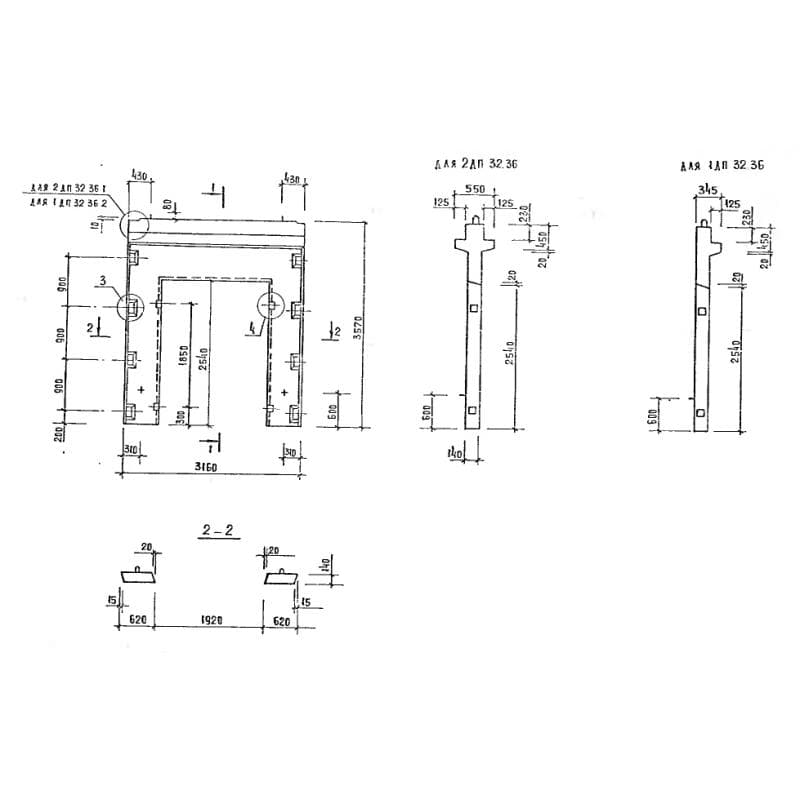
345x3570x31601ДП 32-36
Цена по запросу

345x3570x31601ДП 32-36
Цена по запросу