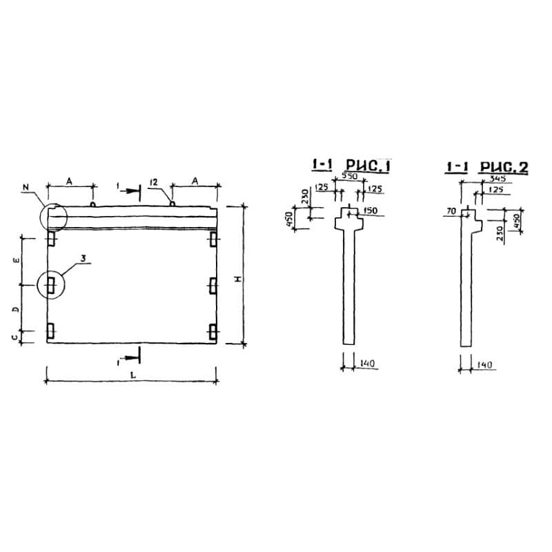
Диафрагмы жесткости Серия 1.020-1

550x4170x25602Д 26-42 (1.020-1)
Цена по запросу

550x4170x25602Д 26-42 (1.020-1)
Цена по запросу

550x4170x25602Д 26-42 (1.020-1)
Цена по запросу

550x3270x29802Д 30-33 (1.020-1)
Цена по запросу

550x3270x29802Д 30-33 (1.020-1)
Цена по запросу

550x3270x29802Д 30-33 (1.020-1)
Цена по запросу

550x3570x29802Д 30-36 (1.020-1)
Цена по запросу

550x3570x29802Д 30-36 (1.020-1)
Цена по запросу

550x3570x29802Д 30-36 (1.020-1)
Цена по запросу

550x4170x29802Д 30-42 (1.020-1)
Цена по запросу

550x4170x29802Д 30-42 (1.020-1)
Цена по запросу

550x4170x29802Д 30-42 (1.020-1)
Цена по запросу