Кабины санитарно-технические

1840x2400x2080СК 18-01 (1.188-5)
Цена по запросу

1600x2400x27302СК 24 прп-11 в (1.188-5)
Цена по запросу

1600x2780x27302СК 25 прп-11 в (1.188-5)
Цена по запросу

1600x2400x27302СК 24 лп-12 р (1.188-5)
Цена по запросу

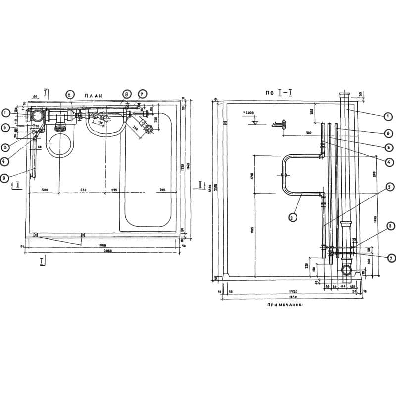
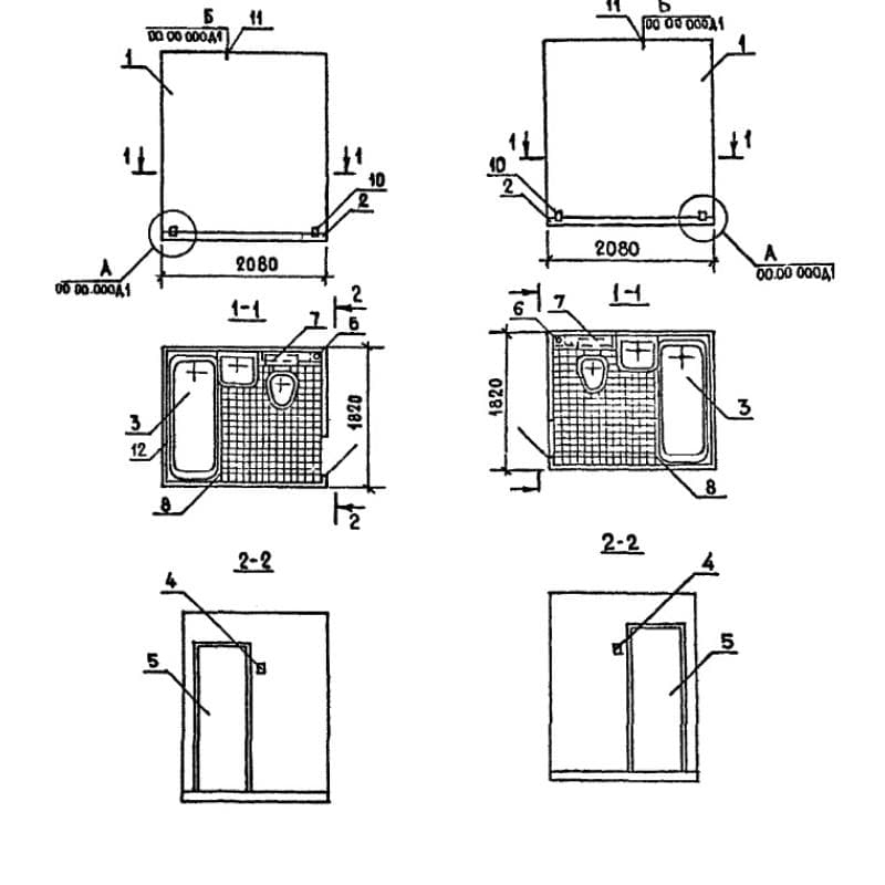
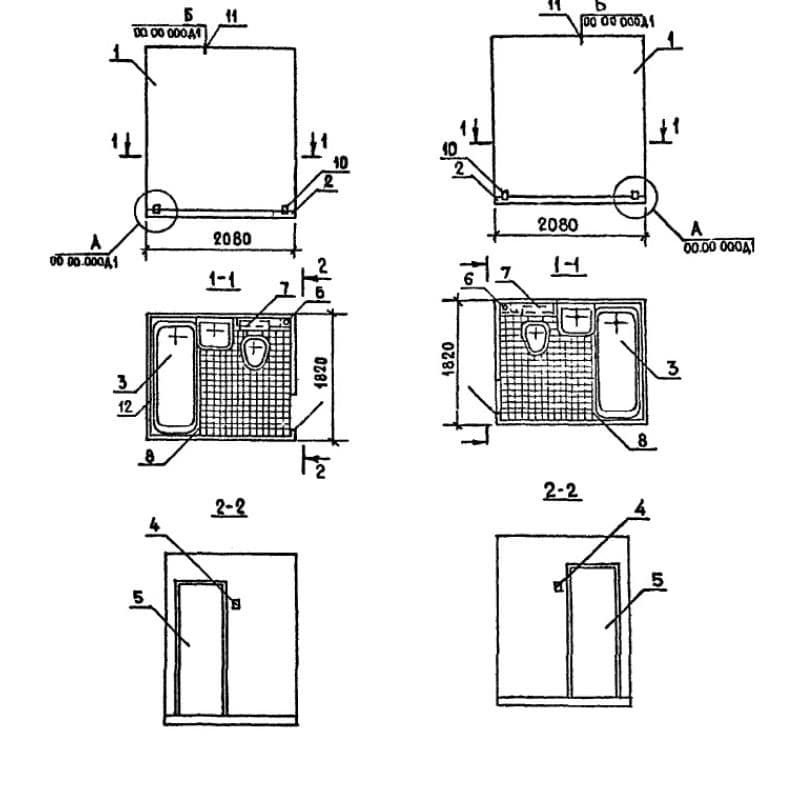
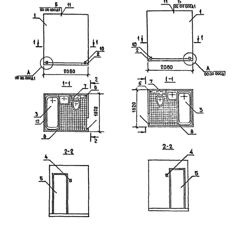
1820x2400x20804СК 24 лт-12 в (1.188-5)
Цена по запросу

1820x2400x20804СК 24 прт-21 (1.188-5)
Цена по запросу

1600x2400x27302СК 24 прп-01 (1.188-5)
Цена по запросу

1400x2400x21406СК 24
Цена по запросу

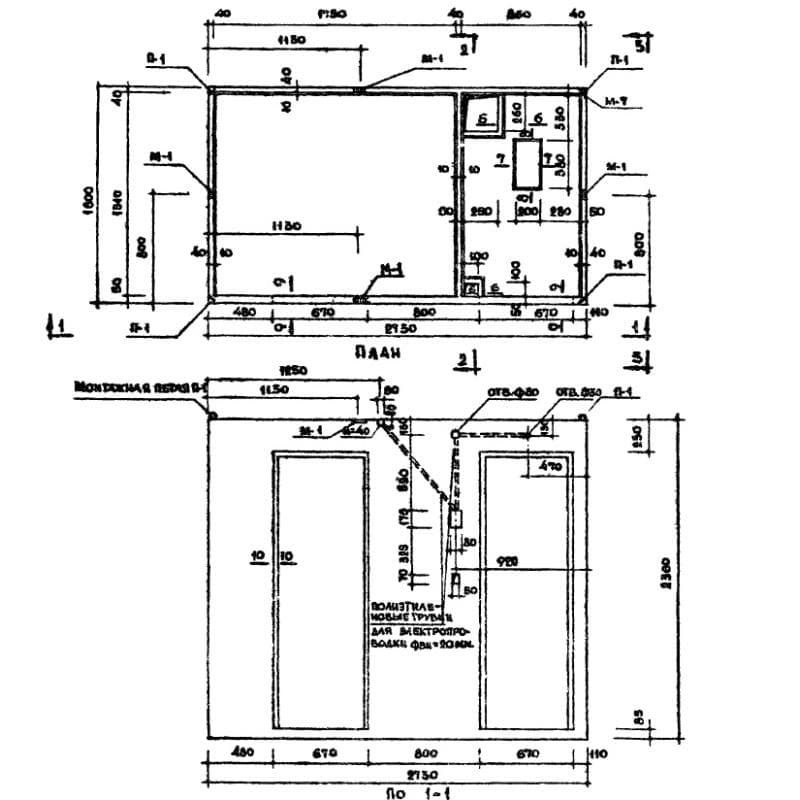
1600x2360x2730СК 12 (1.188-5)
Цена по запросу

1600x2780x27302СК 25 прп-12 (1.188-5)
Цена по запросу

1820x2400x20804СК 24 лп-12 в (1.188-5)
Цена по запросу

1600x2780x27302СК 25 прт-11 в (1.188-5)
Цена по запросу