Лестничные площадки железобетонные

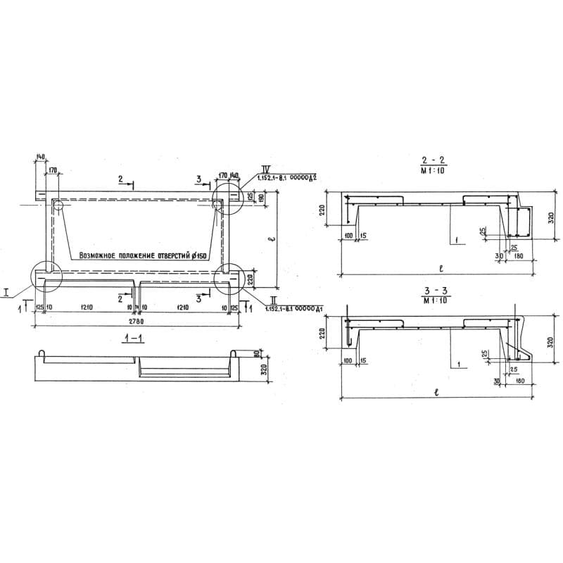
1900x320x27802ЛП 25-18-4 пк
Цена по запросу

1900x320x22001ЛП 22-19-4 (ГОСТ 9818-2015)
Цена по запросу

1900x320x22002ЛП 22-19-4 (ГОСТ 9818-2015)
Цена по запросу

1900x320x31202ЛП 26-19-4 кшс-1
Цена по запросу

2200x320x29801ЛП 30-22в-4 к (ГОСТ 9818-85)
Цена по запросу

1300x320x27802ЛП 25-13в-4 к
Цена по запросу

1600x320x28001ЛП 28-15-4 п
Цена по запросу

1900x320x27802ЛП 25-19-4 лкмк
Цена по запросу

1600x320x24802ЛП 22-16-4 кк
Цена по запросу

1600x320x29801ЛП 30-16в-4 Ш (ГОСТ 9818-2015)
Цена по запросу

1500x220x2600ЛПР 26-15-4 с
Цена по запросу

1600x320x24802ЛП 22-16в-4 кк
Цена по запросу