Лестничные площадки железобетонные

1600x320x25002ЛП 25-16-4 ЛШ (ГОСТ 9818-2015)
Цена по запросу

2200x320x28001ЛП 28-22-4 лш (ГОСТ 9818-85)
Цена по запросу

1900x320x24802ЛП 22-19в-4 лкк
Цена по запросу

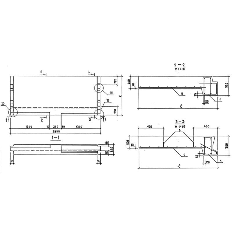
1900x320x29801ЛП 30-19-4 к (ГОСТ 9818-85)
Цена по запросу

1900x320x24802ЛП 22-19в-4 кш
Цена по запросу

1600x320x22002ЛП 22-16в-4 лк
Цена по запросу

1600x320x22002ЛП 22-16в-4 Ш (ГОСТ 9818-2015)
Цена по запросу

320x210x2200ЛП 1
Цена по запросу

1600x320x27802ЛП 25-16-4 кш
Цена по запросу

2200x320x23801ЛП 24-22-4 лк (ГОСТ 9818-85)
Цена по запросу

1300x320x24802ЛП 22-13в-4 кШ (ГОСТ 9818-2015)
Цена по запросу

2200x320x29801ЛП 30-22-4 К (ГОСТ 9818-2015)
Цена по запросу