Лестничные площадки железобетонные

1600x320x22002ЛП 22-16-4 ЛШ (ГОСТ 9818-2015)
Цена по запросу

1600x320x27802ЛП 25-16в-4 кш
Цена по запросу

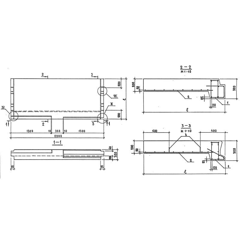
2200x320x29801ЛП 30-22-4 (ГОСТ 9818-2015)
Цена по запросу

1300x320x23801ЛП 24-13в-4 лш (ГОСТ 9818-85)
Цена по запросу

1900x320x27802ЛП 25-18в-4 пк
Цена по запросу

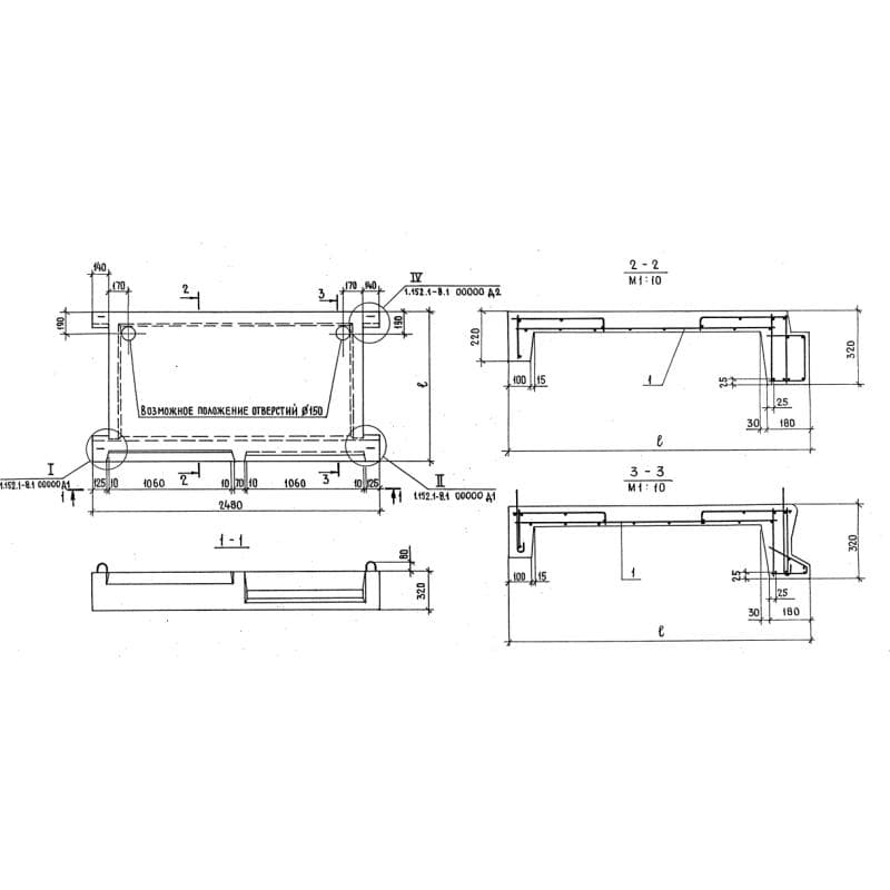
1900x320x24802ЛП 22-19в-4 кШ (ГОСТ 9818-2015)
Цена по запросу

1900x320x25002ЛП 25-19-4 ЛмК (ГОСТ 9818-2015)
Цена по запросу

1900x320x25002ЛП 25-19в-4 л
Цена по запросу

1270x380x4720ЛП 43-12-1
Цена по запросу

1600x320x22002ЛП 22-15-4 кш
Цена по запросу

2200x320x23801ЛП 24-22в-4 Л (ГОСТ 9818-2015)
Цена по запросу

1900x320x31202ЛП 26-19-4 кшс
Цена по запросу