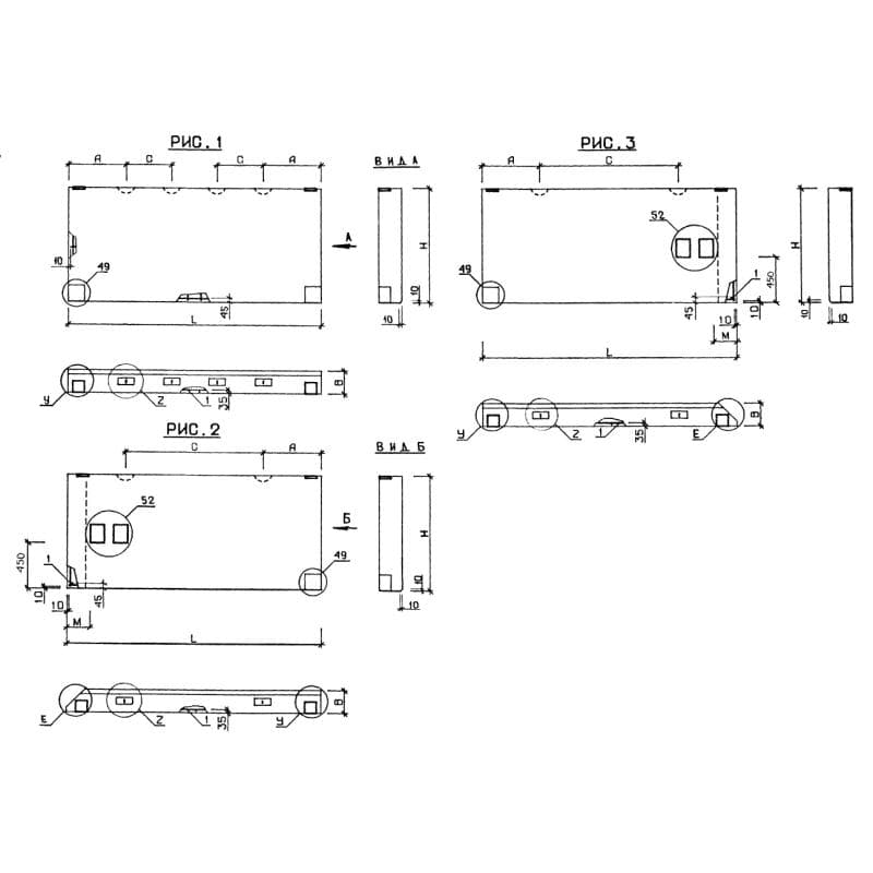
Панели стеновые, Шахты лифтов, Козырьки входа

300x1285x59801ПСН 60-13-3,0 я (1.020-1)
Цена по запросу

250x585x57502ПС 58-6-2,5 п-1 (1.020-1)
Цена по запросу

300x585x57001ПС 57-6-3,0 л-1
Цена по запросу

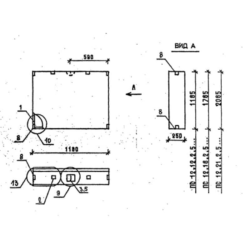
250x1785x8802ПС 9-18-2,5 я
Цена по запросу

350x1785x59801ПС 60-18-3,5 пв-1 (1.020-1)
Цена по запросу

400x1185x29801ПСН 30-12-4,0 п (1.020-1)
Цена по запросу

400x2460x23901НЧ 24-25-40-50 л-1,1 (1.138.1-17)
Цена по запросу

300x1785x57002ПСН 57-18-3,0 п (1.020-1)
Цена по запросу

350x3275x27051ПССЛ 27-33-3,5 п (1.232.1-8)
Цена по запросу

250x885x27501ПС 27,5-9-2,5 л
Цена по запросу

250x585x57001ПС 57-6-2,5-6 л-2
Цена по запросу

300x2100x62151ПСЦ 62-21-3,0 псп
Цена по запросу