Панели стеновые, Шахты лифтов, Козырьки входа

400x3280x21501НС 22-33-4 я-1 (1.090.1-9м)
Цена по запросу

250x585x57002ПС 57-6-2,5 л
Цена по запросу

350x2650x3445НР 2-34-27-35-1 б-1
Цена по запросу

400x2680x48151НС 48-27-40-50 л-3
Цена по запросу

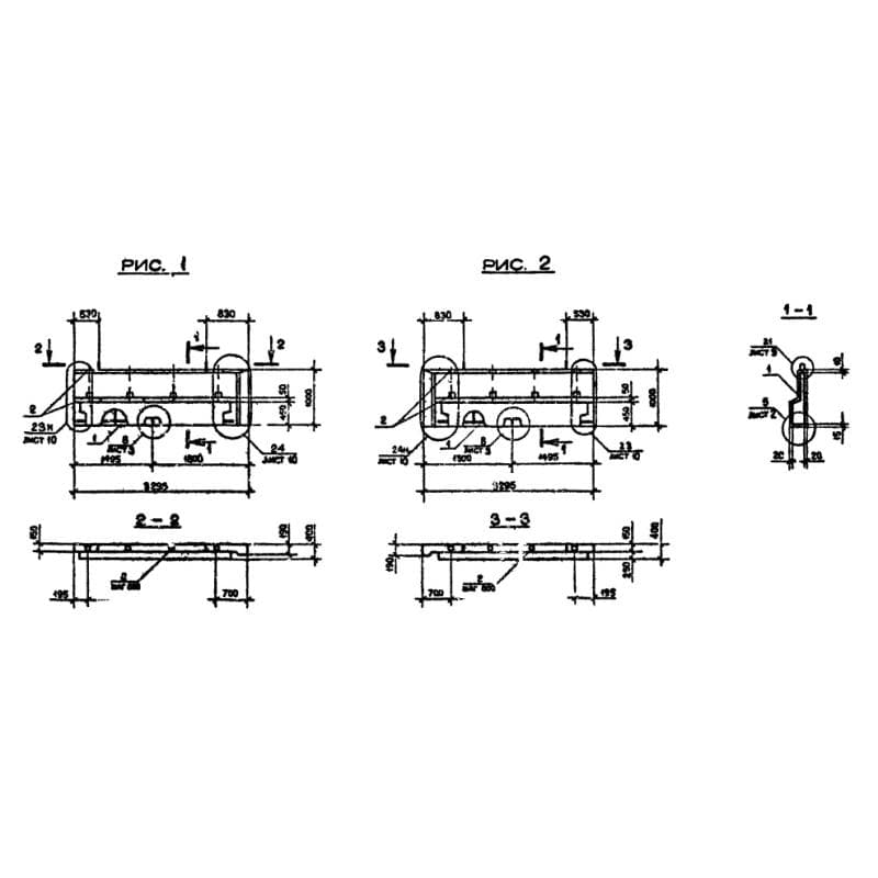
400x1000x32952ПСП 33-10-4 пс (1.090.1-2с)
Цена по запросу

400x2085x57001ПС 57-21-4,0 л
Цена по запросу

300x1785x57001ПСТ 57-18-3,0-1 л-1
Цена по запросу

400x3060x35901ПСН 36-30-40-1 п-3 л
Цена по запросу

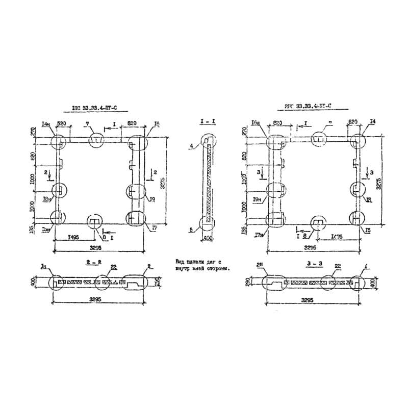
400x3275x32952ПС 33-33-4 птс (1.090.1-7с)
Цена по запросу

160x3275x2900ПВР 30-33-15-3 т пв (1.090.1-3пв)
Цена по запросу

400x2700x60002ПСД 6-27-40 птс (1.832.1-10)
Цена по запросу

160x2610x2980ПСВ 30-26-16-150 т-1
Цена по запросу