Перемычки железобетонные

350x188x1710ПП 17-3,5-2-2 я
Цена по запросу

120x290x44101ПР 8-44-12-29 п (Б1.038.1-1)
Цена по запросу

188x350x2210ПБ 22-2-3,5-2 я
Цена по запросу

120x190x18101ПР 8-18-12-19 уп (Б1.038.1-1)
Цена по запросу

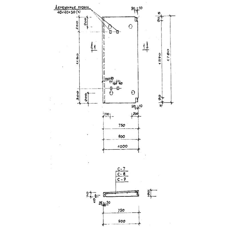
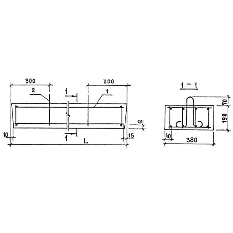
380x190x20708ПП 21-71 АтV (ГОСТ 948-84)
Цена по запросу

380x90x14202ПР 4-14-38-9 (ГОСТ 948-76)
Цена по запросу

250x190x246010ПБ 25-27 Ат800а (ГОСТ 948-2016)
Цена по запросу

120x190x20701ПР 8-20-12-19 уп (Б1.038.1-1)
Цена по запросу

180x190x13902ПР 14-6
Цена по запросу

180x190x27902ПР 28-37
Цена по запросу

120x190x22001ПР 3-22-12-19 (Б1.038.1-1)
Цена по запросу

120x220x29801ПР 8-29-12-22 уп (Б1.038.1-1)
Цена по запросу