Перемычки железобетонные

200x400x2600ПБ 26-2-40-1,9 я
Цена по запросу

510x190x24602ПР 8-24-38-19
Цена по запросу

380x220x25001ПР 25-38-22-11 с
Цена по запросу

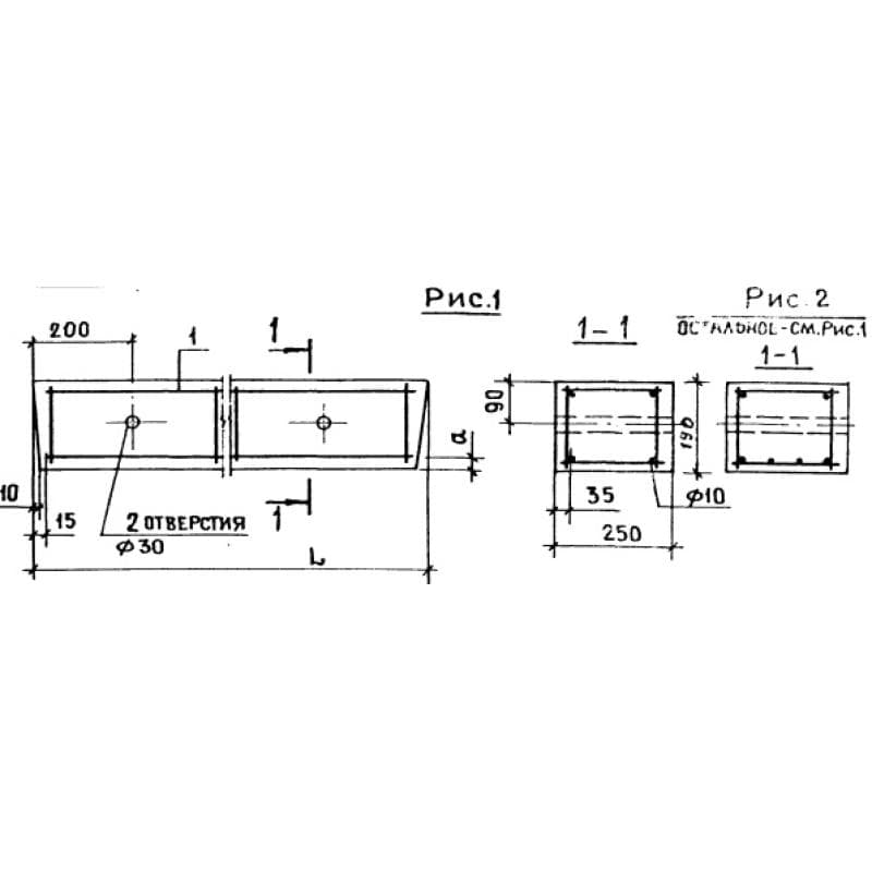
250x190x24601ПР 38-24-25-19 у (Б1.038.1-1)
Цена по запросу

250x190x18101ПР 28-18-25-19 (ГОСТ 948-76)
Цена по запросу

380x140x16802ПП 17-5
Цена по запросу

380x220x14203ПП 14-71 АтV
Цена по запросу

250x290x48003ПР 8-48-25-29 (Б1.038.1-1)
Цена по запросу

250x140x13101ПФ 13-3 (ГОСТ 948-84)
Цена по запросу

380x190x20702ПР 72-20-38-19 (ГОСТ 948-76)
Цена по запросу

250x220x36301ПР 20-36-25-22 уп (Б1.038.1-1)
Цена по запросу

400x188x14103ПП 14-4-3 я
Цена по запросу