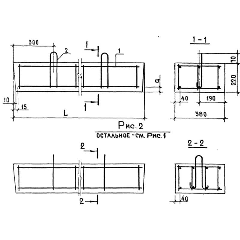
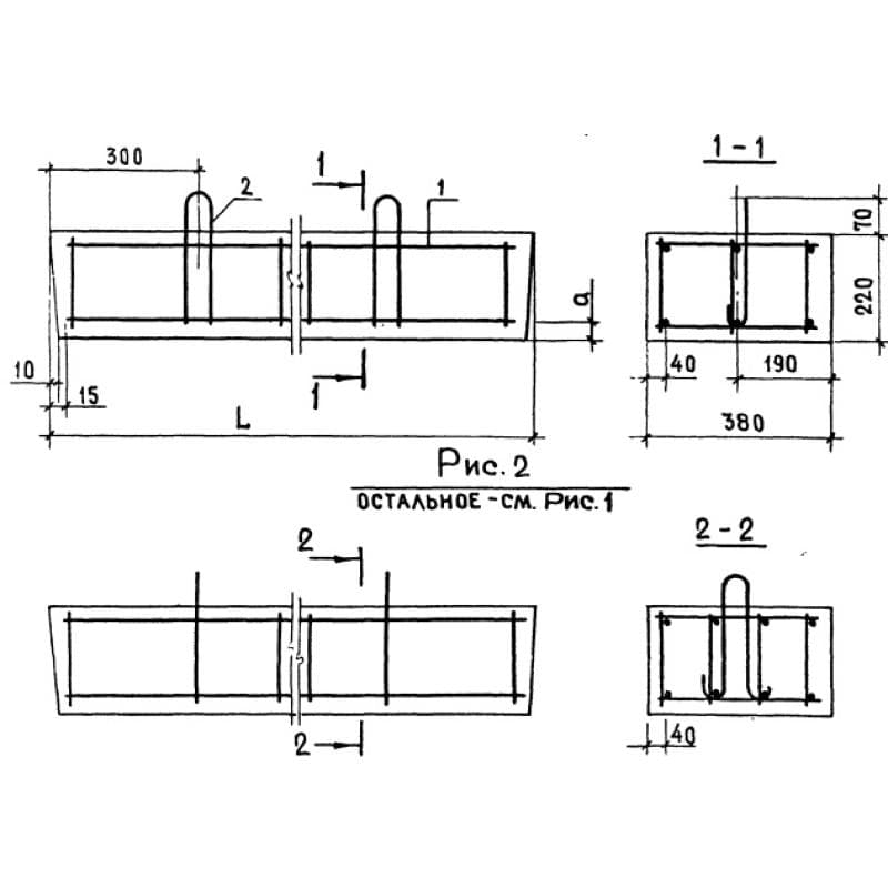
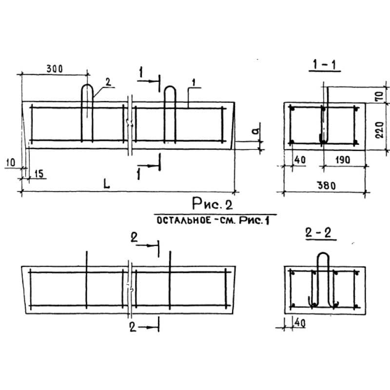
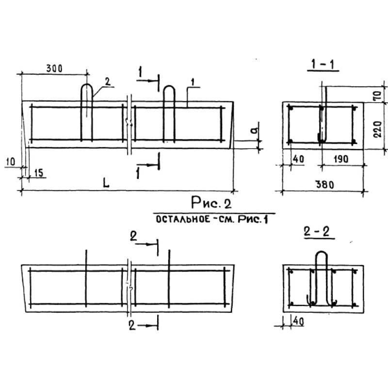
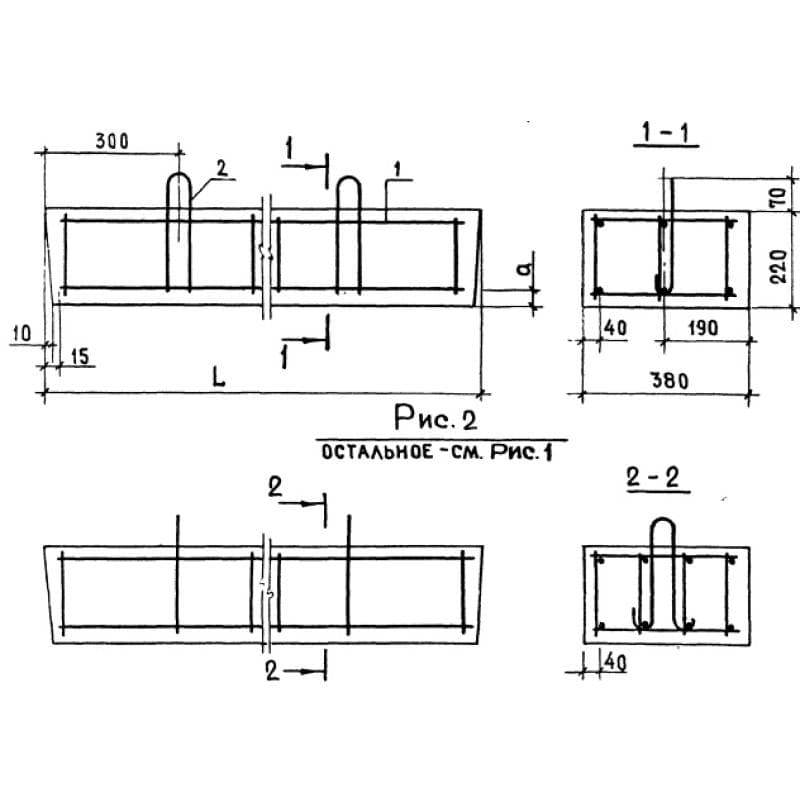
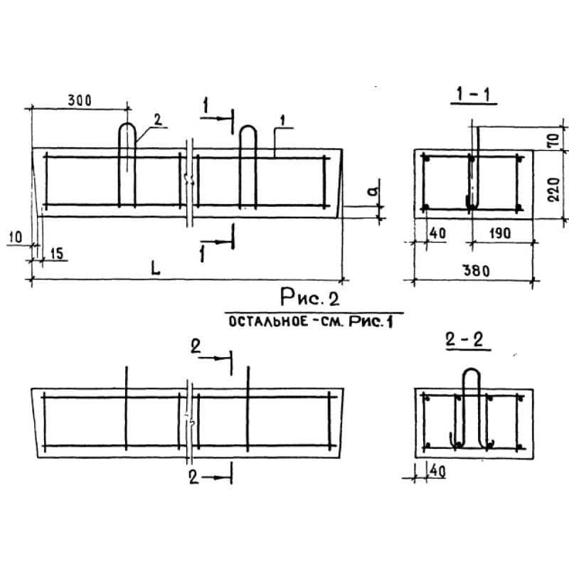
Перемычки плитные ПП серия 1.038.1-1 ( 1.138-10, ИИ 03-02, ГОСТ 948-84, 1.139-1 )

380x220x28001ПР 28-38-22-31 у-1с
Цена по запросу

380x220x28001ПР 28-38-22-31 у-1с
Цена по запросу

380x220x28001ПР 28-38-22-31 у-1с
Цена по запросу

380x220x28001ПР 28-38-22-31 ус
Цена по запросу

380x220x28001ПР 28-38-22-31 ус
Цена по запросу

380x220x28001ПР 28-38-22-31 ус
Цена по запросу

380x220x28001ПР 28-38-22-31 ус-1
Цена по запросу

380x220x28001ПР 28-38-22-31 ус-1
Цена по запросу

380x220x28001ПР 28-38-22-31 ус-1
Цена по запросу

380x140x18102ПП 18-5
Цена по запросу

380x140x18102ПП 18-5
Цена по запросу

380x140x18102ПП 18-71
Цена по запросу