Перемычки плитные ПП серия 1.038.1-1 ( 1.138-10, ИИ 03-02, ГОСТ 948-84, 1.139-1 )

380x65x11601ПП 12-3
Цена по запросу

380x65x11601ПП 12-3
Цена по запросу

380x65x11601ПП 12-3
Цена по запросу

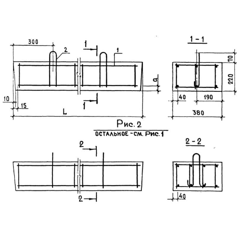
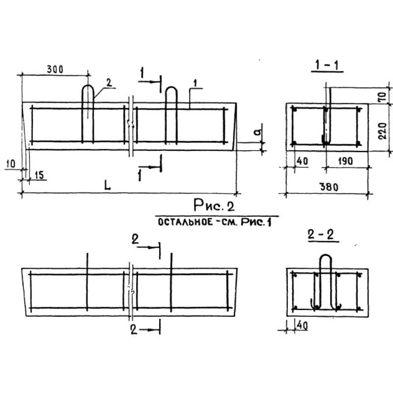
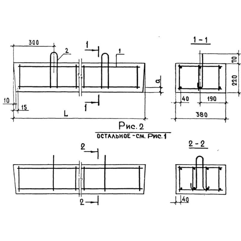
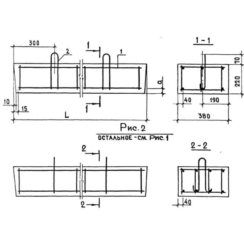
380x220x14001ПР 14-38-22-11 с
Цена по запросу

380x220x14001ПР 14-38-22-11 с
Цена по запросу

380x220x14001ПР 14-38-22-11 с
Цена по запросу

380x220x16001ПР 16-38-22-27 у-1с
Цена по запросу

380x220x16001ПР 16-38-22-27 у-1с
Цена по запросу

380x220x16001ПР 16-38-22-27 у-1с
Цена по запросу

380x220x16001ПР 16-38-22-27 ус
Цена по запросу

380x220x16001ПР 16-38-22-27 ус
Цена по запросу

380x220x16001ПР 16-38-22-27 ус
Цена по запросу