Каталог по сериям
Выбрана серия: ГОСТ 948-84
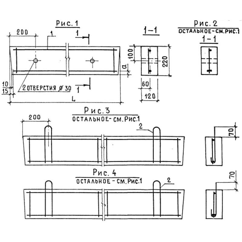
ГОСТ 948-84

250x220x24602ПФ 25-12 (ГОСТ 948-84)
Цена по запросу

250x220x24602ПФ 25-8 (ГОСТ 948-84)
Цена по запросу

250x220x29802ПФ 30-12 (ГОСТ 948-84)
Цена по запросу

250x220x29802ПФ 30-8 (ГОСТ 948-84)
Цена по запросу

120x220x12903ПБ 13-37 (ГОСТ 948-84)
Цена по запросу

120x220x12903ПБ 13-37 п (ГОСТ 948-84)
Цена по запросу

120x220x15503ПБ 16-37 (ГОСТ 948-84)
Цена по запросу

120x220x15503ПБ 16-37 п (ГОСТ 948-84)
Цена по запросу

120x220x18103ПБ 18-37 (ГОСТ 948-84)
Цена по запросу

120x220x18103ПБ 18-37 п (ГОСТ 948-84)
Цена по запросу

120x220x18103ПБ 18-8 (ГОСТ 948-84)
Цена по запросу

120x220x18103ПБ 18-8 п (ГОСТ 948-84)
Цена по запросу