Каталог по сериям
Выбрана серия: Серия 3.006-2
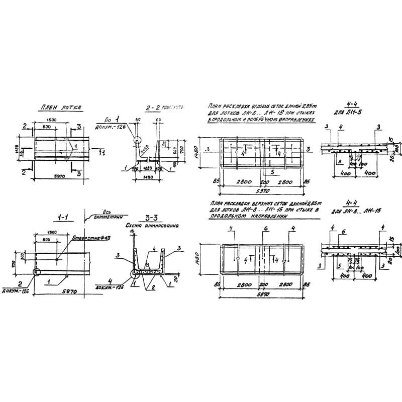
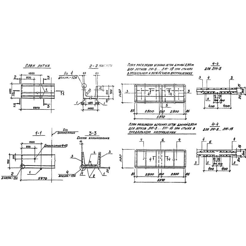
Серия 3.006-2

1480x550x720Л 10д-11 (3.006-2)
Цена по запросу

1480x550x720Л 10д-15 (3.006-2)
Цена по запросу

1480x550x720Л 10д-3 (3.006-2)
Цена по запросу

1480x550x720Л 10д-5 (3.006-2)
Цена по запросу

1480x550x720Л 10д-8 (3.006-2)
Цена по запросу

1480x700x5970Л 11-11 (3.006-2)
Цена по запросу

1480x700x5970Л 11-15 (3.006-2)
Цена по запросу

1480x700x5970Л 11-3 (3.006-2)
Цена по запросу

1480x700x5970Л 11-5 (3.006-2)
Цена по запросу