Каталог по сериям
Выбрана серия: Серия 1.423.1-7
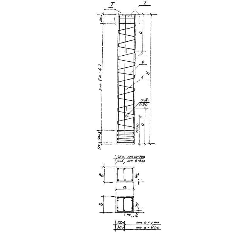
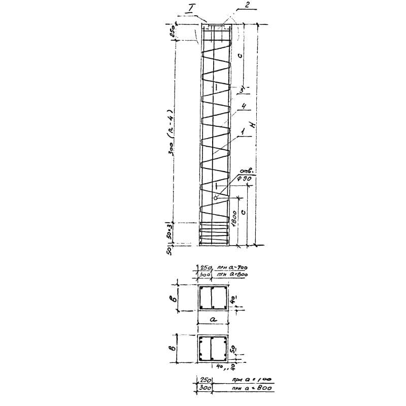
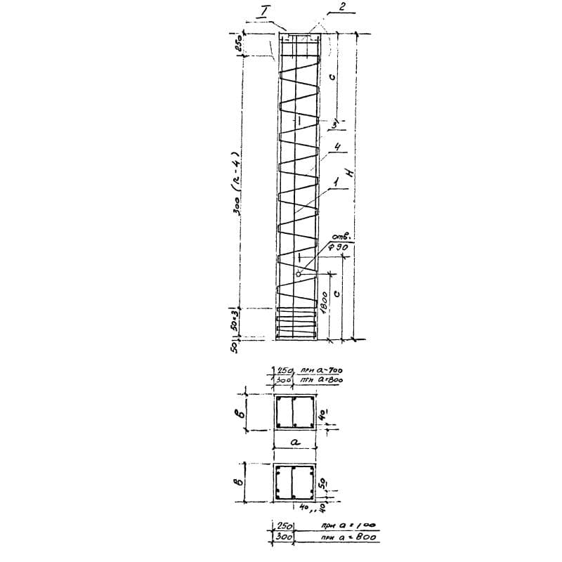
Серия 1.423.1-7

700x400x130507К 130-4 АV
Цена по запросу

700x400x130507К 130-5 АIV
Цена по запросу

700x400x130507К 130-5 АV
Цена по запросу

700x400x142507К 142-1 АIV
Цена по запросу

700x400x142507К 142-1 АV
Цена по запросу

700x400x142507К 142-2 АIV
Цена по запросу

700x400x142507К 142-2 АV
Цена по запросу

700x400x142507К 142-3 АIV
Цена по запросу

700x400x142507К 142-3 АV
Цена по запросу

700x400x142507К 142-4 АIV
Цена по запросу

700x400x142507К 142-4 АV
Цена по запросу

700x400x142507К 142-5 АIV
Цена по запросу