Каталог по сериям
Выбрана серия: Серия 1.423.1-7
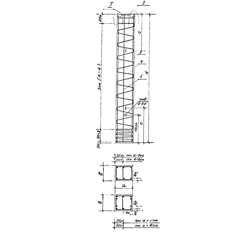
Серия 1.423.1-7

700x400x112507К 112-1 АV
Цена по запросу

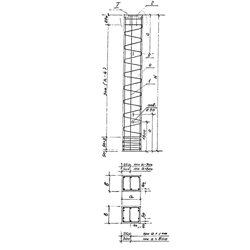
700x400x112507К 112-2 АIV
Цена по запросу

700x400x112507К 112-2 АV
Цена по запросу

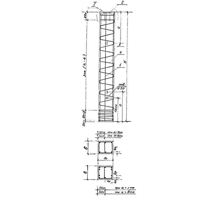
700x400x112507К 112-3 АIV
Цена по запросу

700x400x112507К 112-3 АV
Цена по запросу

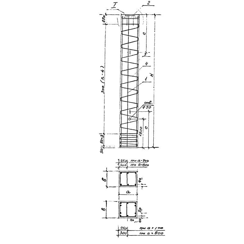
700x400x112507К 112-4 АIV
Цена по запросу

700x400x112507К 112-4 АV
Цена по запросу

700x400x112507К 112-5 АIV
Цена по запросу

700x400x112507К 112-5 АV
Цена по запросу

700x400x118507К 118-1 АIV
Цена по запросу

700x400x118507К 118-1 АV
Цена по запросу

700x400x118507К 118-2 АIV
Цена по запросу