Каталог по сериям
Выбрана серия: Серия 3.006 КР-1
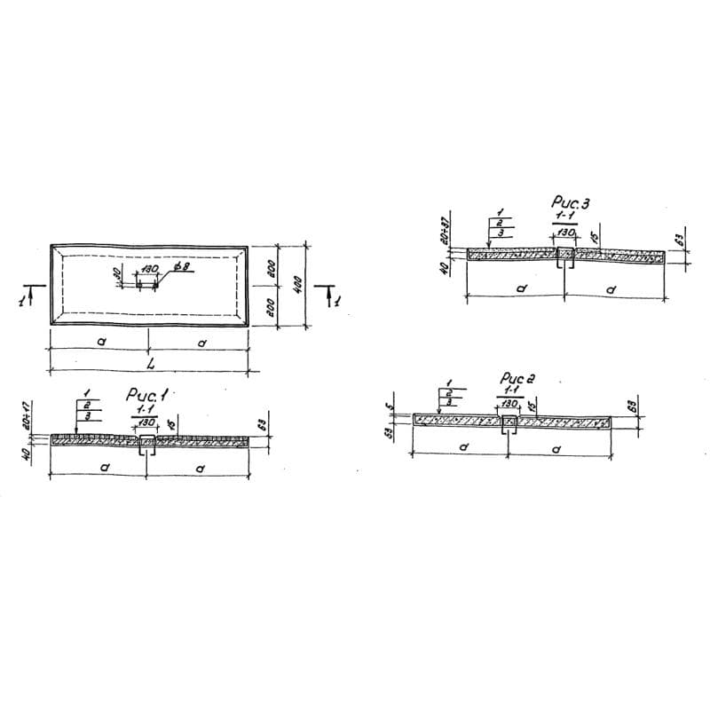
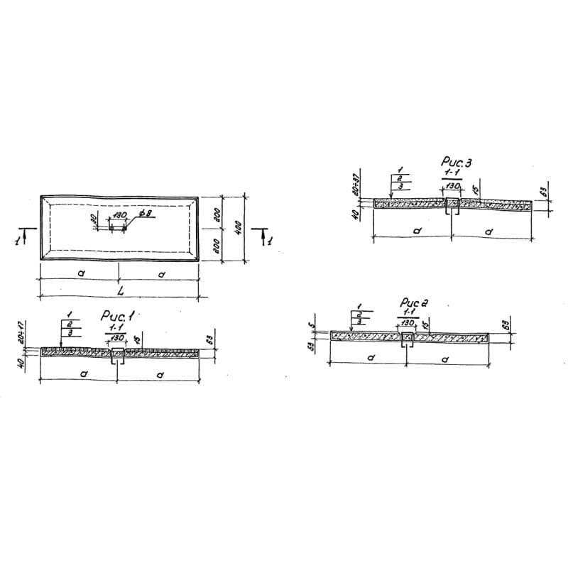
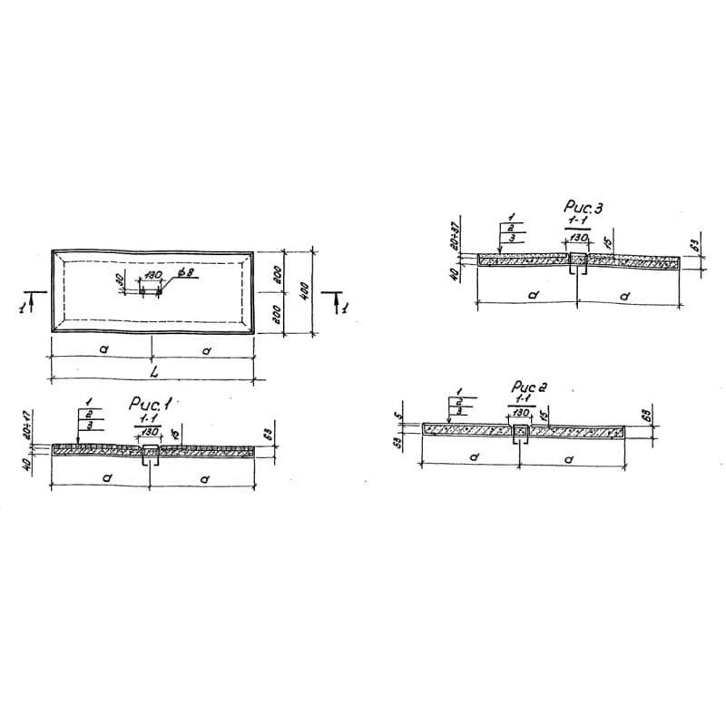
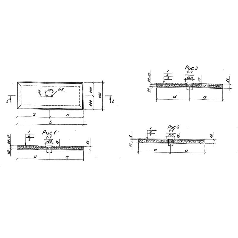
Серия 3.006 КР-1

400x63x1000ПС 2 (3.006 КР-1)
Цена по запросу

400x63x1000ПС 3 (3.006 КР-1)
Цена по запросу

400x63x700ПС 4 (3.006 КР-1)
Цена по запросу

400x63x700ПС 5 (3.006 КР-1)
Цена по запросу

400x63x700ПС 6 (3.006 КР-1)
Цена по запросу

400x63x500ПС 7 (3.006 КР-1)
Цена по запросу

400x63x500ПС 8 (3.006 КР-1)
Цена по запросу

400x63x500ПС 9 (3.006 КР-1)
Цена по запросу