Каталог по сериям
Выбрана серия: Серия 1.234.8-1
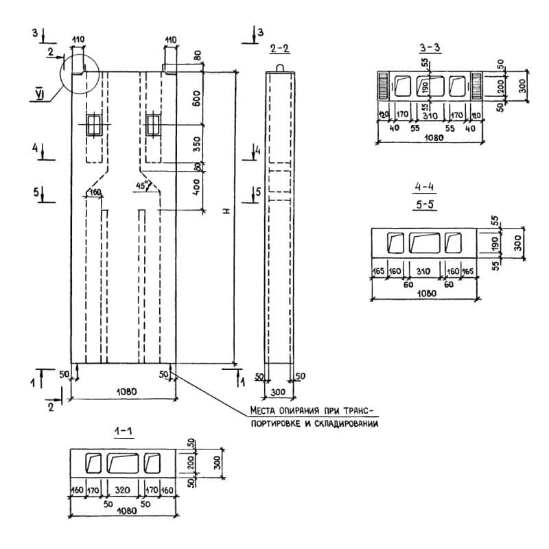
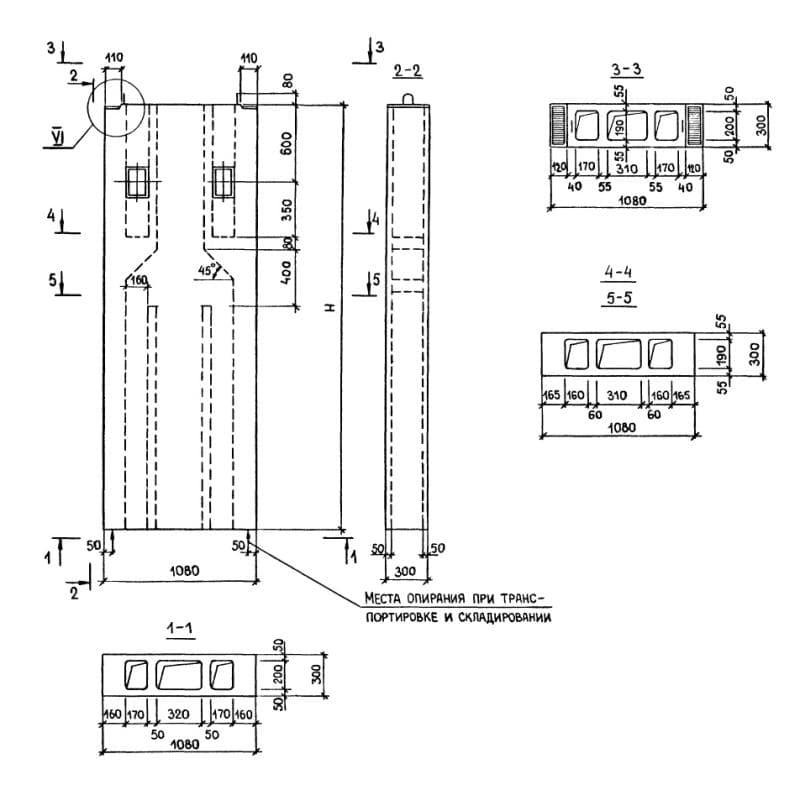
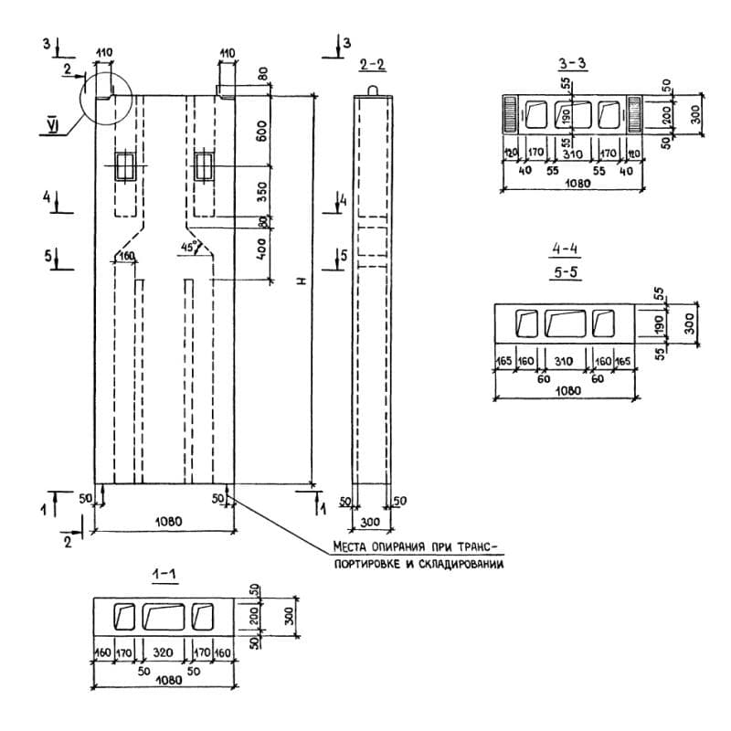
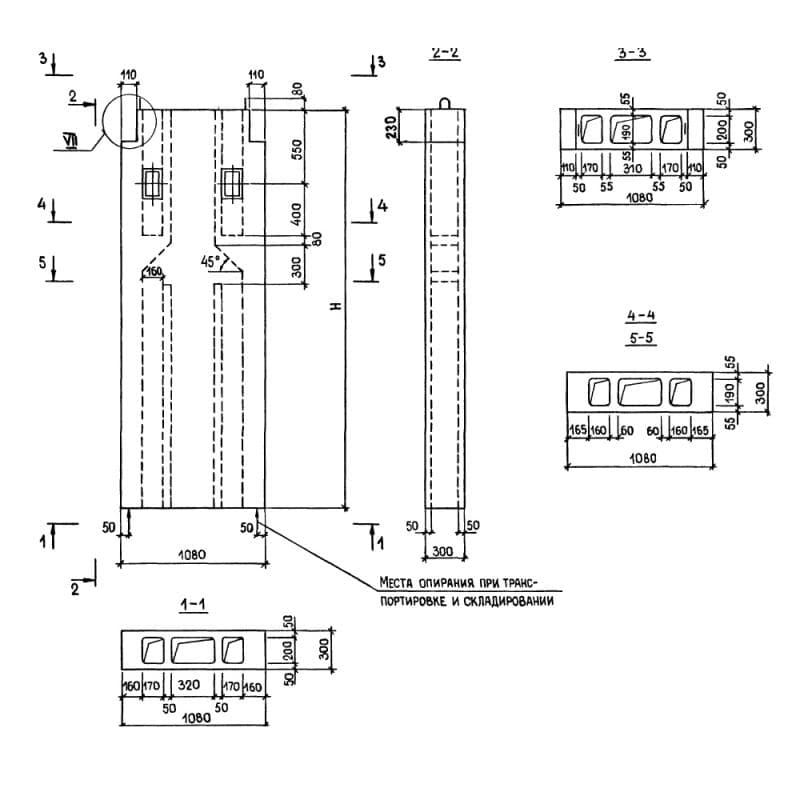
Серия 1.234.8-1

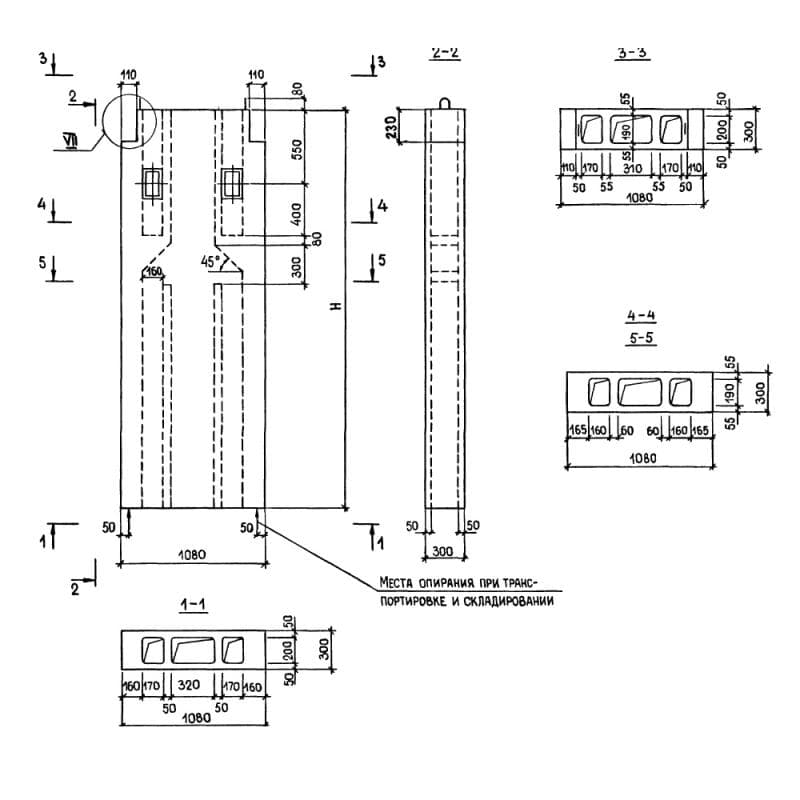
260x2780x1080В 11-28
Цена по запросу

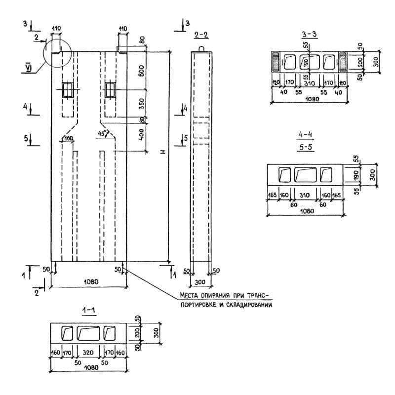
260x2980x1080В 11-30
Цена по запросу

260x3280x1080В 11-33
Цена по запросу

300x2780x1080ВВ 11-28
Цена по запросу

300x2980x1080ВВ 11-30
Цена по запросу

300x3280x1080ВВ 11-33
Цена по запросу

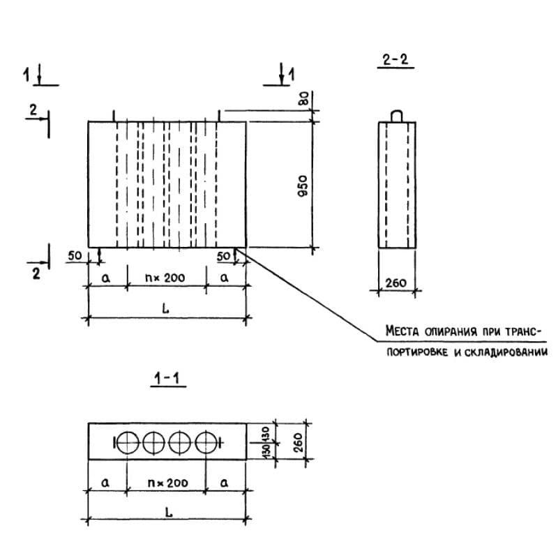
300x950x1080ВВК 11-10
Цена по запросу

300x1980x1080ВВС 11-20
Цена по запросу

300x2780x1080ВВС 11-28
Цена по запросу

300x2980x1080ВВС 11-30
Цена по запросу

300x3280x1080ВВС 11-33
Цена по запросу

260x950x1080ВК 11-10
Цена по запросу