Каталог по сериям
Выбрана серия: Серия 1.134.1-11
Серия 1.134.1-11

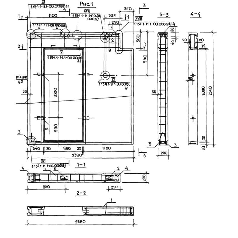
200x2380x2540СБВ 24-26-2 т-2111
Цена по запросу

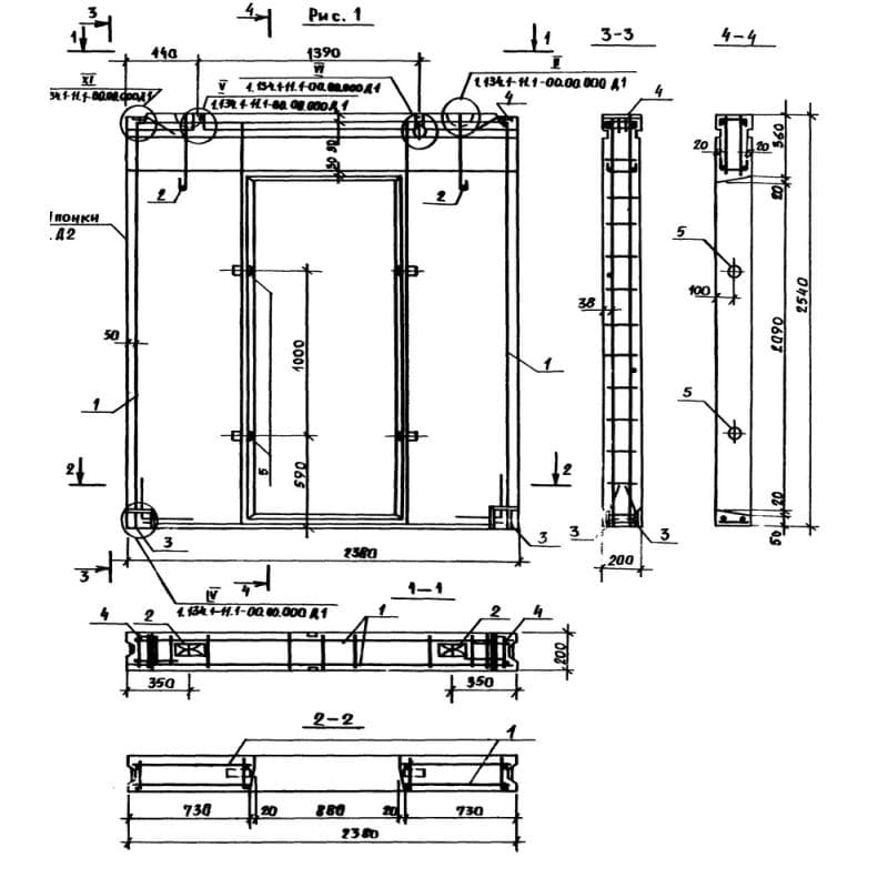
200x2380x2540СБВ 24-26-2 т-21115
Цена по запросу

200x2380x2540СБВ 24-26-2 т-215
Цена по запросу

200x2380x2540СБВ 24-26-2 т-21505
Цена по запросу

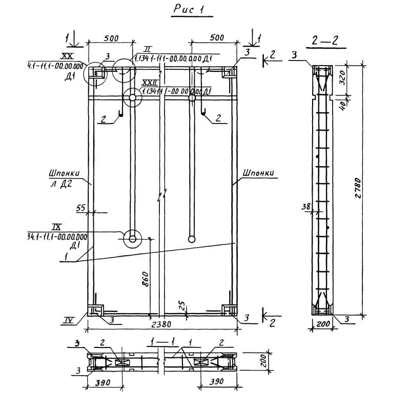
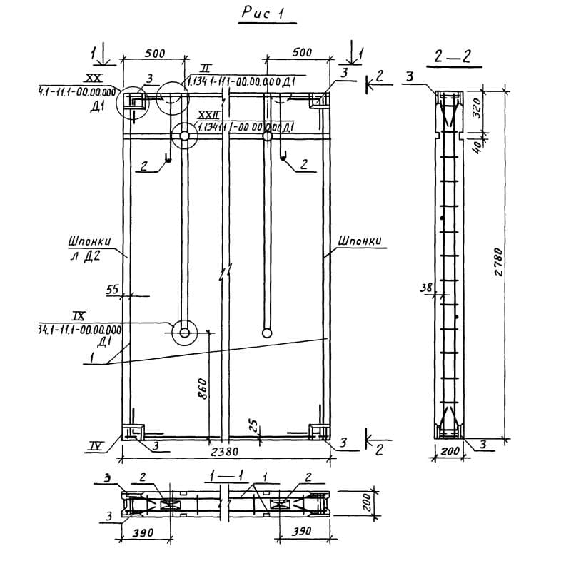
200x2380x2780СБВ 24-28-2 т-1
Цена по запросу

200x2380x2780СБВ 24-28-2 т-10005
Цена по запросу

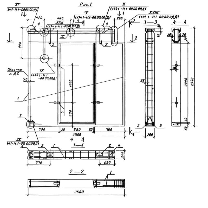
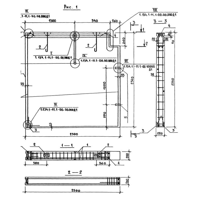
200x2500x2540СБВ 25-26-2 т-1001
Цена по запросу

200x2500x2540СБВ 25-26-2 т-10015
Цена по запросу

200x2500x2540СБВ 25-26-2 т-2161
Цена по запросу

200x2500x2540СБВ 25-26-2 т-21615
Цена по запросу

200x2500x2540СБВ 25-26-2 т-2331
Цена по запросу

200x2500x2540СБВ 25-26-2 т-23315
Цена по запросу