Каталог по сериям
Выбрана серия: Серия 1.138-10
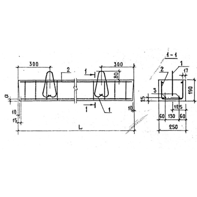
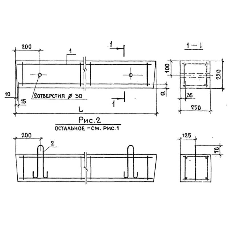
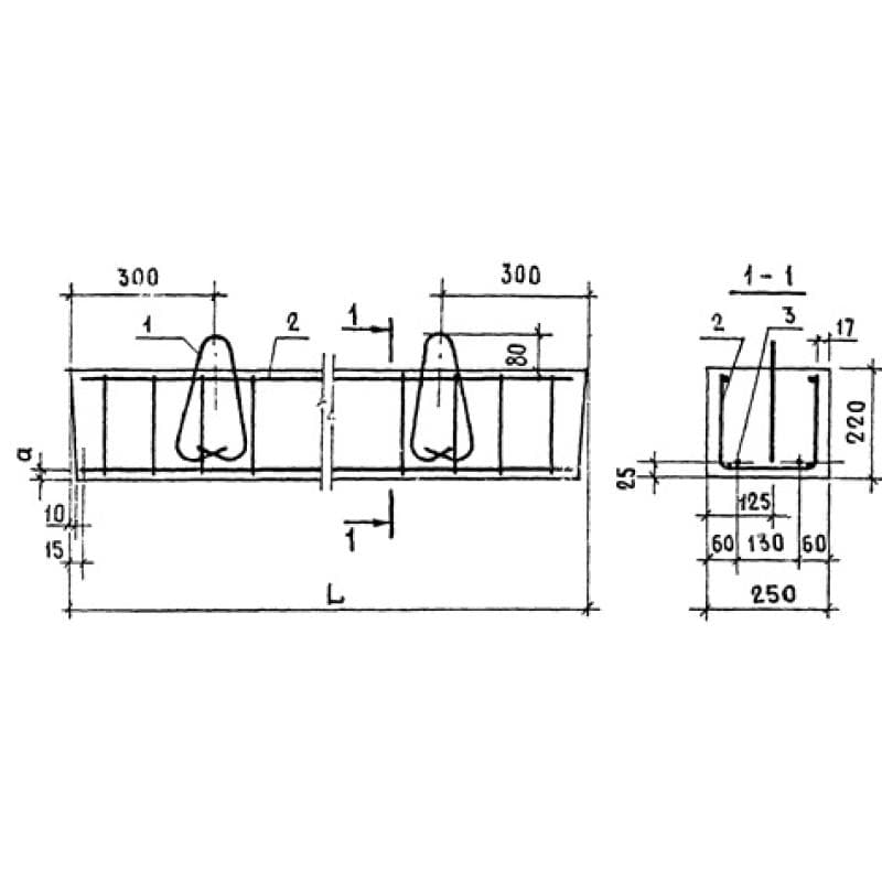
Серия 1.138-10

250x220x20701ПР 20-25-22-28 АVт
Цена по запросу

250x220x20701ПР 20-25-22-28 АVта
Цена по запросу

250x220x33701ПР 20-33-25-22 у
Цена по запросу

250x220x36301ПР 20-36-25-22 у
Цена по запросу

250x190x24601ПР 24-25-19-28 АIVт
Цена по запросу

250x190x24601ПР 24-25-19-28 АVт
Цена по запросу

250x190x24601ПР 24-25-19-28 АVта
Цена по запросу