Каталог по сериям
Выбрана серия: Серия 1.030.1-1/88
Серия 1.030.1-1/88

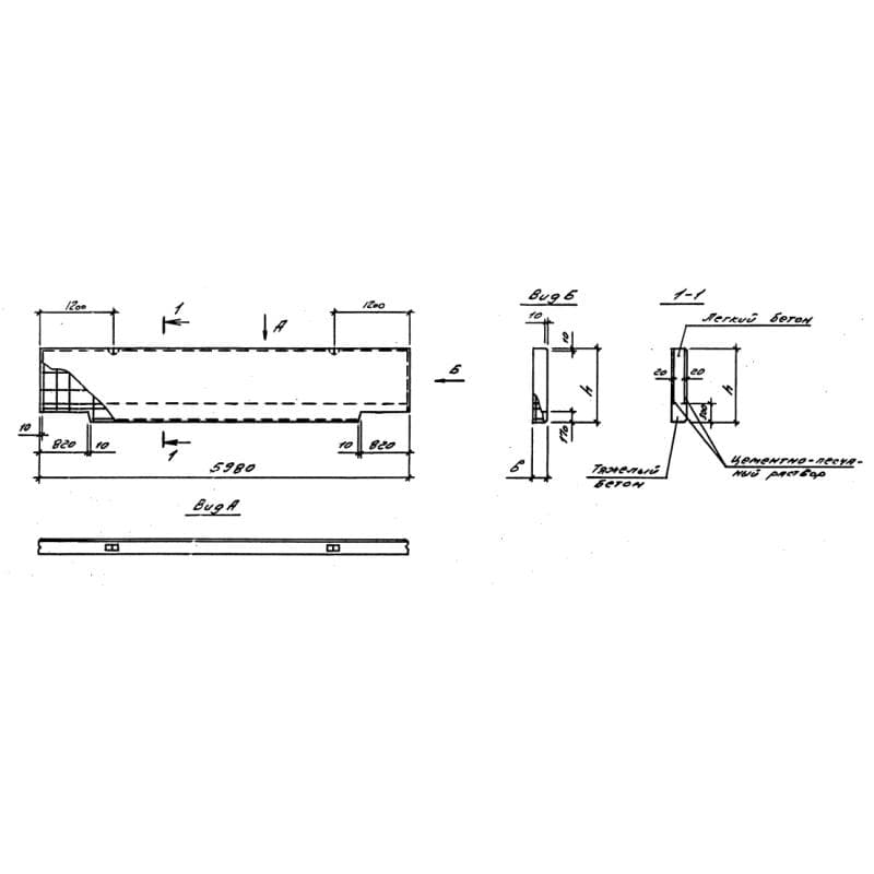
250x1480x5980ПСЦ 60-15-2,5-2
Цена по запросу

250x1480x5980ПСЦ 60-15-2,5-2-14,1
Цена по запросу

250x1480x5980ПСЦ 60-15-2,5-2-14,2
Цена по запросу

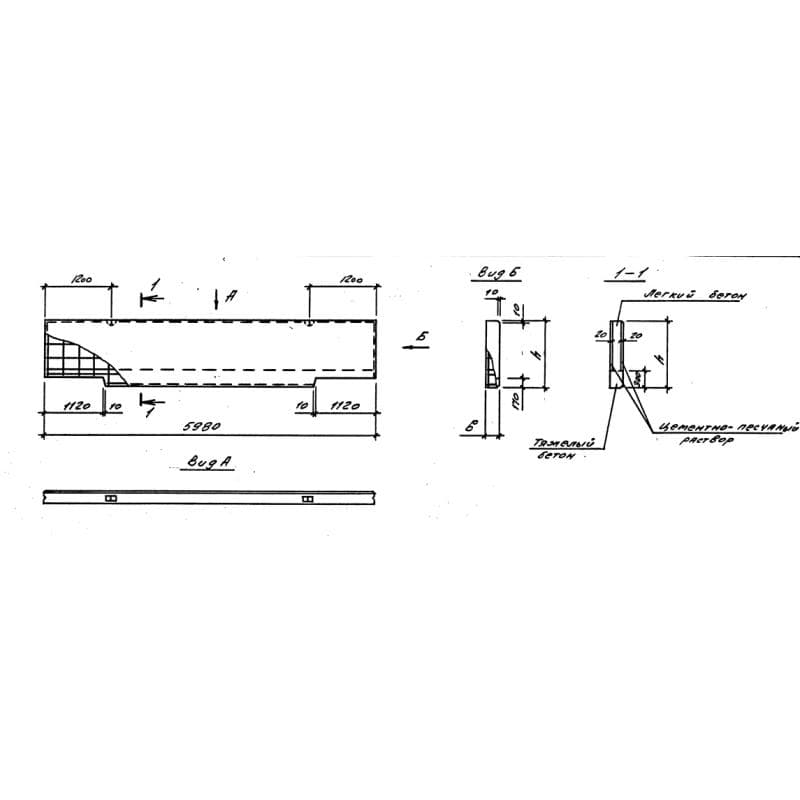
250x1480x5980ПСЦ 60-15-2,5-3
Цена по запросу

250x1480x5980ПСЦ 60-15-2,5-3-14,1
Цена по запросу

250x1480x5980ПСЦ 60-15-2,5-3-14,2
Цена по запросу

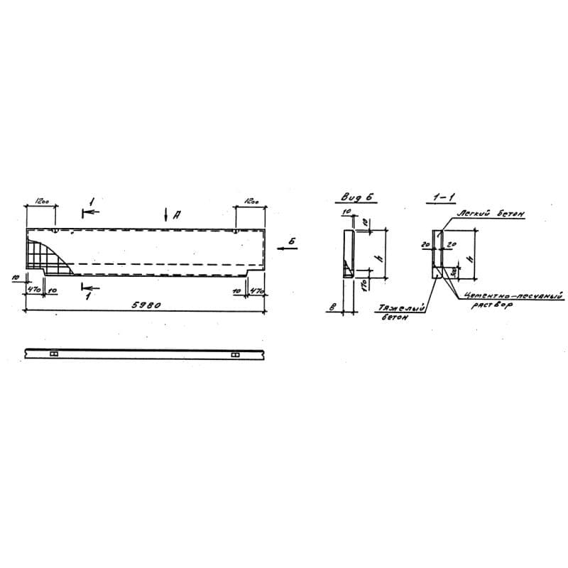
250x1480x5980ПСЦ 60-15-2,5-4
Цена по запросу

300x1480x5980ПСЦ 60-15-3 ш-1
Цена по запросу

300x1480x5980ПСЦ 60-15-3 ш-2
Цена по запросу

300x1480x5980ПСЦ 60-15-3 ш-3
Цена по запросу

300x1480x5980ПСЦ 60-15-3 ш-4
Цена по запросу

300x1480x5980ПСЦ 60-15-3-1
Цена по запросу